Perrett Way, Ham Green, Bristol, BS20
By Northwood
£ 245,000
Reviews
3 out of 5 stars
Northwood says ..
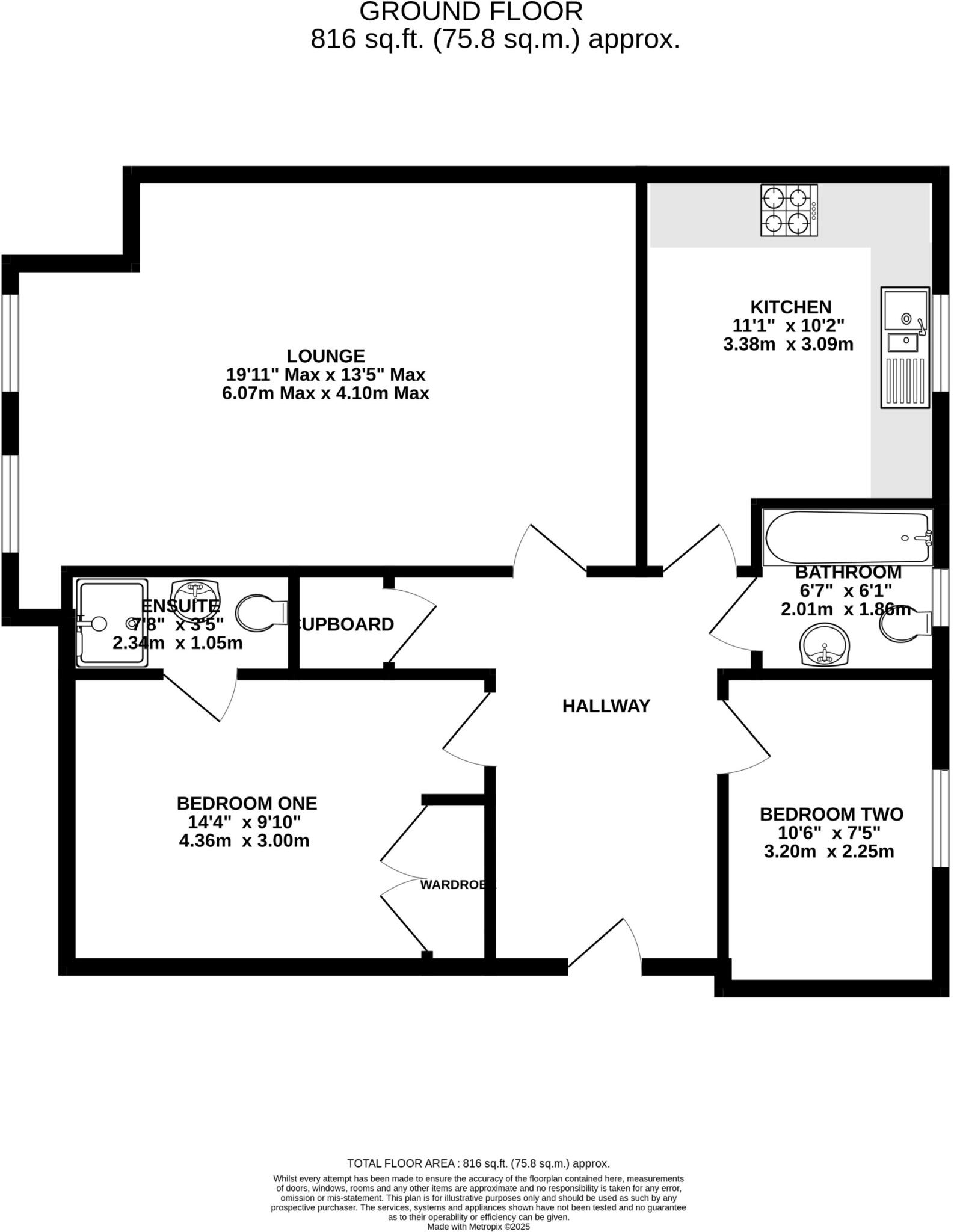
A spacious two bedroom ground floor flat with allocated parking located in the picturesque area of Ham Green.
Property Oracle says ..
This property is a two-bedroom, two-bathroom flat located in Pill, North Somerset. The area has an average house price significantly higher than the list price of this property, suggesting it could be good value. However, the average property size is also considerably larger. The flat itself appears to be in good condition, well-maintained and modern from the photos provided. There is also access to a communal garden area. Transport links seem reasonable with several train stations within a few kilometers. Schools in the area appear to be of mixed quality according to Ofsted reports. More information on the specific location within Pill would help to provide a more detailed assessment of the location score.
Therefore, we give this property 7 / 10. *Disclaimer: This is our option and does constitute a recommendation or financial advice. Do your own research. *
- Price
- 8
- Condition
- 9
- Location
- 7
- Land
- 6
- Bedrooms
- 2
- Bathrooms
- 2
- Sqft (est)
- 654.40
- Lot (est)
- 816.00
The heatmap indicates the level of crime in the area. The color of the heatmap indicates the crime severity and recency.
Metrics Year-on-Year
- Average area value
- 881,250.00 £Increased by 10.74 %
- Est sale value
- 451,536.00 £Increased by 54.71 %
- Average area rental value
- 1,300.00 £/moDecreased by 43.36 %
- Est letting value
- 654.40 £/moUnchanged by 0.00 %
- Est rental Yield
- 1.77 %Decreased by 48.84 %
- Crime Rate
- 6.00 %Unchanged by 0.00 %
Agent Activity
Northwood created the listing.
Nearby Schools
| Name | Type | Ofsted | Distance |
|---|---|---|---|
| St Katherine'S School | Academy Converter | Requires improvement | 0.46 KM |
| Crockerne Church Of England Primary School | Academy Converter | Good | 1.32 KM |
| Crockerne Children'S Centre | Children's Centre | 1.39 KM | |
| Shirehampton Primary School | Community School | Good | 1.42 KM |
| Oasis Academy Brightstowe | Academy Sponsor Led | Good | 1.57 KM |
Images
Nearby Streets
| Name | Average Price | Average Sqft | Distance |
|---|---|---|---|
| Hart Close | £ 545,000 | 0 | 0.00 KM |
| St Catherine's Mead | £ 625,000 | 0 | 0.00 KM |
| Orchard Lea | £ 277,500 | 0 | 0.00 KM |
| Brookside | £ 396,238 | 0 | 0.00 KM |
| Watchhouse Road | £ 325,000 | 0 | 0.00 KM |
Nearby Transport
| Name | NLC | TLC | Distance |
|---|---|---|---|
| Shirehampton | 3206 | SHH | 0.82 KM |
| Sea Mills | 3254 | SML | 2.94 KM |
| Avonmouth | 3200 | AVN | 3.60 KM |
| St Andrews Road | 3252 | SAR | 4.50 KM |
| Clifton Down | 3202 | CFN | 7.30 KM |
Nearby Listings
| Address | Price | Type | Score | Distance |
|---|---|---|---|---|
| Perrett Way, Ham Green, Bristol, BS20 | £ 245,000 | BUY | 7 / 10 | 0.00 KM |
| Perrett Way, Ham Green, Pill, Bristol, BS20 | £ 235,000 | BUY | 5 / 10 | 0.00 KM |
| Fitzharding Road | Ham Green | £ 650,000 | BUY | 7 / 10 | 0.15 KM |
| Fitzharding Road, Pill, Bristol, BS20 | £ 625,000 | BUY | Unknown | 0.16 KM |
| Fitzharding Road, Pill, Bristol, Somerset, BS20 | £ 600,000 | BUY | 6 / 10 | 0.16 KM |
Nearby Properties
| Address | Price | Distance |
|---|---|---|
| 6 Perrett Way | £ 118,950 | 0.00 KM |
| 17 Perrett Way | £ 249,000 | 0.00 KM |
| 12 Perrett Way | £ 150,000 | 0.00 KM |
| 2 Perrett Way | £ 215,000 | 0.00 KM |
| 16 Perrett Way | £ 209,500 | 0.00 KM |