Regent Place, Rugby, CV21
By Keller Williams Oxygen
£ 300,000
Reviews
3 out of 5 stars
Keller Williams Oxygen says ..
An opportunity to buy a freehold building with excellent long-term tenant nursery business generating £24,000 per annum
Property Oracle says ..
The property is located in Rugby, Warwickshire, and is a semi-detached house. The area has a mix of property types and price points, with nearby properties ranging from £144,000 to £302,000. The property is conveniently located near several schools, including Northlands Primary School (rated Good by Ofsted) and Lawrence Sheriff School, as well as transportation links such as Rugby train station (Avanti West Coast). The property itself appears to be in good condition from the images provided. The lack of information regarding plot size and square footage makes it difficult to accurately assess the value for money, but the list price of £300,000 is slightly above the average price for the area (£200,692). More information is needed to provide a comprehensive analysis.
Therefore, we give this property 6 / 10. *Disclaimer: This is our option and does constitute a recommendation or financial advice. Do your own research. *
- Price
- 6
- Condition
- 8
- Location
- 7
- Land
- 3
- Bedrooms
- 2
- Bathrooms
- 1
The heatmap indicates the level of crime in the area. The color of the heatmap indicates the crime severity and recency.
Metrics Year-on-Year
- Average area value
- 252,500.00 £Increased by 21.08 %
- Average area rental value
- 820.00 £/moDecreased by 68.92 %
- Est rental Yield
- 3.90 %Decreased by 74.31 %
- Crime Rate
- 4.00 %Unchanged by 0.00 %
Agent Activity
Keller Williams Oxygen created the listing.
Nearby Schools
| Name | Type | Ofsted | Distance |
|---|---|---|---|
| Northlands Primary School | Community School | Good | 0.32 KM |
| Lawrence Sheriff School | Academy Converter | 0.62 KM | |
| Rugby School | Other Independent School | 0.71 KM | |
| Claremont Children'S Centre (Formerly Rugby Parents Centre) | Children's Centre | 0.98 KM | |
| St Marie'S Catholic Primary School And Nursery | Voluntary Aided School | Good | 1.33 KM |
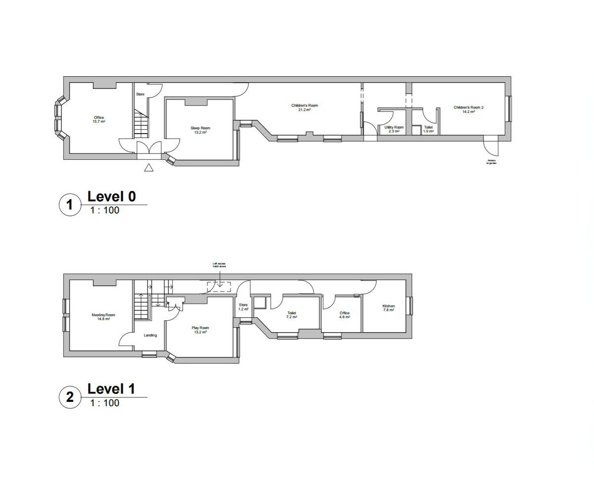
Images
Nearby Streets
| Name | Average Price | Average Sqft | Distance |
|---|---|---|---|
| Albert Square | £ 0 | 0 | 0.00 KM |
| Church Walk | £ 525,000 | 0 | 0.00 KM |
| Craven Road | £ 200,000 | 0 | 0.00 KM |
| Gavel Drive | £ 0 | 0 | 0.00 KM |
| Hughes Close | £ 350,000 | 0 | 0.00 KM |
Nearby Transport
| Name | NLC | TLC | Distance |
|---|---|---|---|
| Rugby | 1087 | RUG | 1.04 KM |
Nearby Listings
| Address | Price | Type | Score | Distance |
|---|---|---|---|---|
| Regent Place, Rugby, CV21 | £ 300,000 | BUY | 6 / 10 | 0.00 KM |
| Regents Place, Rugby | £ 475,000 | BUY | 6 / 10 | 0.05 KM |
| Holbrook Avenue, Rugby | £ 145,000 | BUY | 5 / 10 | 0.09 KM |
| Holbrook Avenue, Rugby | £ 225,000 | BUY | 6 / 10 | 0.09 KM |
| Holbrook Avenue, Rugby | £ 180,000 | BUY | 5 / 10 | 0.10 KM |
Nearby Properties
| Address | Price | Distance |
|---|---|---|
| 67 Albert Street | £ 180,000 | 0.08 KM |
| 86 Holbrook Avenue | £ 210,000 | 0.09 KM |
| 40 Holbrook Avenue | £ 292,500 | 0.09 KM |
| 14 Holbrook Avenue | £ 184,000 | 0.09 KM |
| 42 Holbrook Avenue | £ 185,000 | 0.09 KM |