Waterbridge Court, Appleton, Warrington
By Gascoigne Halman
£ 450,000
Reviews
3 out of 5 stars
Gascoigne Halman says ..
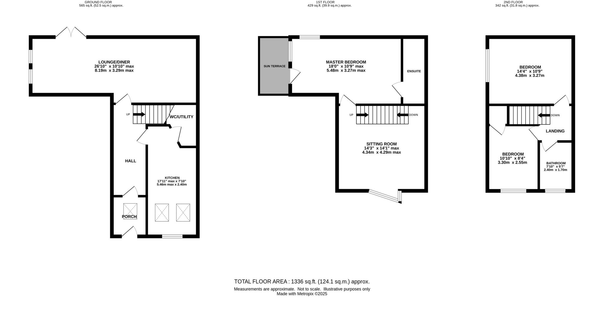
A fantastic three bedroom townhouse situated on the banks of the Bridgewater Canal with mooring. The property has been extended and updated throughout with move into accommodation which offers flexible living over three floors. With driveway parking, rear patio with direct mooring access along wi...
Property Oracle says ..
This three-bedroom, two-bathroom townhouse in Appleton, Warrington, offers a desirable blend of modern convenience and tranquil canal-side living. The property is situated in a family-friendly area with excellent access to highly-rated schools and the vibrant Stockton Heath village. The interior boasts a modern kitchen, which is a key selling point for many buyers. The property benefits from a patio area and a balcony, providing some outdoor space, although the overall plot size is relatively small. The images showcase a well-maintained interior, though minor cosmetic upgrades could enhance the overall presentation. The property’s proximity to Warrington Central and Bank Quay train stations offers convenient transport links. The list price is in line with other properties in the area, but a more detailed comparison using square footage data would be beneficial for a more thorough price analysis. Overall, this property presents a good opportunity for families or professionals seeking a comfortable home in a desirable location.
Therefore, we give this property 6 / 10. *Disclaimer: This is our option and does constitute a recommendation or financial advice. Do your own research. *
- Price
- 7
- Condition
- 7
- Location
- 8
- Land
- 4
- Bedrooms
- 3
- Bathrooms
- 2
- Sqft (est)
- 1,336.00
The heatmap indicates the level of crime in the area. The color of the heatmap indicates the crime severity and recency.
Metrics Year-on-Year
- Average area value
- 375,667.00 £Decreased by 6.15 %
- Est sale value
- 499,664.00 £Increased by 15.08 %
- Average area rental value
- 1,270.00 £/moDecreased by 19.62 %
- Est letting value
- 1,336.00 £/moUnchanged by 0.00 %
- Est rental Yield
- 4.06 %Decreased by 14.35 %
- Crime Rate
- 2.00 %Unchanged by 0.00 %
Agent Activity
Gascoigne Halman created the listing.
Nearby Schools
| Name | Type | Ofsted | Distance |
|---|---|---|---|
| St Thomas' Cofe Primary School | Voluntary Aided School | Good | 0.53 KM |
| St Monica'S Catholic Primary School | Voluntary Aided School | Good | 0.63 KM |
| Bridgewater High School | Academy Converter | 0.65 KM | |
| The Cobbs Infant And Nursery School | Community School | Good | 0.79 KM |
| The Cygnets Children'S Centre | Children's Centre Linked Site | 0.90 KM |
Images
Nearby Streets
| Name | Average Price | Average Sqft | Distance |
|---|---|---|---|
| Waterside | £ 315,000 | 0 | 0.00 KM |
| East Avenue | £ 468,125 | 0 | 0.00 KM |
| Sandy Lane | £ 397,500 | 0 | 0.00 KM |
| Beverley Avenue | £ 362,500 | 0 | 0.00 KM |
| Greenfields Avenue | £ 389,995 | 0 | 0.00 KM |
Nearby Transport
| Name | NLC | TLC | Distance |
|---|---|---|---|
| Warrington Central | 2390 | WAC | 3.16 KM |
| Warrington Bank Quay | 2384 | WBQ | 3.40 KM |
| Padgate | 2387 | PDG | 4.77 KM |
| Warrington West | 6583 | WAW | 7.30 KM |
| Birchwood | 2304 | BWD | 7.60 KM |
Nearby Listings
| Address | Price | Type | Score | Distance |
|---|---|---|---|---|
| Waterbridge Court, Appleton, Warrington | £ 450,000 | BUY | 6 / 10 | 0.00 KM |
| Waterbridge Court, Appleton, Warrington, Cheshire, WA4 | £ 250,000 | BUY | 6 / 10 | 0.05 KM |
| London Road, Stockton Heath, Warrington | £ 115,000 | BUY | 5 / 10 | 0.08 KM |
| Waverley Avenue, Appleton, Warrington | £ 315,000 | BUY | 7 / 10 | 0.10 KM |
| Sandy Lane, Stockton Heath, WA4 | £ 370,000 | BUY | 6 / 10 | 0.14 KM |
Nearby Properties
| Address | Price | Distance |
|---|---|---|
| 21 Waterbridge Court | £ 312,500 | 0.05 KM |
| 25 Waterbridge Court | £ 199,950 | 0.05 KM |
| 10 Waterbridge Court | £ 192,500 | 0.05 KM |
| 16 Waterbridge Court | £ 145,000 | 0.05 KM |
| 23 Waterbridge Court | £ 320,000 | 0.05 KM |