Creek House, Narrow Street, Limehouse
By Rubicon Estate Agents Limited
£ 700,000
Reviews
2 out of 5 stars
Rubicon Estate Agents Limited says ..
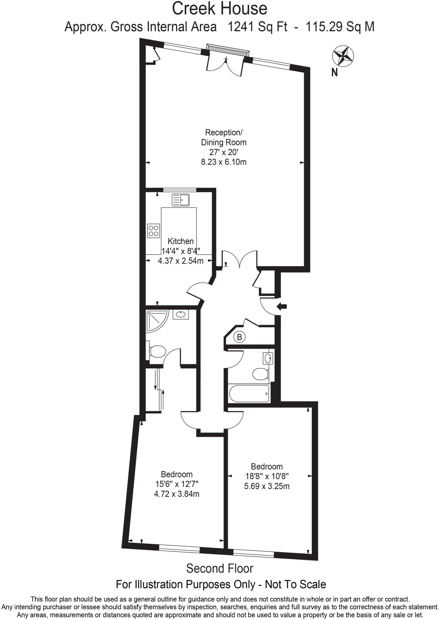
A superbly presented and spacious two-bedroom apartment located in one of East London's most desirable roads, Narrow Street in Limehouse E14
Property Oracle says ..
This two-bedroom, two-bathroom apartment in Limehouse, located on Narrow Street, offers a convenient city location. The property’s size of 1240 sq ft is attractive in a city environment. The interior is functional and well-presented, although the décor and kitchen could benefit from modern updates. The lack of external space, however, is a significant limitation. The apartment is well-situated near Limehouse station, providing easy access to Canary Wharf and the City. While the surrounding area may not offer extensive green spaces, the presence of schools and other amenities nearby strengthens its appeal. The asking price appears to be on par with the average market price for comparable properties in the immediate vicinity, given its condition and size. It’s important to note, that the surrounding area includes properties of differing value that significantly impact average prices in the area. Prospective buyers should consider the absence of a garden or private outdoor space a key factor in their decision-making.
Therefore, we give this property 5 / 10. *Disclaimer: This is our option and does constitute a recommendation or financial advice. Do your own research. *
- Price
- 7
- Condition
- 6
- Location
- 7
- Land
- 1
- Bedrooms
- 2
- Bathrooms
- 2
- Sqft (est)
- 1,240.97
The heatmap indicates the level of crime in the area. The color of the heatmap indicates the crime severity and recency.
Metrics Year-on-Year
- Average area value
- 1,141,429.00 £Increased by 63.94 %
- Est sale value
- 1,133,005.61 £Increased by 10.27 %
- Average area rental value
- 1,910.00 £/moDecreased by 5.35 %
- Est letting value
- 1,240.97 £/moDecreased by 50.00 %
- Est rental Yield
- 2.01 %Decreased by 42.24 %
- Crime Rate
- 2.00 %Unchanged by 0.00 %
Agent Activity
Rubicon Estate Agents Limited created the listing.
Nearby Schools
| Name | Type | Ofsted | Distance |
|---|---|---|---|
| Around Poplar Children'S Centre | Children's Centre | 0.37 KM | |
| East India | Children's Centre Linked Site | 0.37 KM | |
| Cyril Jackson Primary School | Academy Converter | 0.40 KM | |
| Sir William Burrough Primary School | Academy Converter | 0.60 KM | |
| Stepney Greencoat Church Of England Primary School | Voluntary Aided School | Good | 0.63 KM |
Images
Nearby Streets
| Name | Average Price | Average Sqft | Distance |
|---|---|---|---|
| The Mitre | £ 0 | 0 | 0.00 KM |
| Horns Stairs | £ 0 | 0 | 0.00 KM |
| Nelson Dock Pier | £ 0 | 0 | 0.00 KM |
| Lawrence Wharf | £ 0 | 0 | 0.00 KM |
| Parnham Street | £ 0 | 0 | 0.00 KM |
Nearby Transport
| Name | NLC | TLC | Distance |
|---|---|---|---|
| Limehouse | 7491 | LHS | 0.87 KM |
| Canada Water | 1659 | ZCW | 2.19 KM |
| New Cross | 5150 | NWX | 2.19 KM |
| Rotherhithe | 1039 | ROE | 2.27 KM |
| Surrey Quays | 1083 | SQE | 2.34 KM |
Nearby Listings
| Address | Price | Type | Score | Distance |
|---|---|---|---|---|
| Creek House, Narrow Street, Limehouse | £ 700,000 | BUY | 5 / 10 | 0.00 KM |
| , Creek House, E14 | £ 700,000 | BUY | 7 / 10 | 0.00 KM |
| Narrow Street,London,E14 8BP | £ 1,750,000 | BUY | 7 / 10 | 0.00 KM |
| Duke Shore Wharf, E14 | £ 675,000 | BUY | 6 / 10 | 0.01 KM |
| Barge Wharf, 94 Narrow Street, Limehouse, London, E14 | £ 2,500,000 | BUY | 6 / 10 | 0.02 KM |
Nearby Properties
| Address | Price | Distance |
|---|---|---|
| 86 Narrow Street | £ 3,000,000 | 0.00 KM |
| 138 Narrow Street | £ 2,550,000 | 0.00 KM |
| 102 Narrow Street | £ 500,000 | 0.00 KM |
| 142 Narrow Street | £ 1,850,000 | 0.00 KM |
| 94a Narrow Street | £ 550,000 | 0.00 KM |