FR
Cadia Close, Caddington, Luton, Bedfordshire, LU1
By Frost's Estate Agents
£ 425,000
Reviews
3 out of 5 stars
Frost's Estate Agents says ..
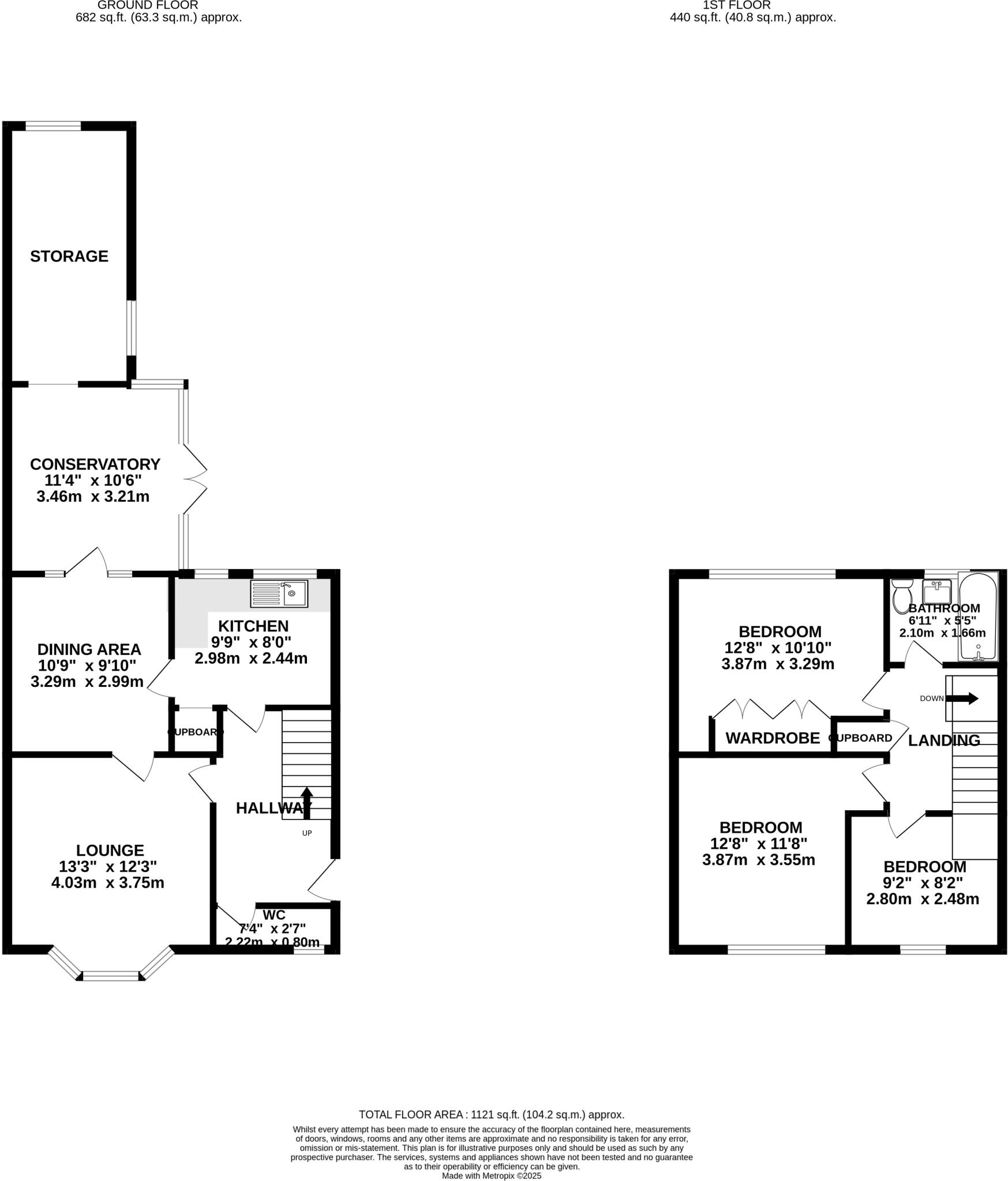
This three-bedroom end of terrace home is well located in the village of Caddington and presents excellent scope for updating and extension (subject to planning). Positioned at the end of a quiet close, it offers a family-friendly setting with nearby schools, amenities and open countryside.
Property Oracle says ..
Therefore, we give this property 7 / 10. *Disclaimer: This is our option and does constitute a recommendation or financial advice. Do your own research. *
- Price
- 7
- Condition
- 8
- Location
- 7
- Land
- 7
- Bedrooms
- 3
- Bathrooms
- 1
The heatmap indicates the level of crime in the area. The color of the heatmap indicates the crime severity and recency.
Metrics Year-on-Year
- Average area value
- 443,750.00 £Decreased by 18.92 %
- Average area rental value
- 1,293.00 £/moDecreased by 31.77 %
- Est rental Yield
- 3.50 %Decreased by 15.87 %
- Crime Rate
- 46.00 %Unchanged by 0.00 %
from 547,267.00 £
from 1,895.00 £/mo
from 4.16 %
from 46.00 %
Agent Activity
Frost's Estate Agents created the listing.
Nearby Schools
| Name | Type | Ofsted | Distance |
|---|---|---|---|
| Caddington Village School | Community School | Good | 0.91 KM |
| Flying Start West @ Foxdell | Children's Centre Linked Site | 1.83 KM | |
| Foxdell Junior School | Community School | Requires improvement | 2.02 KM |
| St Margaret Of Scotland Catholic Primary School | Academy Converter | Requires improvement | 2.08 KM |
| Foxdell Infant School | Community School | Good | 2.19 KM |
Images
Nearby Streets
| Name | Average Price | Average Sqft | Distance |
|---|---|---|---|
| Cada Close | £ 0 | 0 | 0.00 KM |
| The Green | £ 0 | 0 | 0.00 KM |
| Meadow Croft | £ 0 | 0 | 0.00 KM |
| Heathfield Close | £ 0 | 0 | 0.00 KM |
| The Dell | £ 0 | 0 | 0.00 KM |
Nearby Transport
| Name | NLC | TLC | Distance |
|---|---|---|---|
| Leagrave | 1534 | LEA | 4.27 KM |
| Luton | 1536 | LUT | 5.08 KM |
| Luton Airport Parkway | 3645 | LTN | 6.81 KM |
Nearby Listings
| Address | Price | Type | Score | Distance |
|---|---|---|---|---|
| Cadia Close, Caddington, Luton, Bedfordshire, LU1 | £ 425,000 | BUY | 7 / 10 | 0.00 KM |
| The Green, Caddington, LU1 | £ 395,000 | BUY | 7 / 10 | 0.18 KM |
| Collings Wells Close, Caddington, LU1 | £ 350,000 | BUY | 6 / 10 | 0.18 KM |
| Collings Wells Close, Caddington, LU1 | £ 190,000 | BUY | 6 / 10 | 0.18 KM |
| Winchfield, Caddington, LU1 | £ 599,995 | BUY | 7 / 10 | 0.22 KM |
Nearby Properties
| Address | Price | Distance |
|---|---|---|
| 3 Cadia Close | £ 385,000 | 0.01 KM |
| 6 Cadia Close | £ 309,950 | 0.01 KM |
| 7 Cadia Close | £ 348,000 | 0.01 KM |
| 5 Cadia Close | £ 352,000 | 0.01 KM |
| 2 Cadia Close | £ 312,500 | 0.01 KM |