Barley Way, Ashford, TN23
By Evolution Properties
£ 325,000
Reviews
3 out of 5 stars
Evolution Properties says ..
Are you looking for a spacious 3 bedroom home in Ashford coming with garage, parking for 2, lounge with sperate dining room and is being sold with no onwards chain. Call now to arrange a viewing.
Property Oracle says ..
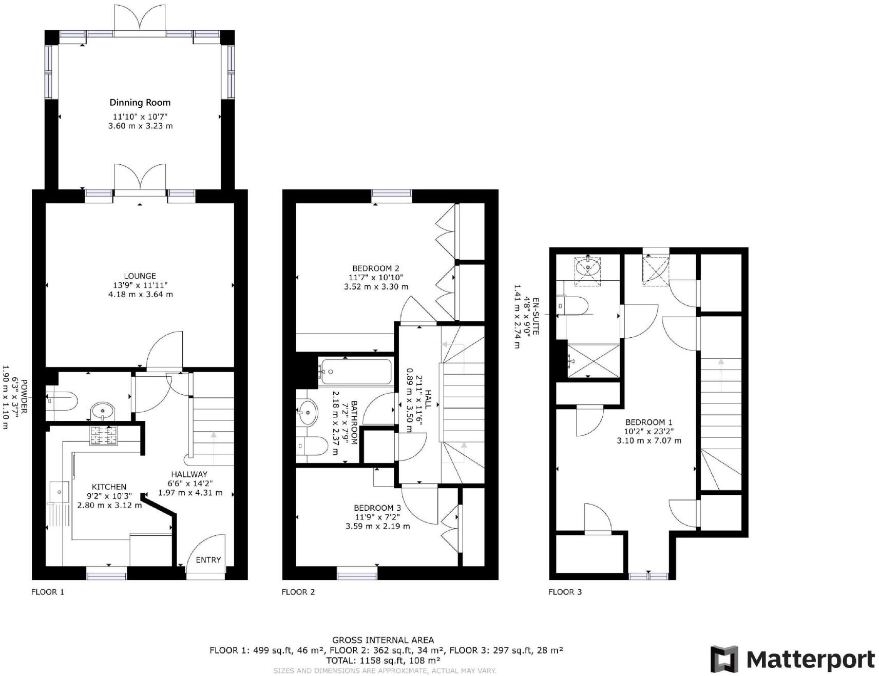
This three-bedroom, two-bathroom terraced house in Ashford, Kent is listed at £325,000. The property boasts 1,262.61 sqft of living space and benefits from a garden. The average house price in the area is £288,821, with an average price per sqft of £318. Nearby comparable properties range in price from £89,000 to £405,000, indicating some price variation in the immediate vicinity. The property appears to be in good condition based on the provided images, with a modern kitchen and conservatory. The location is close to several schools with good Ofsted ratings and is within reasonable distance of Ashford International train station. Given the property’s condition, location, and amenities, the list price is within the range of comparable properties, making it a potentially reasonable price.
Therefore, we give this property 7 / 10. *Disclaimer: This is our option and does constitute a recommendation or financial advice. Do your own research. *
- Price
- 7
- Condition
- 8
- Location
- 7
- Land
- 7
- Bedrooms
- 3
- Bathrooms
- 2
- Sqft (est)
- 1,262.61
The heatmap indicates the level of crime in the area. The color of the heatmap indicates the crime severity and recency.
Metrics Year-on-Year
- Average area value
- 197,000.00 £Decreased by 35.79 %
- Est sale value
- 392,671.71 £Increased by 0.65 %
- Average area rental value
- 1,400.00 £/moIncreased by 16.28 %
- Est letting value
- 2,525.22 £/moIncreased by 100.00 %
- Est rental Yield
- 8.53 %Increased by 81.10 %
- Crime Rate
- 3.00 %Unchanged by 0.00 %
Agent Activity
Evolution Properties marked this listing as sold.
Evolution Properties created the listing.
Nearby Schools
| Name | Type | Ofsted | Distance |
|---|---|---|---|
| The John Wesley Church Of England Methodist Voluntary Aided Primary School | Voluntary Aided School | Good | 0.88 KM |
| Beaver Green Primary School | Academy Sponsor Led | Good | 1.16 KM |
| Great Chart Primary School | Community School | Outstanding | 1.35 KM |
| The John Wallis Church Of England Academy | Academy Sponsor Led | Good | 1.40 KM |
| Ray Allen Children'S Centre | Children's Centre | 1.61 KM |
Images
Nearby Streets
| Name | Average Price | Average Sqft | Distance |
|---|---|---|---|
| Coppice Drive | £ 0 | 0 | 0.00 KM |
| Hedgers Way | £ 420,995 | 0 | 0.00 KM |
| Summerhill | £ 0 | 0 | 0.00 KM |
| St. Anne's Road | £ 295,000 | 0 | 0.00 KM |
| Great Chart Bypass | £ 0 | 0 | 0.00 KM |
Nearby Transport
| Name | NLC | TLC | Distance |
|---|---|---|---|
| Ashford International | 5004 | AFK | 4.13 KM |
| Ham Street | 5037 | HMT | 6.59 KM |
Nearby Listings
| Address | Price | Type | Score | Distance |
|---|---|---|---|---|
| Barley Way, Ashford, TN23 | £ 325,000 | BUY | 7 / 10 | 0.00 KM |
| Barley Way, Ashford, TN23 | £ 500,000 | BUY | 7 / 10 | 0.08 KM |
| Hestia Way, Kingsnorth | £ 375,000 | BUY | 6 / 10 | 0.13 KM |
| Marsh Rise, Chilmington Green | £ 350,000 | BUY | 6 / 10 | 0.15 KM |
| Forum Way, Kingsnorth, Ashford | £ 360,000 | BUY | Unknown | 0.16 KM |
Nearby Properties
| Address | Price | Distance |
|---|---|---|
| 3 Barley Way | £ 190,000 | 0.00 KM |
| 6 Barley Way | £ 285,000 | 0.00 KM |
| 34 Barley Way | £ 315,000 | 0.00 KM |
| 23 Barley Way | £ 385,000 | 0.00 KM |
| 17 Barley Way | £ 136,000 | 0.00 KM |