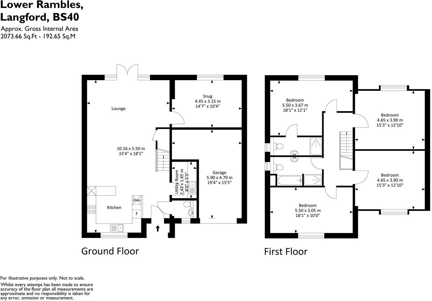
Lower Rambles, Langford
HO

Lower Rambles, Langford

By Hollis Morgan

£ 650,000

Reviews

3 out of 5 stars

Hollis Morgan says ..

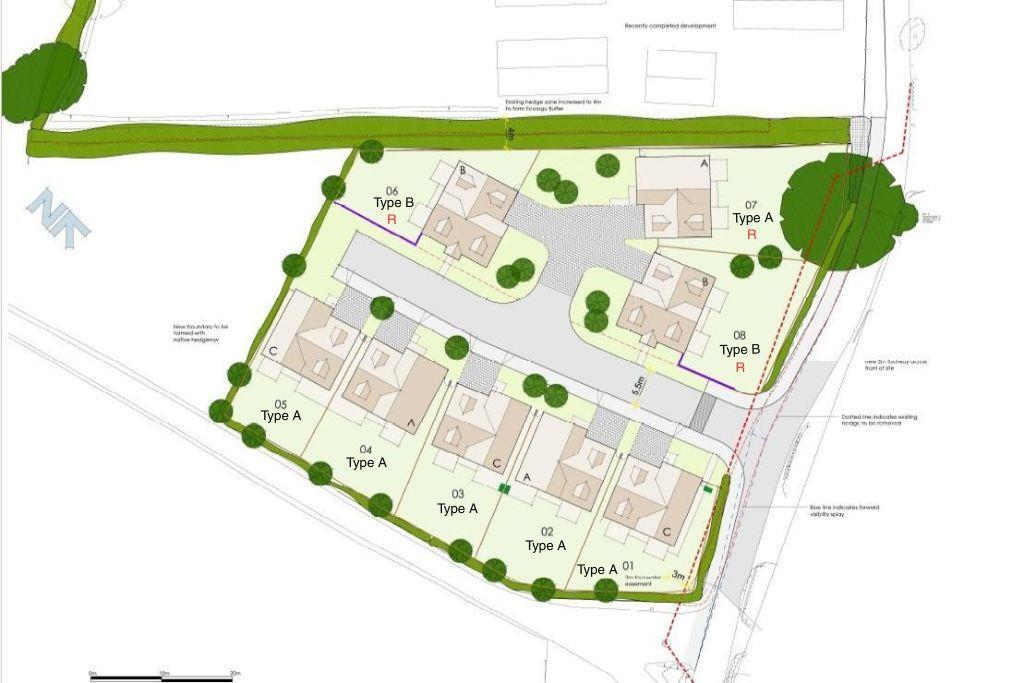
Hollis Morgan I New Homes - VIEWINGS AVAILABLE - A bespoke development of just 8 detached circa 2000 sq ft family homes located in the sought after village of Langford.

Property Oracle says ..

Lower Rambles in Langford presents a modern house in a desirable location. The property benefits from proximity to reputable schools and convenient transportation links. The house appears to be in excellent condition, featuring modern interiors and well-maintained amenities. While the exact square footage is not provided, the property offers a comfortable living space with a garden. The price appears competitive compared to the average property prices in the area, making it an attractive option for potential buyers. The property is listed with Hollis Morgan.

Therefore, we give this property 7 / 10. *Disclaimer: This is our option and does constitute a recommendation or financial advice. Do your own research. *

Price
7
Condition
9
Location
7
Land
6
Bedrooms
4
Bathrooms
3

The heatmap indicates the level of crime in the area. The color of the heatmap indicates the crime severity and recency.

Metrics Year-on-Year

Average area value
881,250.00 £
Increased by 10.74 %
from 795,785.00 £
Average area rental value
1,300.00 £/mo
Decreased by 43.36 %
from 2,295.00 £/mo
Est rental Yield
1.77 %
Decreased by 48.84 %
from 3.46 %
Crime Rate
7.00 %
Unchanged by 0.00 %
from 7.00 %

Agent Activity

  • Hollis Morgan created the listing.

Nearby Schools

NameTypeOfstedDistance
Churchill Church Of England Primary SchoolVoluntary Controlled SchoolGood0.69 KM
Churchill Academy & Sixth FormAcademy ConverterOutstanding2.00 KM
Shipham Church Of England First SchoolAcademy Converter2.61 KM
Sandford Primary SchoolAcademy Converter3.71 KM
Sidcot SchoolOther Independent School4.20 KM

Images

View-C-Langford-LR.jpg View-B-Langford-LR.jpg View-A-Langford-LR.jpg TYPE A UTLITY V1.jpg TYPE A V1.jpg View-D-Langford-HR.jpg Rambles .jpg Site Plan.jpg SHIRE TYPE A V3.jpg TYPE A V2.jpg

Nearby Streets

NameAverage PriceAverage SqftDistance
Warren View £ 000.00 KM
Six Acres Close £ 000.00 KM
Rowan Way £ 000.00 KM
Jews Lane £ 000.00 KM
Brook Gardens £ 400,00000.00 KM

Nearby Transport

NameNLCTLCDistance
Yatton3392YAT7.10 KM

Nearby Listings

AddressPriceTypeScoreDistance
Lower Rambles, Langford £ 650,000BUY7 / 100.00 KM
Lower Rambles, Langford £ 650,000BUY7 / 100.00 KM
Lower Rambles, Langford £ 650,000BUY7 / 100.12 KM
Lower Rambles, Langford £ 650,000BUYUnknown0.12 KM
The Old School Close, Churchill £ 280,000BUY6 / 100.20 KM

Nearby Properties

AddressPriceDistance
Broughton £ 635,0000.07 KM
Maori £ 399,0000.07 KM
Hilberry £ 220,0000.07 KM
Starfield £ 540,0000.07 KM
Park View £ 310,0000.07 KM