London Road, Old Basing, Basingstoke, Hampshire, RG24
By Bridges Estate Agents
£ 185,000
Reviews
3 out of 5 stars
Bridges Estate Agents says ..
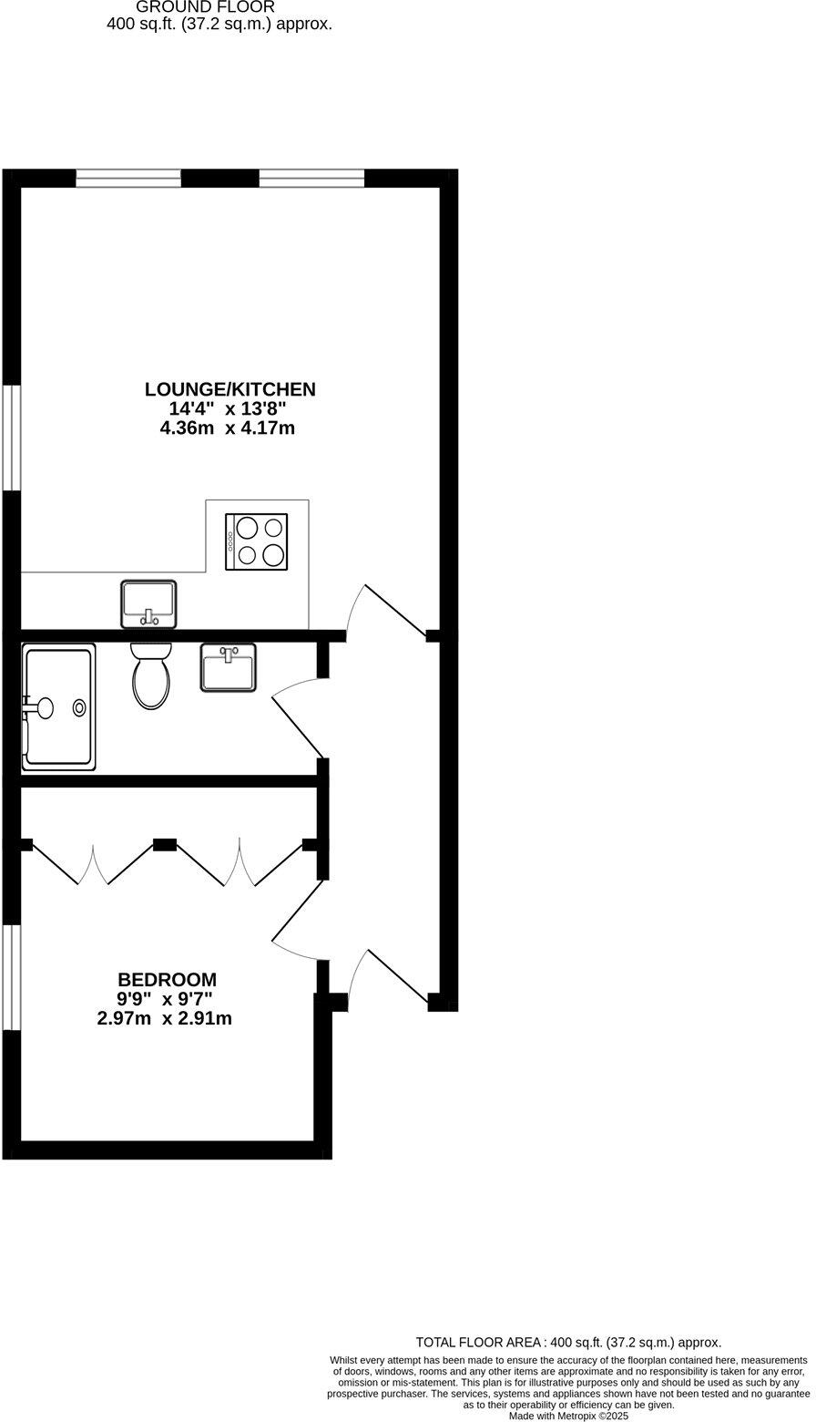
Situated on the edge of Old Basing and overlooking the river Lyde is this collection of 17 high specification apartments built by local developer 4DS Construction. This apartment has an open plan living/dining room with a fitted kitchen with integrated NEFF appliances to include hide a...
Property Oracle says ..
This is a modern flat in Old Basing, near Basingstoke. The property appears to be in excellent condition, with modern fixtures and fittings. While the square footage is relatively small, the location is desirable due to the proximity to good schools and the general ambiance of Old Basing. The lack of private outdoor space is a drawback. The price seems reasonable for the condition and location.
Therefore, we give this property 6 / 10. *Disclaimer: This is our option and does constitute a recommendation or financial advice. Do your own research. *
- Price
- 7
- Condition
- 9
- Location
- 7
- Land
- 3
- Bedrooms
- 1
- Bathrooms
- 1
- Sqft (est)
- 276.17
The heatmap indicates the level of crime in the area. The color of the heatmap indicates the crime severity and recency.
Metrics Year-on-Year
- Average area value
- 1,258,750.00 £Increased by 38.62 %
- Est sale value
- 162,664.13 £Decreased by 3.13 %
- Average area rental value
- 2,017.00 £/moDecreased by 42.17 %
- Est letting value
- 0.00 £/moDecreased by 100.00 %
- Est rental Yield
- 1.92 %Decreased by 58.35 %
- Crime Rate
- 28.00 %Unchanged by 0.00 %
Agent Activity
Bridges Estate Agents created the listing.
Nearby Schools
| Name | Type | Ofsted | Distance |
|---|---|---|---|
| St Mary'S Church Of England Voluntary Aided Junior School | Voluntary Aided School | Good | 1.51 KM |
| Old Basing Infant School | Community School | Outstanding | 1.64 KM |
| The Courtyard Children'S Centre | Children's Centre Linked Site | 3.14 KM | |
| Great Binfields Primary School | Community School | Good | 3.25 KM |
| Lily Pads And The Courtyard Children'S Centre | Children's Centre | 3.76 KM |
Images
Nearby Streets
| Name | Average Price | Average Sqft | Distance |
|---|---|---|---|
| Cob Tree Cottages Tunworth Road | £ 395,000 | 0 | 0.00 KM |
| Manor Lane | £ 275,000 | 0 | 0.00 KM |
| Crown Lane | £ 0 | 0 | 0.00 KM |
Nearby Transport
| Name | NLC | TLC | Distance |
|---|---|---|---|
| Basingstoke | 5520 | BSK | 6.14 KM |
| Hook | 5523 | HOK | 7.94 KM |
| Bramley (Hampshire) | 5500 | BMY | 7.96 KM |
Nearby Listings
| Address | Price | Type | Score | Distance |
|---|---|---|---|---|
| London Road, Old Basing, Basingstoke, Hampshire, RG24 | £ 240,000 | BUY | 6 / 10 | 0.00 KM |
| London Road, Old Basing, Basingstoke, Hampshire, RG24 | £ 315,000 | BUY | 6 / 10 | 0.00 KM |
| London Road, Old Basing, Basingstoke, Hampshire, RG24 | £ 185,000 | BUY | 6 / 10 | 0.00 KM |
| London Road, Old Basing, Basingstoke, Hampshire, RG24 | £ 240,000 | BUY | 7 / 10 | 0.00 KM |
| London Road, Old Basing, Basingstoke, Hampshire, RG24 | £ 190,000 | BUY | 6 / 10 | 0.00 KM |
Nearby Properties
| Address | Price | Distance |
|---|---|---|
| Keepers End | £ 317,000 | 0.27 KM |
| 57 Belle Vue Road | £ 374,000 | 0.32 KM |
| 59 Belle Vue Road | £ 390,000 | 0.32 KM |
| 88 Belle Vue Road | £ 447,500 | 0.32 KM |
| 102 Belle Vue Road | £ 353,000 | 0.39 KM |