Moorsholm, Saltburn-By-The-Sea
By Inglebys Estate Agents
£ 125,000
Reviews
2 out of 5 stars
Inglebys Estate Agents says ..
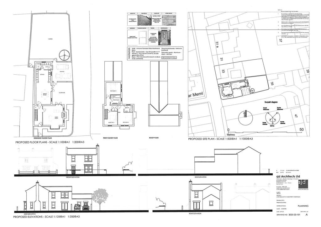
A fabulous opportunity to purchase one of the most desirable building plots in the heart of Moorsholm! This plot (approximately 310 square metres) with full planning permission from Redcar and Cleveland Council (13th Nov 2023, REF: R/2023/0751/CA) allows the erection of a three bedroom detached p...
Property Oracle says ..
This property in Moorsholm, Saltburn-by-the-Sea, presents a mixed bag. The location offers a peaceful village setting while still being within reasonable distance of Saltburn-by-the-Sea’s amenities. Several schools are nearby, though transportation to them might require car usage. Train stations are within driving distance. The property itself needs some renovation. The current state of the garden and outbuildings suggests a need for significant work and investment to bring them up to a desirable standard. The list price seems competitive relative to other properties in the area, although further details on the property’s square footage would be crucial for a more thorough price-to-size assessment. Buyers should factor in renovation and landscaping costs when considering the purchase. The planning permission for the plot to build a three-bedroom detached house in the heart of Moorsholm is a significant asset. Overall, this is a property that would appeal to buyers who are looking for a project and are comfortable investing time and resources to improve it.
Therefore, we give this property 5 / 10. *Disclaimer: This is our option and does constitute a recommendation or financial advice. Do your own research. *
- Price
- 7
- Condition
- 4
- Location
- 6
- Land
- 5
- Bedrooms
- 3
- Bathrooms
- 2
The heatmap indicates the level of crime in the area. The color of the heatmap indicates the crime severity and recency.
Metrics Year-on-Year
- Average area value
- 184,988.00 £Decreased by 6.95 %
- Average area rental value
- 981.00 £/moIncreased by 20.37 %
- Est rental Yield
- 6.36 %Increased by 29.27 %
- Crime Rate
- 45.00 %Unchanged by 0.00 %
Agent Activity
Inglebys Estate Agents created the listing.
Nearby Schools
| Name | Type | Ofsted | Distance |
|---|---|---|---|
| Lingdale Primary School | Foundation School | Requires improvement | 3.46 KM |
| Old Farm School | Other Independent School | Good | 3.47 KM |
| Badger Hill Academy | Academy Converter | Good | 5.26 KM |
| Freebrough Academy | Academy Sponsor Led | 5.65 KM | |
| Lockwood Primary School | Foundation School | Good | 5.80 KM |
Images
Nearby Streets
| Name | Average Price | Average Sqft | Distance |
|---|---|---|---|
| Long Lane | £ 0 | 0 | 0.00 KM |
Nearby Transport
| Name | NLC | TLC | Distance |
|---|---|---|---|
| Castleton Moor | 7914 | CSM | 5.93 KM |
| Commondale | 7515 | COM | 6.04 KM |
| Danby | 7915 | DNY | 6.57 KM |
| Saltburn | 7951 | SLB | 8.25 KM |
Nearby Listings
| Address | Price | Type | Score | Distance |
|---|---|---|---|---|
| Moorsholm, Saltburn-By-The-Sea | £ 125,000 | BUY | 5 / 10 | 0.00 KM |
| Guisborough Road, Moorsholm | £ 320,000 | BUY | 6 / 10 | 0.07 KM |
| High Street, Moorsholm | £ 249,000 | BUY | 7 / 10 | 0.13 KM |
| Wesley Bungalow, Moorsholm | £ 475,000 | BUY | 6 / 10 | 0.17 KM |
| The Forge, High Street | £ 700,000 | BUY | 6 / 10 | 0.17 KM |
Nearby Properties
| Address | Price | Distance |
|---|---|---|
| 1 Hillocks Lane | £ 225,000 | 0.15 KM |
| 2 Hillocks Lane | £ 500,000 | 0.15 KM |
| 35 High Street | £ 270,000 | 0.17 KM |
| Spout Haugh | £ 40,000 | 0.17 KM |
| 41 High Street | £ 85,000 | 0.17 KM |