New Peachey Lane, Uxbridge
By Allday & Miller
£ 550,000
Reviews
3 out of 5 stars
Allday & Miller says ..
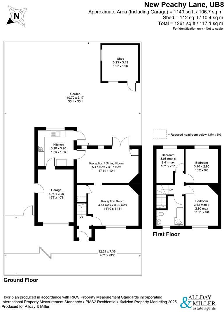
A well presented three bedroom semi-detached family home on New Peachey Lane, offering a garage via its own driveway and excellent potential to extend (STPP). Ideally located within easy reach of the Elizabeth Line at West Drayton, providing fast links into Central London.
Property Oracle says ..
This semi-detached property on New Peachey Lane in Uxbridge offers a blend of comfortable living and convenient access to local amenities. The house features three bedrooms and a modern bathroom, with a garden providing outdoor space. While the kitchen could benefit from modernization, the overall condition of the property appears good. The location is advantageous, with proximity to schools and transportation links. The inclusion of parking and a garage adds further value. The asking price of £550,000 seems reasonable given the property’s features and location, though potential buyers may factor in the cost of kitchen upgrades.
Therefore, we give this property 6 / 10. *Disclaimer: This is our option and does constitute a recommendation or financial advice. Do your own research. *
- Price
- 7
- Condition
- 7
- Location
- 7
- Land
- 6
- Bedrooms
- 3
- Bathrooms
- 1
The heatmap indicates the level of crime in the area. The color of the heatmap indicates the crime severity and recency.
Metrics Year-on-Year
- Average area value
- 339,500.00 £Decreased by 27.77 %
- Average area rental value
- 2,925.00 £/moIncreased by 54.03 %
- Est rental Yield
- 10.34 %Increased by 113.20 %
- Crime Rate
- 7.00 %Unchanged by 0.00 %
Agent Activity
Allday & Miller created the listing.
Nearby Schools
| Name | Type | Ofsted | Distance |
|---|---|---|---|
| Cowley Children'S Centre | Children's Centre | 0.48 KM | |
| Cowley St Laurence Cofe Primary School | Academy Converter | Good | 0.48 KM |
| Rabbsfarm Primary School | Community School | Good | 0.92 KM |
| The Young People'S Academy | Academy Special Sponsor Led | Good | 1.00 KM |
| St Matthew'S Cofe Primary School | Academy Converter | Requires improvement | 1.22 KM |
Images
Nearby Streets
| Name | Average Price | Average Sqft | Distance |
|---|---|---|---|
| U70 | £ 0 | 0 | 0.00 KM |
| Saint Clement Close | £ 550,000 | 0 | 0.00 KM |
| St. Cuthbert Lane | £ 330,000 | 0 | 0.00 KM |
| Canal Way - London Loop | £ 0 | 0 | 0.00 KM |
| Maygoods Green | £ 435,000 | 0 | 0.00 KM |
Nearby Transport
| Name | NLC | TLC | Distance |
|---|---|---|---|
| West Drayton | 3174 | WDT | 1.56 KM |
| Iver | 3170 | IVR | 3.31 KM |
| Heathrow Terminal 5 | 9846 | HWV | 5.88 KM |
| Heathrow Terminals 2 And 3 (Rail Station Only) | 7090 | HXX | 6.28 KM |
| Denham | 3052 | DNM | 6.64 KM |
Nearby Listings
| Address | Price | Type | Score | Distance |
|---|---|---|---|---|
| New Peachey Lane, Uxbridge | £ 550,000 | BUY | 6 / 10 | 0.00 KM |
| New Peachey Lane, Uxbridge, UB8 | £ 600,000 | BUY | 6 / 10 | 0.01 KM |
| Barnacre Close, Uxbridge, UB8 | £ 649,950 | BUY | 7 / 10 | 0.08 KM |
| High Road, Cowley, Uxbridge | £ 530,000 | BUY | 7 / 10 | 0.10 KM |
| High Road, Cowley | £ 500,000 | BUY | 6 / 10 | 0.11 KM |
Nearby Properties
| Address | Price | Distance |
|---|---|---|
| 11 New Peachey Lane | £ 295,000 | 0.04 KM |
| 15 New Peachey Lane | £ 245,000 | 0.04 KM |
| 6 New Peachey Lane | £ 430,000 | 0.04 KM |
| 10 New Peachey Lane | £ 550,000 | 0.04 KM |
| 21 New Peachey Lane | £ 490,000 | 0.04 KM |