9 Deveron Way, Romford, RM1 4UL
By McHugh & Co
£ 250,000
Reviews
3 out of 5 stars
McHugh & Co says ..
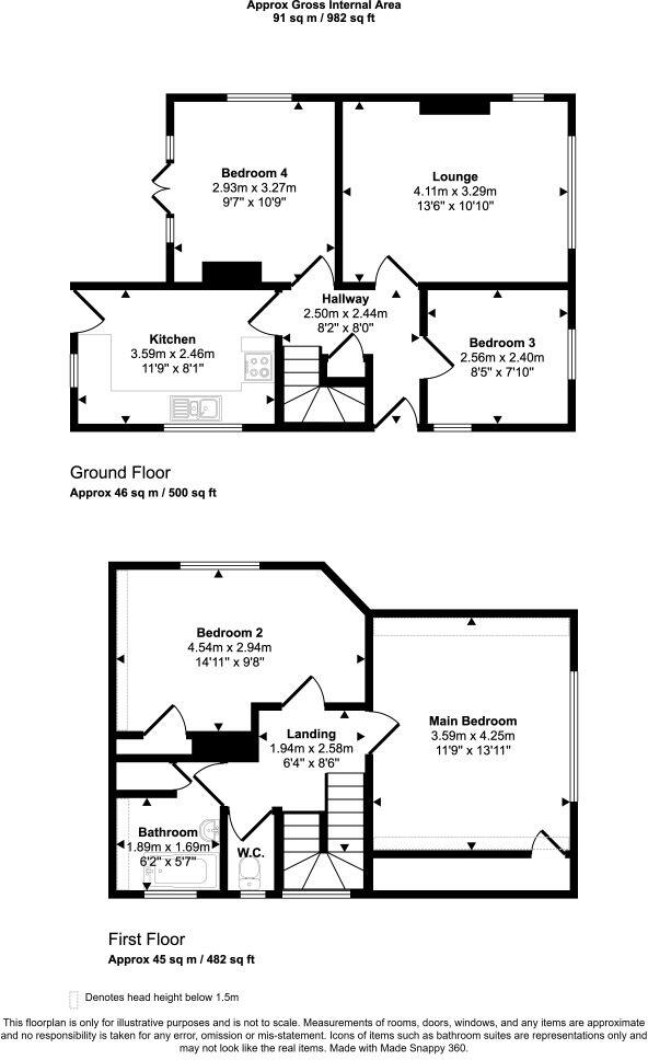
LOT 13 **FOR SALE BY ONLINE AUCTION** on 4th December 2025 Six Week Completion Freehold Detached House Vacant Possession
Property Oracle says ..
9 Deveron Way is a detached property in Pettits, Romford, that requires extensive renovation. While the location offers reasonable access to schools and transportation, the property’s condition is poor, with visible signs of damp and dated interiors. However, the large garden is a positive feature. The list price of £250,000 is significantly below the local average, making it an attractive opportunity for buyers willing to undertake a comprehensive refurbishment project.
Therefore, we give this property 6 / 10. *Disclaimer: This is our option and does constitute a recommendation or financial advice. Do your own research. *
- Price
- 9
- Condition
- 3
- Location
- 7
- Land
- 6
- Bedrooms
- 4
- Bathrooms
- 0
The heatmap indicates the level of crime in the area. The color of the heatmap indicates the crime severity and recency.
Metrics Year-on-Year
- Average area value
- 744,333.00 £Increased by 18.53 %
- Average area rental value
- 1,770.00 £/moDecreased by 1.28 %
- Est rental Yield
- 2.85 %Decreased by 16.91 %
- Crime Rate
- 2.00 %Unchanged by 0.00 %
Agent Activity
McHugh & Co created the listing.
Nearby Schools
| Name | Type | Ofsted | Distance |
|---|---|---|---|
| Rise Park Infant School | Academy Converter | Good | 0.41 KM |
| Rise Park Junior School | Academy Sponsor Led | Good | 0.41 KM |
| Marshalls Park Academy | Academy Converter | Good | 0.75 KM |
| Bower Park Academy | Academy Converter | Good | 0.98 KM |
| Parklands Primary School | Community School | Good | 1.28 KM |
Images
Nearby Streets
| Name | Average Price | Average Sqft | Distance |
|---|---|---|---|
| Cree Way | £ 0 | 0 | 0.00 KM |
| The Drive | £ 350,000 | 0 | 0.00 KM |
| Brook Close | £ 0 | 0 | 0.00 KM |
| The Drive | £ 531,250 | 0 | 0.00 KM |
| Eastern Avenue East | £ 400,000 | 0 | 0.00 KM |
Nearby Transport
| Name | NLC | TLC | Distance |
|---|---|---|---|
| Romford | 6886 | RMF | 2.41 KM |
| Gidea Park | 6877 | GDP | 3.12 KM |
| Emerson Park | 7473 | EMP | 5.24 KM |
| Harold Wood | 6879 | HRO | 5.68 KM |
| Chadwell Heath | 6874 | CTH | 6.65 KM |
Nearby Listings
| Address | Price | Type | Score | Distance |
|---|---|---|---|---|
| 9 Deveron Way, Romford, RM1 4UL | £ 250,000 | BUY | 6 / 10 | 0.00 KM |
| Deveron Way, Rise Park, RM1 | £ 405,000 | BUY | 6 / 10 | 0.00 KM |
| Clyde Way, Rise Park, RM1 | £ 700,000 | BUY | 7 / 10 | 0.06 KM |
| Deveron Way, Rise Park, RM1 | £ 800,000 | BUY | 7 / 10 | 0.07 KM |
| Clyde Way, Romford, RM1 | £ 500,000 | BUY | 7 / 10 | 0.09 KM |
Nearby Properties
| Address | Price | Distance |
|---|---|---|
| 8 Deveron Way | £ 335,000 | 0.04 KM |
| 6 Deveron Way | £ 585,000 | 0.04 KM |
| 10 Deveron Way | £ 370,000 | 0.04 KM |
| 82 Clyde Way | £ 425,000 | 0.11 KM |
| 56 Dee Way | £ 367,500 | 0.13 KM |