LANSDOWN ROAD, NEAR GRIMSBY, IMMINGHAM
By Martin Maslin
£ 169,000
Reviews
2 out of 5 stars
Martin Maslin says ..
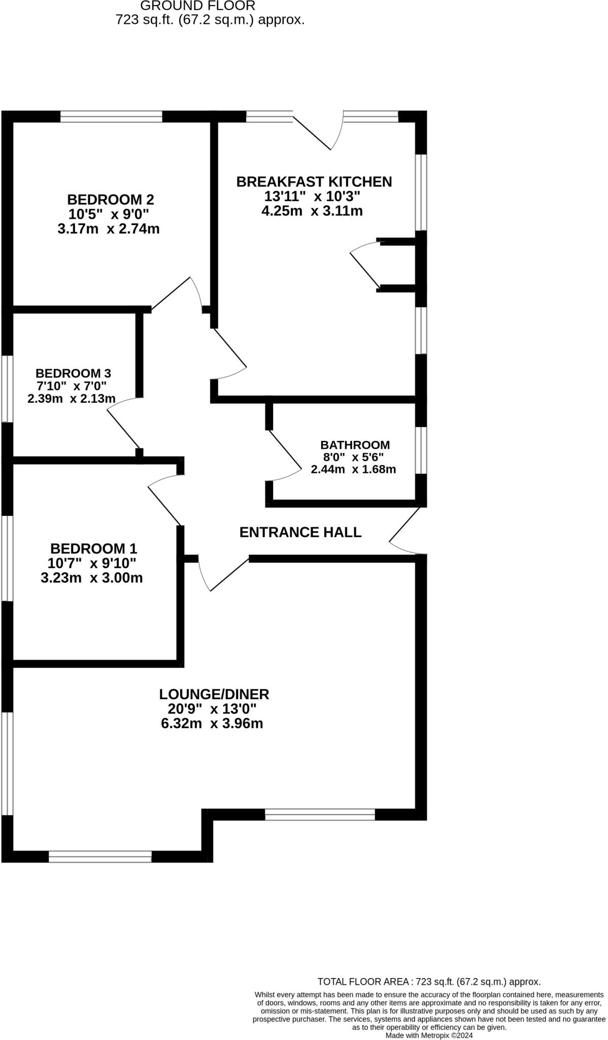
Enjoying a lovely position with a backdrop of established trees, this well proportioned detached bungalow offers accommodation with gas central heating and uPVC framed double glazing. The property offers some scope for presentational updating and is sensibly priced to reflect the potential. (cont.)
Property Oracle says ..
This three-bedroom, one-bathroom detached bungalow located on Lansdown Road, Immingham, is presented in a largely original condition. The property shows clear signs of requiring modernization and cosmetic refurbishment. The interior features dated fixtures and fittings, and some minor wall damage is noticeable. The kitchen and bathroom in particular appear quite dated and would benefit from updating. Flooring throughout is also in need of replacement. Despite this, the property benefits from gas central heating and uPVC double glazing. The exterior presents well, with a neatly maintained garden and a detached garage, adding to the overall appeal. The location is relatively quiet but is conveniently situated near several well-regarded schools and has train stations within a reasonable driving distance. Potential buyers should budget for substantial renovation work. The lack of precise square footage data for comparable properties makes a conclusive valuation challenging, but the asking price appears mostly appropriate given the market in the region and the need for renovation.
Therefore, we give this property 5 / 10. *Disclaimer: This is our option and does constitute a recommendation or financial advice. Do your own research. *
- Price
- 7
- Condition
- 4
- Location
- 6
- Land
- 5
- Bedrooms
- 3
- Bathrooms
- 1
- Sqft (est)
- 723.33
The heatmap indicates the level of crime in the area. The color of the heatmap indicates the crime severity and recency.
Metrics Year-on-Year
- Average area value
- 149,980.00 £Decreased by 22.32 %
- Est sale value
- 122,242.77 £Increased by 1.20 %
- Average area rental value
- 758.00 £/moDecreased by 9.55 %
- Est letting value
- 0.00 £/mo
- Est rental Yield
- 6.06 %Increased by 16.31 %
- Crime Rate
- 7.00 %Unchanged by 0.00 %
Agent Activity
Martin Maslin created the listing.
Nearby Schools
| Name | Type | Ofsted | Distance |
|---|---|---|---|
| Coomb Briggs Primary School | Community School | Good | 0.51 KM |
| Pilgrim Academy | Academy Converter | Good | 0.69 KM |
| Oasis Academy Immingham | Academy Sponsor Led | Good | 1.06 KM |
| Eastfield Primary Academy | Academy Converter | Outstanding | 1.29 KM |
| Immingham Children'S Centre | Children's Centre | 1.29 KM |
Images
Nearby Streets
| Name | Average Price | Average Sqft | Distance |
|---|---|---|---|
| Holbeck Place | £ 0 | 0 | 0.00 KM |
| St Andrews Way | £ 0 | 0 | 0.00 KM |
| Green Lane | £ 0 | 0 | 0.00 KM |
| MacKenzie Place | £ 185,000 | 0 | 0.00 KM |
| Weston Grove | £ 0 | 0 | 0.00 KM |
Nearby Transport
| Name | NLC | TLC | Distance |
|---|---|---|---|
| Habrough | 6281 | HAB | 5.22 KM |
| Stallingborough | 6287 | SLL | 5.47 KM |
| Healing | 6283 | HLI | 7.93 KM |
| Ulceby | 6211 | ULC | 8.57 KM |
Nearby Listings
| Address | Price | Type | Score | Distance |
|---|---|---|---|---|
| LANSDOWN ROAD, NEAR GRIMSBY, IMMINGHAM | £ 169,000 | BUY | 5 / 10 | 0.00 KM |
| BALFOUR PLACE, IMMINGHAM | £ 180,000 | BUY | 6 / 10 | 0.06 KM |
| Balfour Place, Immingham, DN40 | £ 199,950 | BUY | 6 / 10 | 0.09 KM |
| Sonja Crest, Immingham, DN40 | £ 204,950 | BUY | Unknown | 0.13 KM |
| Bluestone Lane, Immingham | £ 295,000 | BUY | Unknown | 0.14 KM |
Nearby Properties
| Address | Price | Distance |
|---|---|---|
| 12 Lansdown Road | £ 140,000 | 0.00 KM |
| 16 Sonja Crest | £ 112,500 | 0.13 KM |
| 10 Sonja Crest | £ 90,000 | 0.13 KM |
| 7 Sonja Crest | £ 127,000 | 0.13 KM |
| 8 Hollingsworth Avenue | £ 49,500 | 0.14 KM |