Virginia Way, Reading, RG30
By AH Lansley Residential
£ 125,000
Reviews
2 out of 5 stars
AH Lansley Residential says ..
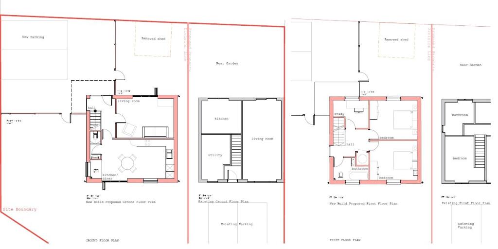
Lansley - A plot of land for sale with full planning consent to build a detached three bedroom dwelling. For more information please see: Or sear...
Property Oracle says ..
This is a plot of land in Southcote, Reading, with planning permission for a 3-bedroom house. The location is reasonable, with several schools nearby. However, the property will require complete construction. The price seems reasonable, given that it is land and requires construction.
Therefore, we give this property 5 / 10. *Disclaimer: This is our option and does constitute a recommendation or financial advice. Do your own research. *
- Price
- 9
- Condition
- 1
- Location
- 5
- Land
- 5
- Bedrooms
- 3
- Bathrooms
- 1
The heatmap indicates the level of crime in the area. The color of the heatmap indicates the crime severity and recency.
Metrics Year-on-Year
- Average area value
- 543,333.00 £Increased by 36.87 %
- Average area rental value
- 1,579.00 £/moDecreased by 11.74 %
- Est rental Yield
- 3.49 %Decreased by 35.49 %
- Crime Rate
- 19.00 %Unchanged by 0.00 %
Agent Activity
AH Lansley Residential created the listing.
Nearby Schools
| Name | Type | Ofsted | Distance |
|---|---|---|---|
| Southcote Children'S Centre | Children's Centre | 0.29 KM | |
| Southcote Primary School | Community School | Good | 0.62 KM |
| Blessed Hugh Faringdon Catholic School | Voluntary Aided School | Good | 0.69 KM |
| The Holy Brook School | Community Special School | Good | 0.77 KM |
| Manor Primary School | Community School | Good | 0.77 KM |
Images
Nearby Streets
| Name | Average Price | Average Sqft | Distance |
|---|---|---|---|
| Maker Close | £ 0 | 0 | 0.00 KM |
| Florian Gardens | £ 0 | 0 | 0.00 KM |
| Southcote Parade | £ 0 | 0 | 0.00 KM |
| Park Crescent | £ 375,000 | 0 | 0.00 KM |
| Park Grove | £ 350,000 | 0 | 0.00 KM |
Nearby Transport
| Name | NLC | TLC | Distance |
|---|---|---|---|
| Reading West | 3160 | RDW | 2.59 KM |
| Tilehurst | 3154 | TLH | 3.85 KM |
| Reading | 3149 | RDG | 4.56 KM |
| Theale | 3153 | THE | 7.27 KM |
| Mortimer | 5501 | MOR | 8.39 KM |
Nearby Listings
| Address | Price | Type | Score | Distance |
|---|---|---|---|---|
| Virginia Way, Reading, RG30 | £ 375,000 | BUY | 6 / 10 | 0.00 KM |
| Virginia Way, Reading, RG30 | £ 125,000 | BUY | 5 / 10 | 0.00 KM |
| Virginia Way, Reading | £ 375,000 | BUY | 7 / 10 | 0.04 KM |
| Gainsborough Road, Reading, Berkshire, RG30 | £ 325,000 | BUY | 6 / 10 | 0.10 KM |
| Southcote Lane, Reading, Berkshire, RG30 | £ 400,000 | BUY | 6 / 10 | 0.17 KM |
Nearby Properties
| Address | Price | Distance |
|---|---|---|
| 10 Virginia Way | £ 154,000 | 0.04 KM |
| 2 Virginia Way | £ 316,500 | 0.04 KM |
| 18 Virginia Way | £ 305,000 | 0.04 KM |
| 16 Virginia Way | £ 155,000 | 0.04 KM |
| 28 Virginia Way | £ 217,000 | 0.04 KM |