Lower Queens Road, Ashford, Kent, TN24
By Miles & Barr
£ 450,000
Reviews
3 out of 5 stars
Miles & Barr says ..
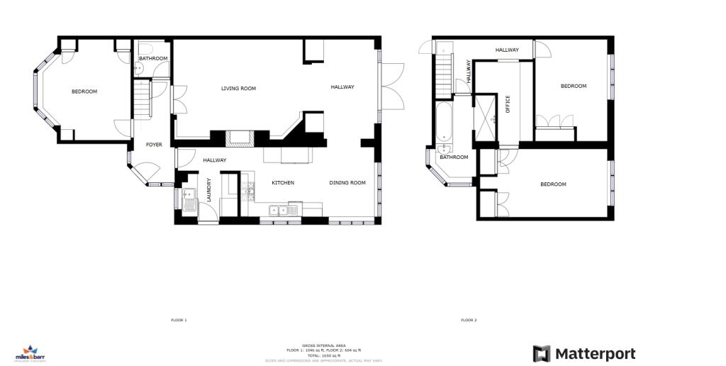
This spacious four-bedroom semi-detached house is in a popular tree lined street, close to the town centre and within easy walking distance of the mainline station. The size and versatility of the accommodation means this property will suit a variety of buyers with a plethora of different ne...
Property Oracle says ..
The property is located in Lower Queens Road, Ashford, Kent. It is a semi-detached house with four bedrooms and one bathroom. The location is convenient, with Ashford International train station nearby and several well-regarded schools within walking distance. The property shows signs of wear and tear but is in reasonable condition. The garden is a significant asset. The list price seems high compared to the area average, but the location and garden may justify the premium. More information on the square footage is needed for a complete assessment.
Therefore, we give this property 6 / 10. *Disclaimer: This is our option and does constitute a recommendation or financial advice. Do your own research. *
- Price
- 5
- Condition
- 6
- Location
- 8
- Land
- 7
- Bedrooms
- 4
- Bathrooms
- 1
The heatmap indicates the level of crime in the area. The color of the heatmap indicates the crime severity and recency.
Metrics Year-on-Year
- Average area value
- 257,097.00 £Decreased by 8.25 %
- Average area rental value
- 956.00 £/moIncreased by 1.92 %
- Est rental Yield
- 4.46 %Increased by 10.95 %
- Crime Rate
- 5.00 %Unchanged by 0.00 %
Agent Activity
Miles & Barr created the listing.
Nearby Schools
| Name | Type | Ofsted | Distance |
|---|---|---|---|
| Ashford School | Other Independent School | 0.39 KM | |
| Victoria Road Primary School | Community School | Good | 1.07 KM |
| St Teresa'S Catholic Primary School | Academy Converter | Good | 1.17 KM |
| Ashford, St Mary'S Church Of England Primary School | Voluntary Aided School | Good | 1.24 KM |
| Highworth Grammar School | Academy Converter | Outstanding | 1.34 KM |
Images
Nearby Streets
| Name | Average Price | Average Sqft | Distance |
|---|---|---|---|
| North Street | £ 275,000 | 0 | 0.00 KM |
| Edinburgh Road | £ 0 | 0 | 0.00 KM |
| Woodlea | £ 0 | 0 | 0.00 KM |
| Middle Row | £ 0 | 0 | 0.00 KM |
| M20 | £ 0 | 0 | 0.00 KM |
Nearby Transport
| Name | NLC | TLC | Distance |
|---|---|---|---|
| Ashford International | 5004 | AFK | 0.94 KM |
| Wye | 5031 | WYE | 6.94 KM |
| Ham Street | 5037 | HMT | 9.63 KM |
Nearby Listings
| Address | Price | Type | Score | Distance |
|---|---|---|---|---|
| Lower Queens Road, Ashford, Ashford, TN24 | £ 210,000 | BUY | 6 / 10 | 0.02 KM |
| Lower Queens Road, Ashford TN24 8HE | £ 450,000 | BUY | 6 / 10 | 0.05 KM |
| Ashford TN24 | £ 450,000 | BUY | 7 / 10 | 0.07 KM |
| Lower Queens Road, Ashford, Kent, TN24 | £ 350,000 | BUY | 6 / 10 | 0.08 KM |
| Wellesley Road, Ashford | £ 450,000 | BUY | 7 / 10 | 0.14 KM |
Nearby Properties
| Address | Price | Distance |
|---|---|---|
| 141 Lower Queens Road | £ 245,000 | 0.04 KM |
| 99 Lower Queens Road | £ 388,500 | 0.04 KM |
| 105 Lower Queens Road | £ 270,000 | 0.04 KM |
| 127 Lower Queens Road | £ 293,000 | 0.04 KM |
| 101 Lower Queens Road | £ 385,000 | 0.04 KM |