Rhoslan, Tredegar, Blaenau Gwent, NP22
By British Homesellers
£ 175,000
Reviews
3 out of 5 stars
British Homesellers says ..
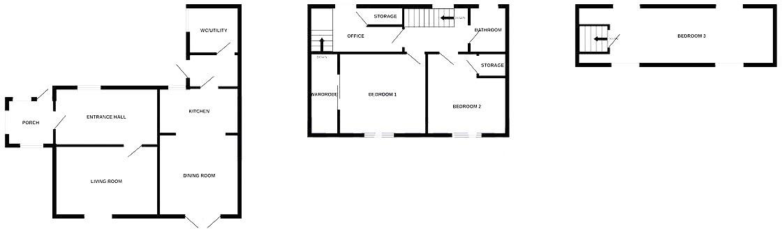
Spacious Three-Bedroom Semi with Generous Gardens and Ample Parking Set on an impressive plot in a well-established residential area, this spacious semi-detached home offers versatile accommodation across three floors, making it an ideal choice for growing families or those seeking ext...
Property Oracle says ..
This semi-detached property in Rhoslan, Tredegar, offers three bedrooms and two bathrooms, with a spacious 1,111 sqft of living space. While the property could benefit from some modernization, it presents a solid opportunity for buyers looking for a family home with a garden. The location is reasonably convenient, with schools nearby, although transportation links are not immediately accessible. The price appears competitive compared to other properties in the area.
Therefore, we give this property 6 / 10. *Disclaimer: This is our option and does constitute a recommendation or financial advice. Do your own research. *
- Price
- 7
- Condition
- 5
- Location
- 6
- Land
- 7
- Bedrooms
- 3
- Bathrooms
- 2
- Sqft (est)
- 1,111.00
The heatmap indicates the level of crime in the area. The color of the heatmap indicates the crime severity and recency.
Metrics Year-on-Year
- Average area value
- 300,000.00 £Decreased by 22.28 %
- Est sale value
- 469,953.00 £Decreased by 3.86 %
- Average area rental value
- 1,073.00 £/moDecreased by 13.47 %
- Est letting value
- 1,111.00 £/moUnchanged by 0.00 %
- Est rental Yield
- 4.29 %Increased by 11.43 %
- Crime Rate
- 0.00 %
Agent Activity
British Homesellers created the listing.
Nearby Schools
| Name | Type | Ofsted | Distance |
|---|---|---|---|
| Glanhowy Primary School | Welsh Establishment | 1.12 KM | |
| Deighton Primary School | Welsh Establishment | 1.37 KM | |
| All Saints R.C. Primary School | Welsh Establishment | 1.84 KM | |
| Georgetown C.P. School | Welsh Establishment | 2.05 KM | |
| Tredegar Comprehensive School | Welsh Establishment | 2.19 KM |
Images
Nearby Streets
| Name | Average Price | Average Sqft | Distance |
|---|---|---|---|
| Colbourne Close | £ 135,000 | 0 | 0.00 KM |
| Graig-Y-Nos | £ 80,000 | 0 | 0.00 KM |
| Ebenezer Street | £ 0 | 0 | 0.00 KM |
| St. Georges Court | £ 65,000 | 0 | 0.00 KM |
| Shaw Close | £ 160,000 | 0 | 0.00 KM |
Nearby Transport
| Name | NLC | TLC | Distance |
|---|---|---|---|
| Ebbw Vale Town | 3628 | EBB | 3.94 KM |
| Ebbw Vale Parkway | 9915 | EBV | 5.51 KM |
| Pontlottyn | 4023 | PLT | 6.29 KM |
| Rhymney | 4027 | RHY | 6.45 KM |
| Tir-Phil | 4025 | TIR | 7.20 KM |
Nearby Listings
| Address | Price | Type | Score | Distance |
|---|---|---|---|---|
| Rhoslan, Tredegar, Blaenau Gwent, NP22 | £ 175,000 | BUY | 6 / 10 | 0.00 KM |
| Rhoslan, Tredegar, NP22 | £ 190,000 | BUY | 6 / 10 | 0.05 KM |
| Rhoslan, Tredegar | £ 180,000 | BUY | 7 / 10 | 0.07 KM |
| Beaufort Road,Tredegar,NP22 4NY | £ 130,000 | BUY | 6 / 10 | 0.13 KM |
| Beaufort Road, Tredegar, NP22 4NY | £ 125,000 | BUY | 6 / 10 | 0.13 KM |
Nearby Properties
| Address | Price | Distance |
|---|---|---|
| 53 Rhoslan | £ 59,950 | 0.04 KM |
| 35 Rhoslan | £ 112,000 | 0.04 KM |
| 55 Rhoslan | £ 50,000 | 0.04 KM |
| 9 Rhoslan | £ 35,000 | 0.10 KM |
| 19 Rhoslan | £ 50,000 | 0.11 KM |