Dorset Avenue, Wigston
BA

Dorset Avenue, Wigston

By Barkers

£ 325,000

Reviews

3 out of 5 stars

Barkers says ..

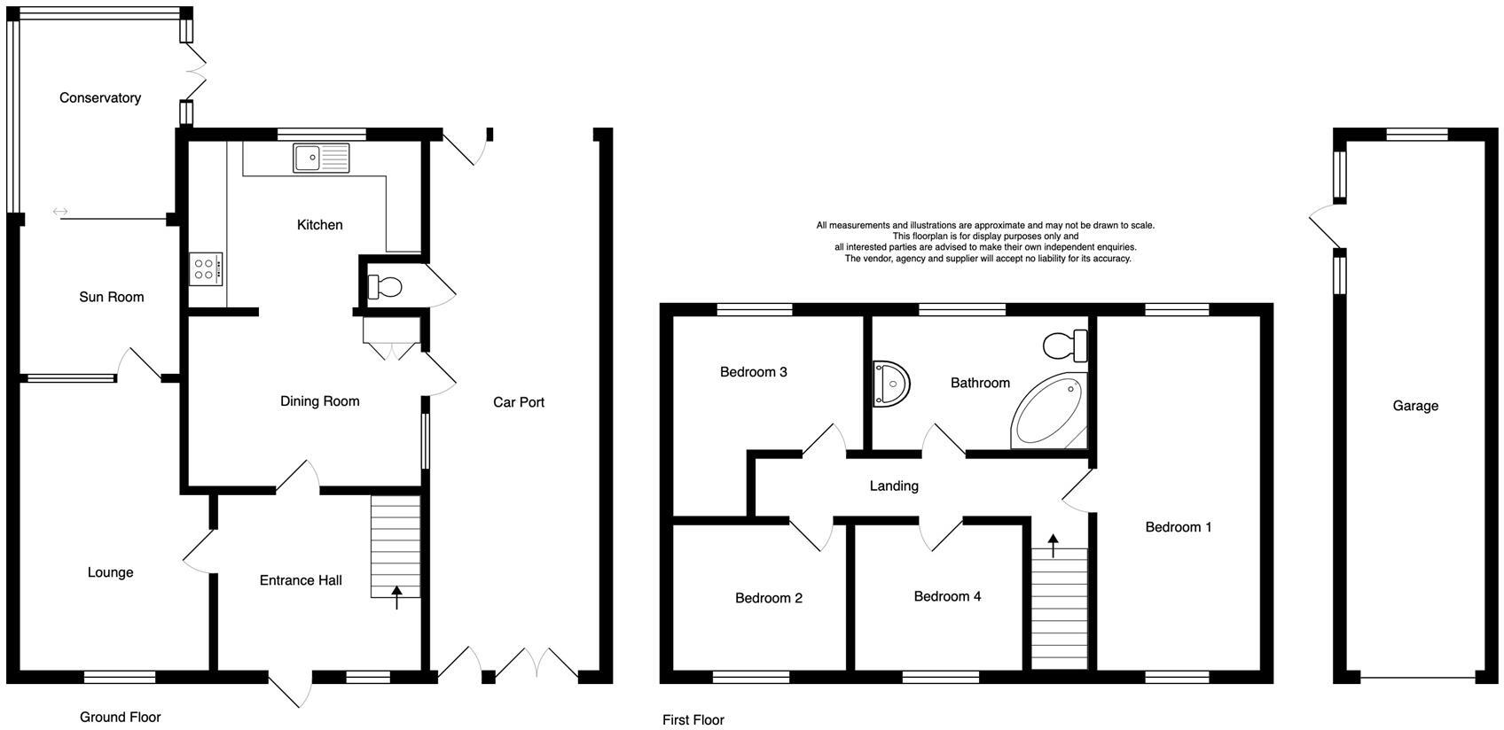
Barkers are delighted to offer for sale this spacious and EXTENDED FOUR BEDROOM semi detached family home in need of modernisation, situated on a sought after road in WIGSTON. The accommodation briefly comprises entrance hall, lounge, sun room, conservatory and kitchen diner to the groun...

Property Oracle says ..

The property at Dorset Avenue, Wigston, is a 4-bedroom semi-detached house offering substantial living space and a large garden. While the location is advantageous due to its proximity to schools and transportation, the property requires considerable renovation to bring it up to modern standards. The asking price reflects the need for these improvements. The property offers a good opportunity for buyers looking to add value through renovation.

Therefore, we give this property 6 / 10. *Disclaimer: This is our option and does constitute a recommendation or financial advice. Do your own research. *

Price
6
Condition
4
Location
7
Land
7
Bedrooms
4
Bathrooms
1
Sqft (est)
1,390.00

The heatmap indicates the level of crime in the area. The color of the heatmap indicates the crime severity and recency.

Metrics Year-on-Year

Average area value
228,564.00 £
Decreased by 6.02 %
from 243,213.00 £
Est sale value
405,880.00 £
Increased by 14.51 %
from 354,450.00 £
Average area rental value
990.00 £/mo
Increased by 9.03 %
from 908.00 £/mo
Est letting value
1,390.00 £/mo
from 0.00 £/mo
Est rental Yield
5.20 %
Increased by 16.07 %
from 4.48 %
Crime Rate
1.00 %
Unchanged by 0.00 %
from 1.00 %

Agent Activity

  • Barkers created the listing.

Nearby Schools

NameTypeOfstedDistance
Tudor Grange Samworth Academy, A Church Of England SchoolAcademy Sponsor LedSerious Weaknesses0.61 KM
Holy Cross Catholic School, A Voluntary AcademyAcademy Converter0.66 KM
Fairfield Community Primary SchoolAcademy ConverterGood0.94 KM
South Wigston High SchoolAcademy ConverterRequires improvement1.06 KM
Eyres Monsell And Gilmorton Sure Start Children'S CentreChildren's Centre Linked Site1.09 KM

Images

DINING AREA P1504955-HDR.jpg CAR PORT GARAGE Image.59.jpg BEDROOM TWO P1504800-HDR.jpg HALLWAY CONSERVATORY BEDROOM THREE OTHER ASPECT P1504995-HDR.jpg LOUNGE OUTSIDE BEDROOM ONE SUN ROOM OPEN PLAN KITCHEN AREA P1504930-HDR.jpg LANDING P1504925-HDR.jpg P1504840-HDR.jpg BEDROOM FOUR P1504850-HDR.jpg SHOWER ROOM FREE VALUATION GENERAL REMARKS Image.60.jpg

Nearby Streets

NameAverage PriceAverage SqftDistance
Northumberland Road £ 000.00 KM
Ivanhoe Road £ 395,00000.00 KM
Wright Place £ 250,00000.00 KM
Southfields Walk £ 000.00 KM
Windsor Avenue £ 279,95000.00 KM

Nearby Transport

NameNLCTLCDistance
South Wigston1949SWS0.84 KM
Leicester1947LEI4.95 KM
Narborough1881NBR7.50 KM

Nearby Listings

AddressPriceTypeScoreDistance
Dorset Avenue, Wigston £ 325,000BUY6 / 100.00 KM
Dorset Avenue, Wigston £ 295,000BUY5 / 100.11 KM
Northumberland Road, Wigston £ 350,000BUYUnknown0.13 KM
Northumberland Road, Wigston £ 290,000BUY7 / 100.13 KM
Northumberland Road, Wigston £ 300,000BUYUnknown0.13 KM

Nearby Properties

AddressPriceDistance
31 Dorset Avenue £ 154,9500.11 KM
11 Dorset Avenue £ 278,0000.11 KM
25 Dorset Avenue £ 167,0000.11 KM
32 Dorset Avenue £ 225,0000.12 KM
13 Dorset Avenue £ 230,0000.12 KM