Caleta Close, Caversham, Reading
Nicholas Estate Agents logo

Caleta Close, Caversham, Reading

By Nicholas Estate Agents

£ 400,000

Reviews

3 out of 5 stars

Nicholas Estate Agents says ..

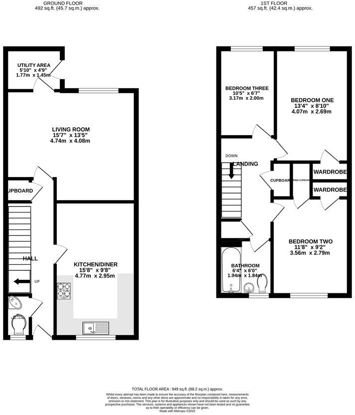
Set within this quiet Cul-De-Sac is this well presented mid terraced house that offers easy access to central Caversham and Reading mainline station with its fast links to London. The property boasts three double bedrooms and a modern bathroom on the first floor. On the ground floor there is a go...

Property Oracle says ..

This is a three-bedroom terraced house in Caversham, Reading. The property is in generally good condition, with a modern kitchen and bathroom. The property benefits from a garden. The property is well-located, with good access to local amenities, schools, and transportation links. The property is listed at £400,000, which is slightly below the average price for the area. The property would be ideal for a small family or first-time buyer.

Therefore, we give this property 6 / 10. *Disclaimer: This is our option and does constitute a recommendation or financial advice. Do your own research. *

Price
7
Condition
7
Location
7
Land
6
Bedrooms
0
Bathrooms
0
Sqft (est)
773.00

The heatmap indicates the level of crime in the area. The color of the heatmap indicates the crime severity and recency.

Metrics Year-on-Year

Average area value
436,875.00 £
Increased by 21.02 %
from 360,999.00 £
Est sale value
399,641.00 £
Increased by 14.13 %
from 350,169.00 £
Average area rental value
1,527.00 £/mo
Decreased by 4.62 %
from 1,601.00 £/mo
Est letting value
773.00 £/mo
Decreased by 50.00 %
from 1,546.00 £/mo
Est rental Yield
4.19 %
Decreased by 21.24 %
from 5.32 %
Crime Rate
6.00 %
Unchanged by 0.00 %
from 6.00 %

Agent Activity

  • Nicholas Estate Agents created the listing.

Nearby Schools

NameTypeOfstedDistance
Caversham Nursery SchoolLocal Authority Nursery SchoolOutstanding0.28 KM
Caversham Children'S CentreChildren's Centre0.28 KM
New Bridge Nursery SchoolLocal Authority Nursery SchoolOutstanding0.52 KM
Micklands Primary SchoolCommunity SchoolGood0.88 KM
St Anne'S Catholic Primary SchoolVoluntary Aided SchoolGood1.06 KM

Images

1335137-20-68a4642eb8724.jpg 1335137-12-68a462e172565.jpg 1335137-17-68a463b4c087d.jpg 1335137-18-68a4641e28841.jpg Kitchen/diner 1335137-11-68a462a91b774.jpg 1335137-14-68a4631c5ce99.jpg 1335137-15-68a46331681ee.jpg Living room WC Landing Bathroom Bedroom two 1335137-4-68a46220473ee.jpg 1335137-5-68a46240e877e.jpg Bedroom three Bedroom one 1335137-8-68a4627a05d9d.jpg 1335137-9-68a462834dddb.jpg Garden

Nearby Streets

NameAverage PriceAverage SqftDistance
Peel Close £ 000.00 KM
The Causeway £ 250,00000.00 KM
Tilbury Close £ 000.00 KM
St John's Road £ 000.00 KM
Copse End £ 000.00 KM

Nearby Transport

NameNLCTLCDistance
Reading3149RDG1.98 KM
Reading West3160RDW3.98 KM
Earley5694EAR5.17 KM
Winnersh Triangle5698WTI7.97 KM
Tilehurst3154TLH8.14 KM

Nearby Listings

AddressPriceTypeScoreDistance
Caleta Close, Caversham, Reading £ 400,000BUY6 / 100.00 KM
Clonmel Close, Caversham, Reading £ 450,000BUY5 / 100.07 KM
Peel Close, Caversham £ 400,000BUYUnknown0.08 KM
Peel Close, Caversham, Reading £ 460,000BUY7 / 100.08 KM
Douglas Road, Caversham, Reading, Berkshire, RG4 £ 435,000BUYUnknown0.08 KM

Nearby Properties

AddressPriceDistance
9 Caleta Close £ 352,5000.01 KM
2 Caleta Close £ 250,0000.01 KM
1 Caleta Close £ 148,0000.01 KM
5 Caleta Close £ 340,0000.01 KM
7 Caleta Close £ 300,0000.01 KM