Bishop Street, Shrewsbury
By Cooper Green Pooks
£ 465,000
Reviews
3 out of 5 stars
Cooper Green Pooks says ..
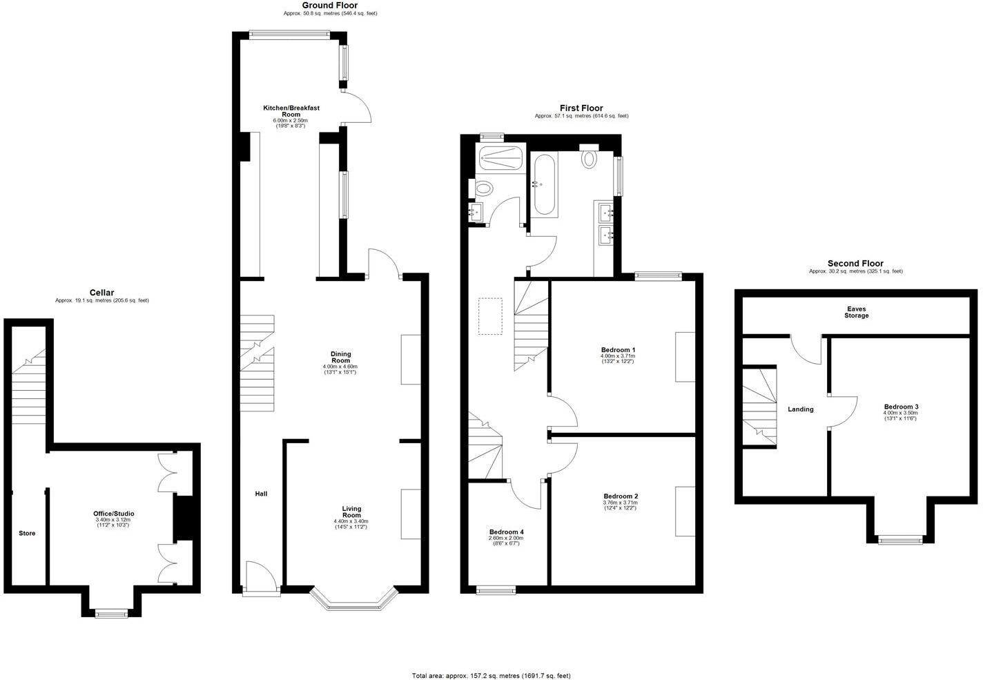
This impressive and substantial family house has been significantly improved and individually designed to provide very well-proportioned and beautifully presented accommodation over four floors, finished to a high standard, while being situated within a sought-after residential area, less than a ...
Property Oracle says ..
The property is a 4 bedroom, 2 bathroom semi-detached house located on Bishop Street, Shrewsbury, Shropshire. It has a plot size of 1,692.09 sqft and is listed at £465,000. The average house price in the area is £340,786, with an average price per sqft of £380. This property is larger than average at 1,238.22 sqft. The property appears to be in excellent condition, having undergone a recent and tasteful modernisation. The images show a contemporary interior with updated kitchen and bathrooms. There is evidence of a well-maintained garden. The location is within reasonable proximity to several schools, including Crowmoor Primary School and Shrewsbury Cathedral Catholic Primary School, both rated \‘Good\’ by Ofsted. Shrewsbury train station is also relatively close by, providing convenient access to transport links. Given the property’s size, condition, location, and the inclusion of a garden, the list price of £465,000 seems reasonable, although slightly above the average price for the area. However, the superior condition and modernisations likely justify the higher price per sqft compared to the area average. The property benefits from a desirable location and features that are likely to appeal to a wide range of buyers.
Therefore, we give this property 7 / 10. *Disclaimer: This is our option and does constitute a recommendation or financial advice. Do your own research. *
- Price
- 7
- Condition
- 9
- Location
- 8
- Land
- 7
- Bedrooms
- 4
- Bathrooms
- 2
- Sqft (est)
- 1,238.22
- Lot (est)
- 1,692.09
The heatmap indicates the level of crime in the area. The color of the heatmap indicates the crime severity and recency.
Metrics Year-on-Year
- Average area value
- 350,323.00 £Decreased by 1.18 %
- Est sale value
- 533,672.82 £Increased by 20.73 %
- Average area rental value
- 1,334.00 £/moDecreased by 2.49 %
- Est letting value
- 1,238.22 £/moUnchanged by 0.00 %
- Est rental Yield
- 4.57 %Decreased by 1.30 %
- Crime Rate
- 2.00 %Unchanged by 0.00 %
Agent Activity
Cooper Green Pooks marked this listing as sold.
Cooper Green Pooks created the listing.
Nearby Schools
| Name | Type | Ofsted | Distance |
|---|---|---|---|
| Shrewsbury (S) Early Help Family Hub | Children's Centre | 0.99 KM | |
| Crowmoor Primary School And Nursery | Foundation School | Good | 1.08 KM |
| Prestfelde School | Other Independent School | 1.18 KM | |
| Shrewsbury Cathedral Catholic Primary School And Nursery | Voluntary Aided School | Good | 1.21 KM |
| The Martin Wilson School | Foundation School | Good | 1.24 KM |
Images
Nearby Streets
| Name | Average Price | Average Sqft | Distance |
|---|---|---|---|
| Newhall Gardens | £ 0 | 0 | 0.00 KM |
| Mill Road | £ 0 | 0 | 0.00 KM |
| Cold Bath Court | £ 0 | 0 | 0.00 KM |
| Haycock Way | £ 0 | 0 | 0.00 KM |
| Talisman Drive | £ 0 | 0 | 0.00 KM |
Nearby Transport
| Name | NLC | TLC | Distance |
|---|---|---|---|
| Shrewsbury | 4387 | SHR | 1.52 KM |
Nearby Listings
| Address | Price | Type | Score | Distance |
|---|---|---|---|---|
| Bishop Street, Shrewsbury | £ 465,000 | BUY | 7 / 10 | 0.00 KM |
| Bishop Street, Cherry Orchard, Shrewsbury | £ 425,000 | BUY | 7 / 10 | 0.05 KM |
| Bishop Street, Cherry Orchard, Shrewsbury | £ 395,000 | BUY | Unknown | 0.06 KM |
| 85 Bishop Street, Shrewsbury, SY2 5EZ | £ 369,995 | BUY | 6 / 10 | 0.06 KM |
| Canon Street, Cherry Orchard, Shrewsbury | £ 340,000 | BUY | 6 / 10 | 0.07 KM |
Nearby Properties
| Address | Price | Distance |
|---|---|---|
| 7 Bishop Street | £ 227,750 | 0.02 KM |
| 3 Bishop Street | £ 174,000 | 0.03 KM |
| 12 Bishop Street | £ 273,300 | 0.03 KM |
| 8 Bishop Street | £ 330,000 | 0.03 KM |
| 10 Bishop Street | £ 110,000 | 0.03 KM |