CH
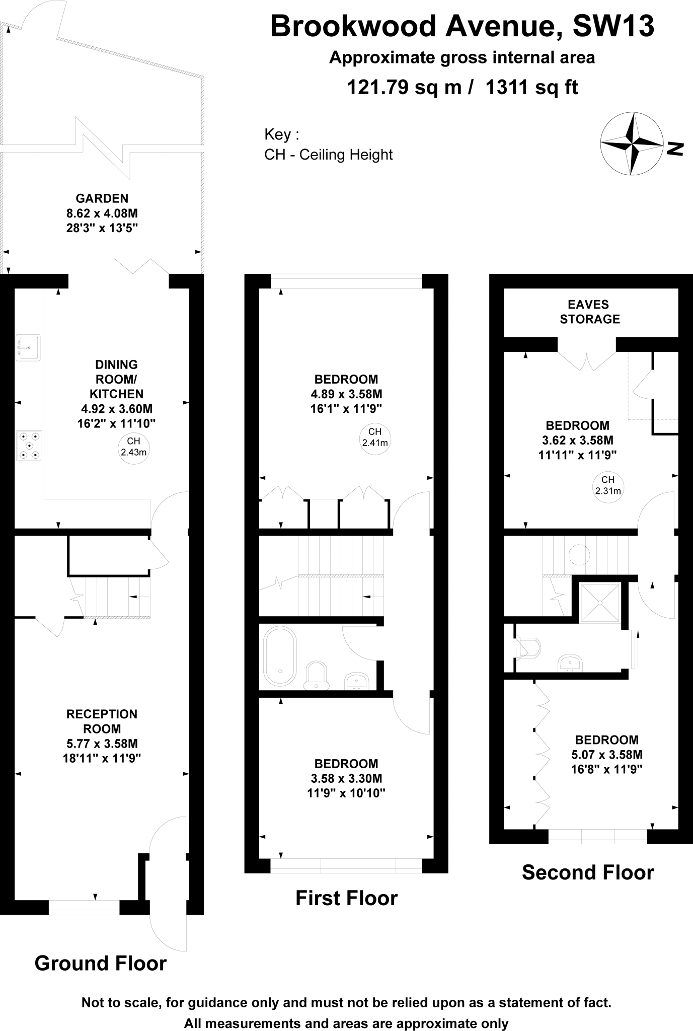
Brookwood Avenue, Barnes, SW13
By Chestertons Estate Agents
£ 1,250,000
Chestertons Estate Agents says ..
This spacious and superbly refurbished townhouse is located in the heart of Barnes village and boasts four bedrooms, a west-facing garden, off-street parking and a beautiful interior.
- Bedrooms
- 4
- Bathrooms
- 2
The heatmap indicates the level of crime in the area. The color of the heatmap indicates the crime severity and recency.
Metrics Year-on-Year
- Average area value
- 754,167.00 £Decreased by 18.85 %
- Average area rental value
- 3,542.00 £/moIncreased by 18.22 %
- Est rental Yield
- 5.64 %Increased by 45.74 %
- Crime Rate
- 6.00 %Unchanged by 0.00 %
from 929,312.00 £
from 2,996.00 £/mo
from 3.87 %
from 6.00 %
Agent Activity
Chestertons Estate Agents created the listing.
Nearby Schools
| Name | Type | Ofsted | Distance |
|---|---|---|---|
| Barnes Primary School | Community School | Outstanding | 0.38 KM |
| St Osmund'S Catholic Primary School | Voluntary Aided School | Good | 0.54 KM |
| Paddock School | Community Special School | Outstanding | 0.73 KM |
| Roehampton Gate School | Other Independent Special School | Good | 0.91 KM |
| Roehampton Hospital School | Other Independent School | 0.93 KM |
Images
Nearby Streets
| Name | Average Price | Average Sqft | Distance |
|---|---|---|---|
| Brook Gardens | £ 0 | 0 | 0.00 KM |
| St John's Grove | £ 0 | 0 | 0.00 KM |
| Glebe Road | £ 2,175,000 | 0 | 0.00 KM |
| Small Profits Dock | £ 0 | 0 | 0.00 KM |
| Buxton Road | £ 0 | 0 | 0.00 KM |
Nearby Transport
| Name | NLC | TLC | Distance |
|---|---|---|---|
| Barnes Bridge | 5580 | BNI | 0.60 KM |
| Barnes | 5551 | BNS | 0.69 KM |
| Mortlake | 5600 | MTL | 2.16 KM |
| Chiswick | 5583 | CHK | 2.56 KM |
| Putney | 5603 | PUT | 3.58 KM |
Nearby Listings
| Address | Price | Type | Score | Distance |
|---|---|---|---|---|
| Brookwood Avenue, Barnes, SW13 | £ 1,250,000 | BUY | Unknown | 0.00 KM |
| Sheridan Place, Barnes, London, SW13 | £ 545,000 | BUY | 7 / 10 | 0.06 KM |
| Sheridan Place | £ 535,000 | BUY | 5 / 10 | 0.06 KM |
| Sheridan Place, Barnes, London, SW13 | £ 425,000 | BUY | Unknown | 0.06 KM |
| Brook Gardens, Barnes, London, SW13 | £ 2,950,000 | BUY | Unknown | 0.10 KM |
Nearby Properties
| Address | Price | Distance |
|---|---|---|
| 103 Brookwood Avenue | £ 570,000 | 0.04 KM |
| 50 Brookwood Avenue | £ 1,105,000 | 0.04 KM |
| 58 Brookwood Avenue | £ 845,140 | 0.04 KM |
| 115 Brookwood Avenue | £ 1,175,000 | 0.04 KM |
| 52 Brookwood Avenue | £ 875,000 | 0.04 KM |