Rowan Way, Newcastle upon Tyne, NE5
By YOUR MOVE Chris Stonock
£ 155,000
Reviews
3 out of 5 stars
YOUR MOVE Chris Stonock says ..
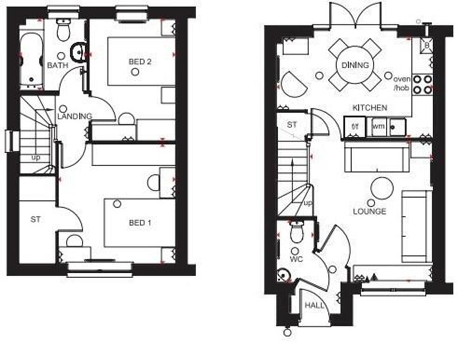
Immaculately presented 2 bedroom mid-terrace home.
Property Oracle says ..
This two-bedroom terraced house in Blakelaw, Newcastle upon Tyne is listed at £155,000. The property appears to be in good condition, and the images show a modern interior. The property benefits from a small, enclosed rear garden. The location is close to several primary schools, including Thomas Walling Primary Academy (rated Good by Ofsted) and Hilton Primary Academy (rated Outstanding). Transport links are also within reasonable distance, with several train stations within approximately 4-7km. However, the average house price in the area is significantly higher (£461,500), and the average price per square foot is also higher (£423) than what this property is listed at. This suggests that the property may be underpriced, but further investigation into the specific reasons for the lower price is needed. The lack of plot size information in the listing could suggest a smaller than average garden.
Therefore, we give this property 6 / 10. *Disclaimer: This is our option and does constitute a recommendation or financial advice. Do your own research. *
- Price
- 6
- Condition
- 9
- Location
- 7
- Land
- 4
- Bedrooms
- 2
- Bathrooms
- 1
- Sqft (est)
- 682.88
The heatmap indicates the level of crime in the area. The color of the heatmap indicates the crime severity and recency.
Metrics Year-on-Year
- Average area value
- 116,271.00 £Decreased by 21.47 %
- Est sale value
- 135,893.12 £Increased by 21.34 %
- Average area rental value
- 1,143.00 £/moIncreased by 19.69 %
- Est letting value
- 682.88 £/moUnchanged by 0.00 %
- Est rental Yield
- 11.80 %Increased by 52.45 %
- Crime Rate
- 7.00 %Unchanged by 0.00 %
Agent Activity
YOUR MOVE Chris Stonock created the listing.
Nearby Schools
| Name | Type | Ofsted | Distance |
|---|---|---|---|
| Thomas Walling Primary Academy | Academy Converter | Good | 0.60 KM |
| Sure Start Central Children'S Centre | Children's Centre | 0.76 KM | |
| English Martyrs' Catholic Primary School, Fenham | Academy Converter | 0.94 KM | |
| Sure Start North Fenham Children'S Centre | Children's Centre Linked Site | 1.01 KM | |
| Hilton Primary Academy | Academy Sponsor Led | Outstanding | 1.02 KM |
Images
Nearby Streets
| Name | Average Price | Average Sqft | Distance |
|---|---|---|---|
| Blackthorn Close | £ 0 | 0 | 0.00 KM |
| Elder Grive | £ 172,000 | 0 | 0.00 KM |
| Arden Crescent | £ 0 | 0 | 0.00 KM |
| Eastern Way | £ 0 | 0 | 0.00 KM |
| Moor Lane | £ 0 | 0 | 0.00 KM |
Nearby Transport
| Name | NLC | TLC | Distance |
|---|---|---|---|
| Metrocentre | 7725 | MCE | 4.19 KM |
| Dunston | 7744 | DOT | 5.85 KM |
| Blaydon | 7503 | BLO | 6.06 KM |
| Newcastle | 7728 | NCL | 6.33 KM |
| Manors | 7603 | MAS | 7.38 KM |
Nearby Listings
| Address | Price | Type | Score | Distance |
|---|---|---|---|---|
| Rowan Way, Newcastle upon Tyne, NE5 | £ 155,000 | BUY | 6 / 10 | 0.00 KM |
| Foxglove Walk, City Edge, Newcastle Upon Tyne | £ 230,000 | BUY | 7 / 10 | 0.07 KM |
| Foxglove Walk, City Edge, Newcastle Upon Tyne | £ 105,000 | BUY | 6 / 10 | 0.07 KM |
| Brockwell House, Blakelaw | £ 55,000 | BUY | 4 / 10 | 0.09 KM |
| Magnolia Drive, Newcastle Upon Tyne | £ 72,500 | BUY | Unknown | 0.10 KM |
Nearby Properties
| Address | Price | Distance |
|---|---|---|
| 165 Magnolia Drive | £ 164,995 | 0.10 KM |
| 161 Magnolia Drive | £ 129,495 | 0.10 KM |
| 29 Sunnyway | £ 99,000 | 0.19 KM |
| 48 Sunnyway | £ 120,000 | 0.19 KM |
| 39 Sunnyway | £ 102,500 | 0.29 KM |