Bluebell Way, Warfield, Berkshire, RG42
By Prospect Estate Agency
£ 725,000
Reviews
4 out of 5 stars
Prospect Estate Agency says ..
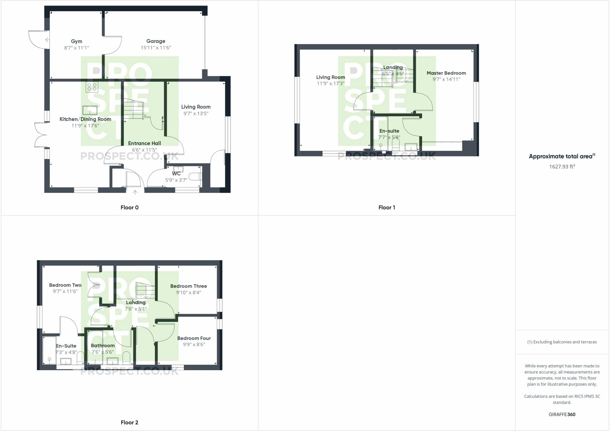
A superbly presented detached town house, located on the highly desirable Woodhurst Park development in Warfield. Thoughtfully designed and spread across three floors, this modern house with a wonderful garden is perfect for a growing family. On the ground floor you will find the 17ft ...
Property Oracle says ..
The property is located in Warfield, Berkshire, a desirable area in the South East of England. The area benefits from good schools such as Kennel Lane School (0.27km) which has a good Ofsted rating. Transport links are also convenient with Bracknell train station (2.02km) providing access to London. The property itself is a modern, well-maintained house with a good-sized garden, as shown in the provided photos. The interior looks recently renovated and in excellent condition. The list price of £725,000 seems reasonable considering the property’s size, condition, location, and amenities. However, a definitive conclusion on price requires more detailed data on local comparable sales and average price per square foot in the immediate vicinity, which is missing from the provided information.
Therefore, we give this property 8 / 10. *Disclaimer: This is our option and does constitute a recommendation or financial advice. Do your own research. *
- Price
- 7
- Condition
- 9
- Location
- 9
- Land
- 8
- Bedrooms
- 4
- Bathrooms
- 3
- Sqft (est)
- 1,487.41
- Lot (est)
- 1,627.93
The heatmap indicates the level of crime in the area. The color of the heatmap indicates the crime severity and recency.
Metrics Year-on-Year
- Average area value
- 561,863.00 £Decreased by 2.75 %
- Est sale value
- 1,002,514.34 £Increased by 15.21 %
- Average area rental value
- 3,222.00 £/moIncreased by 22.09 %
- Est letting value
- 4,462.23 £/moIncreased by 50.00 %
- Est rental Yield
- 6.88 %Increased by 25.55 %
- Crime Rate
- 1.00 %Unchanged by 0.00 %
Agent Activity
Prospect Estate Agency created the listing.
Nearby Schools
| Name | Type | Ofsted | Distance |
|---|---|---|---|
| Kennel Lane School | Community Special School | Good | 0.27 KM |
| Sandy Lane Primary School | Community School | Good | 1.26 KM |
| The Willows And Maples Children'S Centre | Children's Centre | 1.29 KM | |
| Meadow Vale Primary School | Community School | Good | 1.52 KM |
| Garth Hill College | Community School | Good | 1.64 KM |
Images
Nearby Streets
| Name | Average Price | Average Sqft | Distance |
|---|---|---|---|
| Bluebell Way | £ 0 | 0 | 0.00 KM |
| West End Lane | £ 0 | 0 | 0.00 KM |
| Ferris Green | £ 0 | 0 | 0.00 KM |
| Denning Drive | £ 0 | 0 | 0.00 KM |
| Lovejoy Road | £ 0 | 0 | 0.00 KM |
Nearby Transport
| Name | NLC | TLC | Distance |
|---|---|---|---|
| Bracknell | 5693 | BCE | 2.02 KM |
| Martins Heron | 5692 | MAO | 4.43 KM |
| Ascot (Berks) | 5666 | ACT | 9.38 KM |
| Wokingham | 5696 | WKM | 9.69 KM |
| Crowthorne | 5628 | CRN | 9.88 KM |
Nearby Listings
| Address | Price | Type | Score | Distance |
|---|---|---|---|---|
| Bluebell Way, Warfield, Berkshire, RG42 | £ 725,000 | BUY | 8 / 10 | 0.00 KM |
| Woodhurst Park, Warfield | £ 650,000 | BUY | 6 / 10 | 0.10 KM |
| Clematis Court, Warfield, RG42 | £ 350,000 | BUY | 6 / 10 | 0.14 KM |
| Clematis Court, Warfield, Bracknell | £ 365,000 | BUY | 6 / 10 | 0.14 KM |
| Clematis Court, Warfield, Bracknell | £ 275,000 | BUY | 5 / 10 | 0.14 KM |
Nearby Properties
| Address | Price | Distance |
|---|---|---|
| The Old Farmhouse | £ 760,000 | 0.20 KM |
| Stable View | £ 425,000 | 0.20 KM |
| Hillside View | £ 435,000 | 0.20 KM |
| Furrows | £ 445,000 | 0.20 KM |
| Fair View | £ 390,000 | 0.23 KM |