Redshank Place, Ettiley Heath, Sandbach, CW11
By Northwood
£ 210,000
Reviews
3 out of 5 stars
Northwood says ..
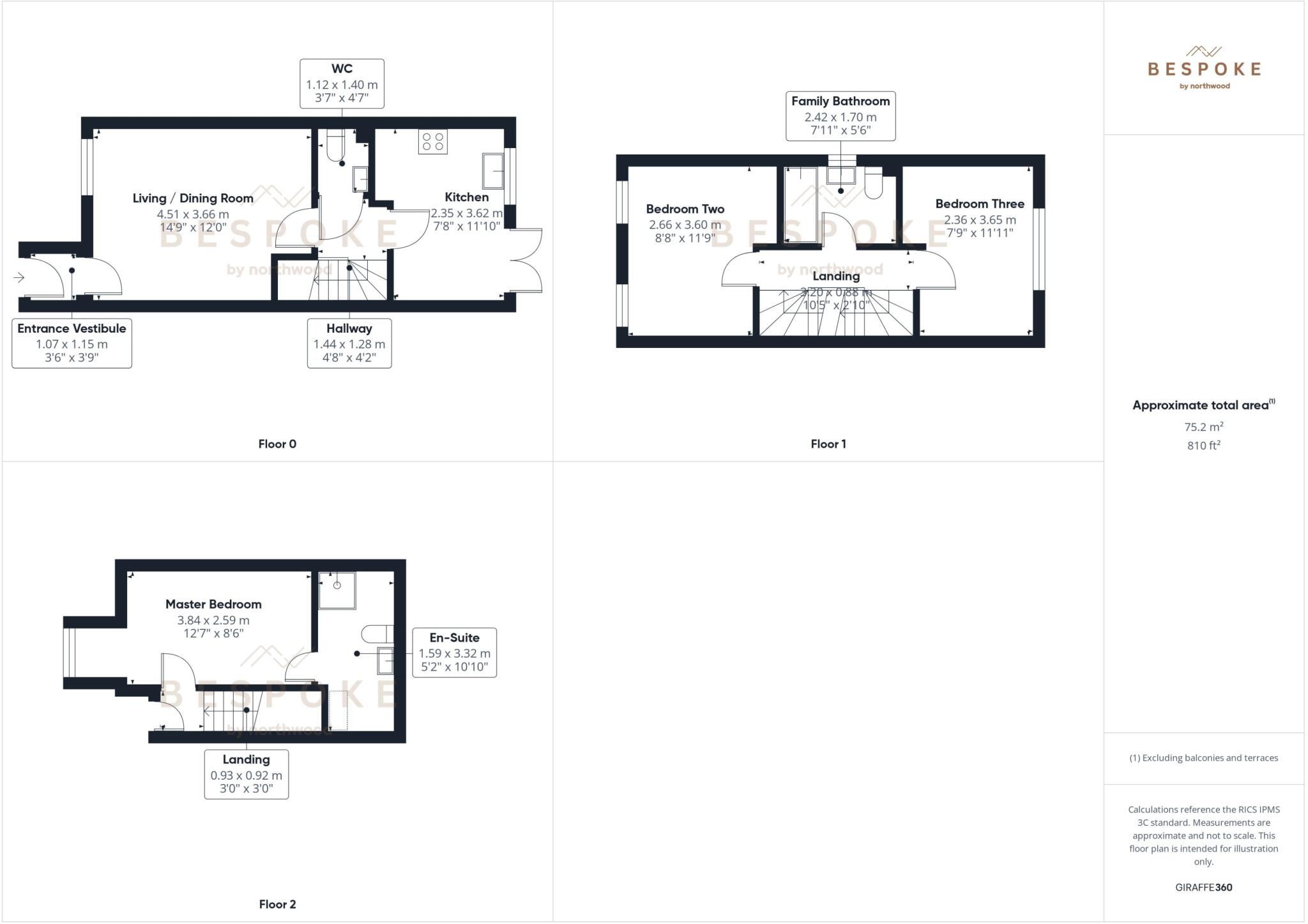
Calling all first-time buyers! Being sold with no-onward chain is this modern, semi-detached house offering over 800 Sq. Ft of accommodation spread out over three floors.
Property Oracle says ..
This is a three-bedroom semi-detached property located in Ettiley Heath, Sandbach. The property offers two bathrooms and has a square footage of approximately 809.45 sqft. It features a garden and is situated in a location with reasonable access to schools and transportation, including the Sandbach train station. The property appears to be in a generally acceptable condition, although some areas may benefit from cosmetic updates. Considering the location, condition, and features, the list price of £210,000 seems reasonable within the local market.
Therefore, we give this property 7 / 10. *Disclaimer: This is our option and does constitute a recommendation or financial advice. Do your own research. *
- Price
- 8
- Condition
- 7
- Location
- 7
- Land
- 6
- Bedrooms
- 3
- Bathrooms
- 2
- Sqft (est)
- 809.45
The heatmap indicates the level of crime in the area. The color of the heatmap indicates the crime severity and recency.
Metrics Year-on-Year
- Average area value
- 358,750.00 £Increased by 32.67 %
- Est sale value
- 180,507.35 £Decreased by 16.48 %
- Average area rental value
- 1,413.00 £/moIncreased by 43.74 %
- Est letting value
- 0.00 £/mo
- Est rental Yield
- 4.73 %Increased by 8.49 %
- Crime Rate
- 6.00 %Unchanged by 0.00 %
Agent Activity
Northwood marked this listing as sold.
Northwood created the listing.
Nearby Schools
| Name | Type | Ofsted | Distance |
|---|---|---|---|
| Elworth Cofe Primary School | Voluntary Controlled School | Good | 1.01 KM |
| Sandbach High School And Sixth Form College | Academy Converter | 2.67 KM | |
| Wheelock Primary School | Academy Converter | 2.89 KM | |
| Sandbach School | Free Schools | Good | 2.99 KM |
| Sandbach Primary Academy | Academy Converter | Good | 3.20 KM |
Images
Nearby Streets
| Name | Average Price | Average Sqft | Distance |
|---|---|---|---|
| Moss Lane | £ 0 | 0 | 0.00 KM |
| Foundry Lane | £ 0 | 0 | 0.00 KM |
| Hall Lane | £ 0 | 0 | 0.00 KM |
| Salt Line Way | £ 0 | 0 | 0.00 KM |
| Richmond Close | £ 0 | 0 | 0.00 KM |
Nearby Transport
| Name | NLC | TLC | Distance |
|---|---|---|---|
| Sandbach | 1261 | SDB | 0.73 KM |
| Crewe | 1243 | CRE | 7.30 KM |
| Holmes Chapel | 1221 | HCH | 7.90 KM |
Nearby Listings
| Address | Price | Type | Score | Distance |
|---|---|---|---|---|
| Redshank Place, Ettiley Heath, Sandbach, CW11 | £ 210,000 | BUY | 7 / 10 | 0.00 KM |
| Moss Lane, Sandbach, Cheshire, CW11 | £ 130,000 | BUY | 6 / 10 | 0.03 KM |
| Redshank Place, Sandbach | £ 250,000 | BUY | 7 / 10 | 0.04 KM |
| Apartment , Moss Lane, Sandbach | £ 140,000 | BUY | 7 / 10 | 0.06 KM |
| Redshank Place, Sandbach | £ 230,000 | BUY | 7 / 10 | 0.06 KM |
Nearby Properties
| Address | Price | Distance |
|---|---|---|
| 5 Redshank Place | £ 146,695 | 0.07 KM |
| 3 Redshank Place | £ 146,695 | 0.12 KM |
| 1 Redshank Place | £ 146,695 | 0.12 KM |
| 1 Harry Mortimer Way | £ 308,000 | 0.14 KM |
| 10 Harry Mortimer Way | £ 190,000 | 0.14 KM |