Linden Grove, New Malden
By SeOUL Residential
£ 370,000
Reviews
2 out of 5 stars
SeOUL Residential says ..
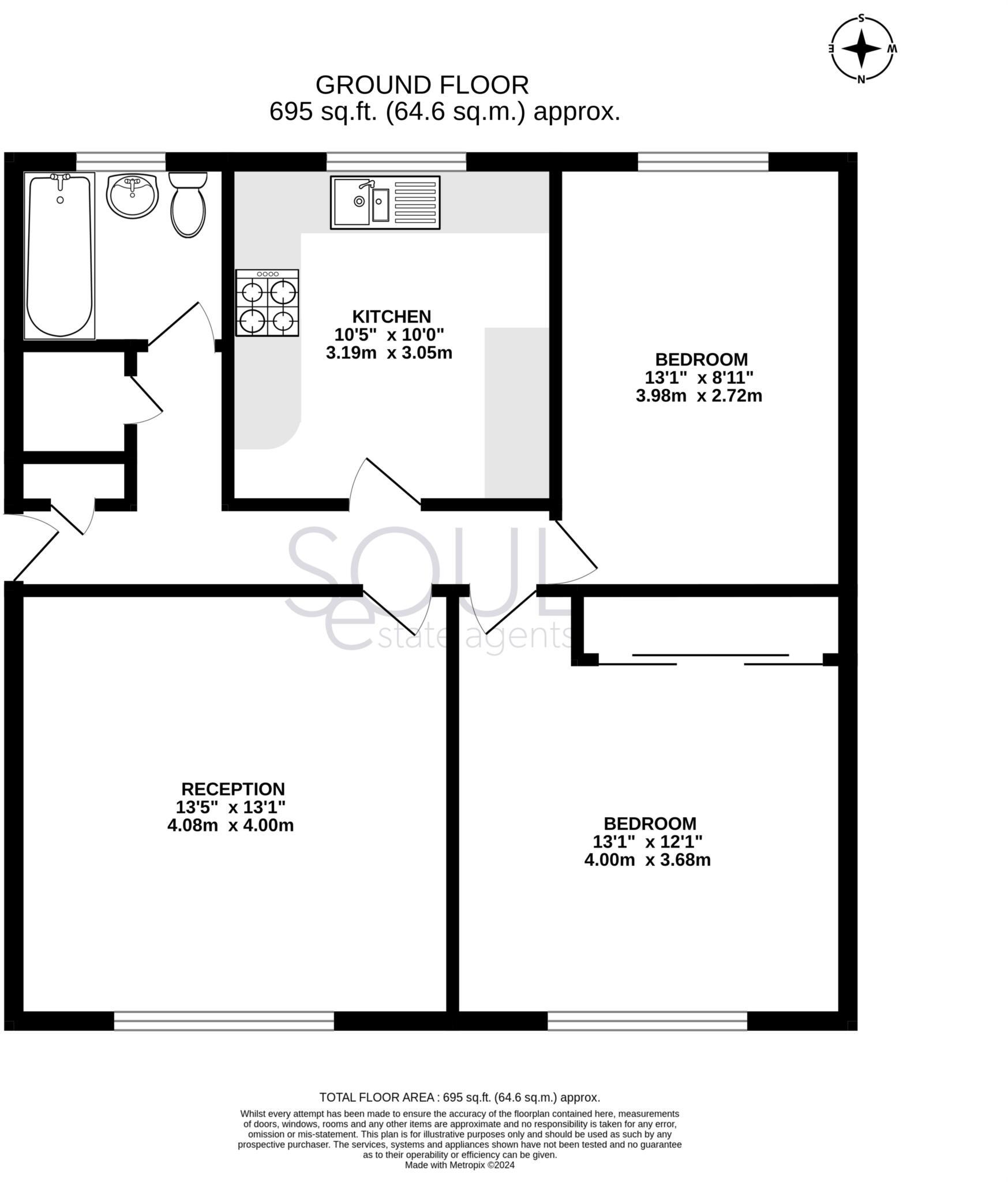
Rear opportunity to acquire this 700 sqft ground floor 2 bed flat, gated development, located at the heart of New Malden, a stone`s throw from high street & train station.
Property Oracle says ..
This is a two-bedroom flat in New Malden, Greater London. The property is located close to transport links and schools. The condition is fair, with a modern bathroom but a dated kitchen. The property has no private garden. The asking price is in line with the local market. Overall, this property presents a solid opportunity for buyers seeking a well-connected and reasonably priced home in a popular suburban location. While some modernisation may be desired, the property is move-in ready and offers convenient access to amenities and transport.
Therefore, we give this property 5 / 10. *Disclaimer: This is our option and does constitute a recommendation or financial advice. Do your own research. *
- Price
- 7
- Condition
- 6
- Location
- 7
- Land
- 3
- Bedrooms
- 2
- Bathrooms
- 1
- Sqft (est)
- 552.00
The heatmap indicates the level of crime in the area. The color of the heatmap indicates the crime severity and recency.
Metrics Year-on-Year
- Average area value
- 376,667.00 £Decreased by 11.42 %
- Est sale value
- 165,048.00 £Decreased by 27.43 %
- Average area rental value
- 1,100.00 £/moIncreased by 18.92 %
- Est letting value
- 0.00 £/mo
- Est rental Yield
- 3.50 %Increased by 34.10 %
- Crime Rate
- 8.00 %Unchanged by 0.00 %
Agent Activity
SeOUL Residential created the listing.
Nearby Schools
| Name | Type | Ofsted | Distance |
|---|---|---|---|
| The Holy Cross School | Academy Converter | 0.79 KM | |
| Christ Church New Malden Cofe Primary School | Voluntary Aided School | Good | 0.88 KM |
| Coombe Girls' School | Academy Converter | Outstanding | 0.89 KM |
| Westbury House School | Other Independent School | 0.90 KM | |
| The Study School | Other Independent School | 0.98 KM |
Images
Nearby Streets
| Name | Average Price | Average Sqft | Distance |
|---|---|---|---|
| Beeline Way | £ 605,000 | 0 | 0.00 KM |
| Burlington Road | £ 0 | 0 | 0.00 KM |
| Walton Avenue | £ 0 | 0 | 0.00 KM |
| Cavendish Road | £ 0 | 0 | 0.00 KM |
| Welbeck Close | £ 925,000 | 0 | 0.00 KM |
Nearby Transport
| Name | NLC | TLC | Distance |
|---|---|---|---|
| New Malden | 5567 | NEM | 0.25 KM |
| Malden Manor | 5599 | MAL | 2.18 KM |
| Motspur Park | 5645 | MOT | 2.29 KM |
| Berrylands | 5581 | BRS | 2.55 KM |
| Worcester Park | 5579 | WCP | 2.92 KM |
Nearby Listings
| Address | Price | Type | Score | Distance |
|---|---|---|---|---|
| Linden Grove, New Malden | £ 370,000 | BUY | 5 / 10 | 0.00 KM |
| Linden Grove, New Malden, KT3 | £ 360,000 | BUY | 5 / 10 | 0.04 KM |
| Acacia Grove, New Malden, KT3 | £ 595,000 | BUY | 6 / 10 | 0.04 KM |
| Acacia Grove, New Malden, KT3 | £ 595,000 | BUY | Unknown | 0.09 KM |
| Coombe Road, New Malden, KT3 | £ 450,000 | BUY | 7 / 10 | 0.10 KM |
Nearby Properties
| Address | Price | Distance |
|---|---|---|
| 23 Acacia Grove | £ 495,000 | 0.04 KM |
| 31a Acacia Grove | £ 174,000 | 0.09 KM |
| 4 Acacia Grove | £ 710,000 | 0.09 KM |
| 5 Acacia Grove | £ 410,000 | 0.09 KM |
| 31 Acacia Grove | £ 134,950 | 0.09 KM |