Chancellors says ..
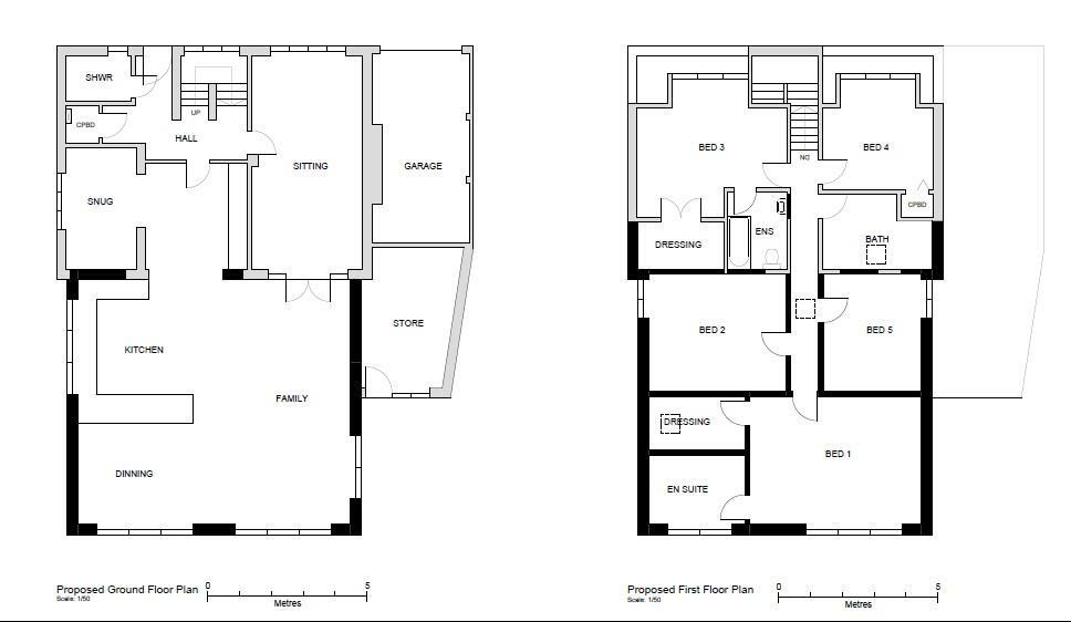
A rare opportunity to acquire this detached, longstanding family home upon a southerly facing plot, offering views over open fields beyond. The property is offered to market with already granted planning permission for a double storey rear extension - Early bookings recommended
Property Oracle says ..
This four-bedroom property in Windlesham, Surrey, presents a mixed bag. The location in Windlesham is generally considered desirable, offering a blend of village life and proximity to transport links and well-regarded schools. The property itself is a detached house with a garden and what appears to be off-street parking, which are attractive features. However, the provided photographs suggest the property is in need of some modernisation. The kitchen and bathrooms look dated, and the interior decor could benefit from updating. The property benefits from planning permission for a double-storey rear extension, which would significantly increase its size and value. The lack of precise square footage data for comparable properties makes a definitive assessment of the price per square foot challenging, but the asking price appears relatively reasonable considering the location and potential for improvement. Overall, the property presents an opportunity for a buyer willing to undertake some renovation work to create a comfortable family home in a desirable location. The size of the garden is a positive aspect, and the approved planning permission adds to the property’s appeal. However, potential buyers should factor in the costs of renovation and modernisation when considering the overall value proposition.
Therefore, we give this property 6 / 10. *Disclaimer: This is our option and does constitute a recommendation or financial advice. Do your own research. *
- Price
- 7
- Condition
- 6
- Location
- 7
- Land
- 6
- Bedrooms
- 4
- Bathrooms
- 0
- Sqft (est)
- 1,918.00
The heatmap indicates the level of crime in the area. The color of the heatmap indicates the crime severity and recency.
Metrics Year-on-Year
- Average area value
- 1,260,829.00 £Increased by 15.29 %
- Est sale value
- 1,708,938.00 £Increased by 84.47 %
- Average area rental value
- 6,050.00 £/moIncreased by 108.62 %
- Est letting value
- 7,672.00 £/moIncreased by 300.00 %
- Est rental Yield
- 5.76 %Increased by 81.13 %
- Crime Rate
- 20.00 %Unchanged by 0.00 %
Agent Activity
Chancellors created the listing.
Nearby Schools
| Name | Type | Ofsted | Distance |
|---|---|---|---|
| Fernways School | Other Independent Special School | 1.42 KM | |
| Woodcote House School | Other Independent School | 1.66 KM | |
| Windlesham Village Infant School | Academy Converter | Requires improvement | 1.96 KM |
| Lightwater Village School | Academy Converter | 2.10 KM | |
| Gordon'S School | Academy Converter | Outstanding | 2.26 KM |
Images
Nearby Streets
| Name | Average Price | Average Sqft | Distance |
|---|---|---|---|
| Broadway Road | £ 1,000,000 | 0 | 0.00 KM |
| Molyneux Road | £ 0 | 0 | 0.00 KM |
| Graham Road | £ 0 | 0 | 0.00 KM |
| Pound Lane | £ 0 | 0 | 0.00 KM |
| Rectory Lane | £ 0 | 0 | 0.00 KM |
Nearby Transport
| Name | NLC | TLC | Distance |
|---|---|---|---|
| Bagshot | 5681 | BAG | 3.52 KM |
| Sunningdale | 5671 | SNG | 4.34 KM |
| Ascot (Berks) | 5666 | ACT | 5.45 KM |
| Brookwood | 5687 | BKO | 6.79 KM |
| Longcross | 5674 | LNG | 7.41 KM |
Nearby Listings
| Address | Price | Type | Score | Distance |
|---|---|---|---|---|
| Windlesham, Surrey, GU20 | £ 625,000 | BUY | 7 / 10 | 0.11 KM |
| Broadway Road, Windlesham | £ 1,000,000 | BUY | 6 / 10 | 0.13 KM |
| Windmill Field, Windlesham | £ 750,000 | BUY | Unknown | 0.14 KM |
| Hutton Close, Windlesham, Surrey, GU20 | £ 400,000 | BUY | 7 / 10 | 0.20 KM |
| Deans Court, Windlesham | £ 395,000 | BUY | 7 / 10 | 0.20 KM |
Nearby Properties
| Address | Price | Distance |
|---|---|---|
| Brendons | £ 745,000 | 0.08 KM |
| Netherfield | £ 645,000 | 0.08 KM |
| Wychwood | £ 475,000 | 0.08 KM |
| Bordery Green Cottage | £ 380,000 | 0.10 KM |
| Thorndown View | £ 383,500 | 0.10 KM |