Kensington Drive, Stafford, Staffordshire, ST18
D

Kensington Drive, Stafford, Staffordshire, ST18

By D B Roberts & Partners

£ 645,000

Reviews

3 out of 5 stars

D B Roberts & Partners says ..

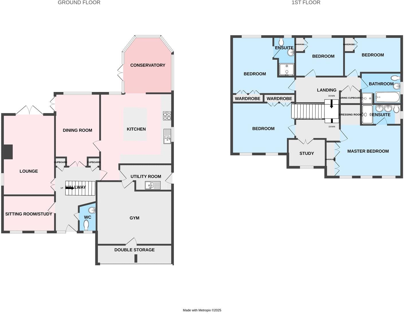
DB Roberts are delighted to present this impressive executive detached family home, ideally located in a sought-after residential area close to Stafford town centre. This spacious and well-appointed property is arranged over two floors, offering versatile living space throughout. The g...

Property Oracle says ..

Therefore, we give this property 7 / 10. *Disclaimer: This is our option and does constitute a recommendation or financial advice. Do your own research. *

Price
7
Condition
9
Location
7
Land
8
Bedrooms
5
Bathrooms
3
Sqft (est)
2,480.00

The heatmap indicates the level of crime in the area. The color of the heatmap indicates the crime severity and recency.

Metrics Year-on-Year

Average area value
255,849.00 £
Increased by 6.98 %
from 239,166.00 £
Est sale value
627,440.00 £
Increased by 8.12 %
from 580,320.00 £
Average area rental value
888.00 £/mo
Decreased by 17.63 %
from 1,078.00 £/mo
Est letting value
0.00 £/mo
Decreased by 100.00 %
from 2,480.00 £/mo
Est rental Yield
4.16 %
Decreased by 23.11 %
from 5.41 %
Crime Rate
12.00 %
Unchanged by 0.00 %
from 12.00 %

Agent Activity

  • D B Roberts & Partners created the listing.

Nearby Schools

NameTypeOfstedDistance
Staffordshire UniversityHigher Education InstitutionsRequires improvement0.59 KM
Veritas Primary AcademyAcademy Sponsor LedGood0.72 KM
St John'S Cofe Primary AcademyAcademy ConverterGood1.09 KM
The Weston Road AcademyAcademy ConverterGood1.14 KM
St Leonard'S Primary SchoolCommunity SchoolGood1.38 KM

Images

Picture No. 44 Picture No. 16 Picture No. 25 Picture No. 22 Picture No. 13 Picture No. 45 Picture No. 12 Picture No. 06 Picture No. 36 Picture No. 41 Picture No. 33 Picture No. 43 Picture No. 42 Picture No. 27 Picture No. 26 Picture No. 18 Picture No. 46 Picture No. 34 Picture No. 35 Picture No. 37 Picture No. 32 Picture No. 31 Picture No. 21 Picture No. 15 Picture No. 17 Picture No. 19 Picture No. 23 Picture No. 20 Picture No. 24 Picture No. 30 Picture No. 29 Picture No. 38 Picture No. 47 Picture No. 49 Picture No. 48 Picture No. 40 Picture No. 39 Picture No. 28 Picture No. 07 Picture No. 04 Picture No. 05 Picture No. 10 Picture No. 11 Picture No. 08 Picture No. 09

Nearby Streets

NameAverage PriceAverage SqftDistance
Hampton Gardens £ 000.00 KM
Birkdale Drive £ 000.00 KM
Darley Avenue £ 417,50000.00 KM
Callow Hill Place £ 325,00000.00 KM
Cypress Close £ 000.00 KM

Nearby Transport

NameNLCTLCDistance
Stafford1268STA4.31 KM

Nearby Listings

AddressPriceTypeScoreDistance
Kensington Drive, Stafford, Staffordshire, ST18 £ 645,000BUY7 / 100.00 KM
Hampton Gardens, Stafford, Staffordshire, ST18 £ 635,000BUY8 / 100.13 KM
Bupton Road, Stafford, ST18 £ 280,000BUY8 / 100.18 KM
Alcester Row, Stafford, ST18 £ 375,000BUY7 / 100.22 KM
Bupton Road, Stafford, ST18 £ 335,000BUY7 / 100.24 KM

Nearby Properties

AddressPriceDistance
6 Holyrood Close £ 460,0000.07 KM
2 Holyrood Close £ 327,0000.07 KM
5 Holyrood Close £ 330,0000.07 KM
7 Blenheim Close £ 445,0000.11 KM
16 Blenheim Close £ 330,0000.11 KM