Studley Avenue, Holbury, SO45
By Anthony James Properties
£ 310,000
Reviews
3 out of 5 stars
Anthony James Properties says ..
*Spacious house with flexibility* *Two reception rooms & conservatory* *Potential for fourth bedroom (g/floor)* *Driveway* *Low maintenance garden*
Property Oracle says ..
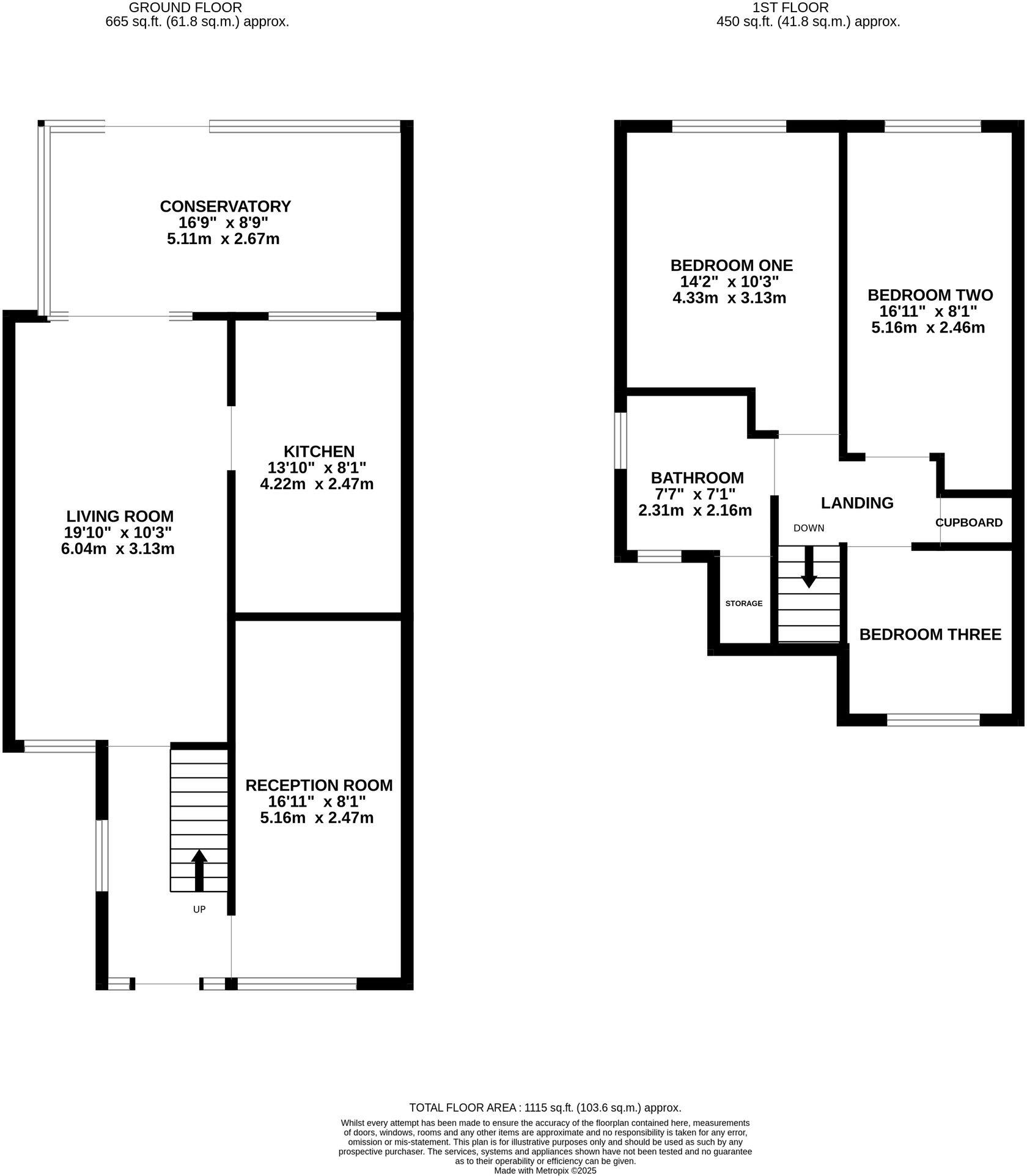
The property is a 3-bedroom semi-detached house located in Holbury, New Forest, Hampshire. It is listed at £310,000 and has 1,115 square feet of living space. The property benefits from a modern kitchen and conservatory, suggesting recent renovations. The images show a well-maintained property in good condition with a patio and garden area. The location is convenient, with nearby schools receiving good Ofsted ratings and several train stations within a reasonable distance. While the plot size is listed as 0.00 sqft, the photos clearly show a garden, albeit a relatively small one. Compared to the average price per square foot in the area (£427), the listing price of £310,000 appears reasonable, especially considering the apparent recent renovations and good condition of the property. However, the lack of plot size data in the provided information makes a definitive statement on land value difficult.
Therefore, we give this property 7 / 10. *Disclaimer: This is our option and does constitute a recommendation or financial advice. Do your own research. *
- Price
- 7
- Condition
- 9
- Location
- 8
- Land
- 6
- Bedrooms
- 3
- Bathrooms
- 1
- Sqft (est)
- 1,115.00
The heatmap indicates the level of crime in the area. The color of the heatmap indicates the crime severity and recency.
Metrics Year-on-Year
- Average area value
- 471,111.00 £Increased by 12.11 %
- Est sale value
- 600,985.00 £Increased by 34.75 %
- Average area rental value
- 1,283.00 £/moDecreased by 19.91 %
- Est letting value
- 1,115.00 £/moUnchanged by 0.00 %
- Est rental Yield
- 3.27 %Decreased by 28.45 %
- Crime Rate
- 17.00 %Unchanged by 0.00 %
Agent Activity
Anthony James Properties created the listing.
Nearby Schools
| Name | Type | Ofsted | Distance |
|---|---|---|---|
| Manor Church Of England Infant School | Voluntary Controlled School | Good | 0.59 KM |
| Cadland And Forest First Children'S Centre | Children's Centre | 0.59 KM | |
| Cadland Primary School | Community School | Good | 0.59 KM |
| The New Forest Academy | Academy Sponsor Led | Good | 1.02 KM |
| Blackfield Primary School | Academy Converter | Good | 2.27 KM |
Images
Nearby Streets
| Name | Average Price | Average Sqft | Distance |
|---|---|---|---|
| Teachers Way | £ 270,000 | 0 | 0.00 KM |
| Ashleycross Close | £ 0 | 0 | 0.00 KM |
| Hunter Close | £ 400,000 | 0 | 0.00 KM |
| Harrier Way | £ 0 | 0 | 0.00 KM |
| Main Road | £ 399,950 | 0 | 0.00 KM |
Nearby Transport
| Name | NLC | TLC | Distance |
|---|---|---|---|
| Netley | 5911 | NTL | 7.56 KM |
| Woolston | 5925 | WLS | 8.01 KM |
| Sholing | 5930 | SHO | 8.16 KM |
| Hamble | 5947 | HME | 8.41 KM |
| Southampton Central | 5932 | SOU | 9.12 KM |
Nearby Listings
| Address | Price | Type | Score | Distance |
|---|---|---|---|---|
| Studley Avenue, Holbury, SO45 | £ 310,000 | BUY | 7 / 10 | 0.00 KM |
| Redrise Close, Holbury, Southampton, Hampshire, SO45 | £ 279,950 | BUY | 7 / 10 | 0.07 KM |
| Redrise Close, Holbury, Southampton, Hampshire, SO45 | £ 250,000 | BUY | Unknown | 0.09 KM |
| Depedene Close, Holbury, SO45 | £ 279,950 | BUY | 7 / 10 | 0.11 KM |
| Holbury, Southampton, Hampshire, SO45 | £ 289,950 | BUY | Unknown | 0.12 KM |
Nearby Properties
| Address | Price | Distance |
|---|---|---|
| 10 Stagbrake Close | £ 159,000 | 0.08 KM |
| 14 Stagbrake Close | £ 153,000 | 0.08 KM |
| 18 Stagbrake Close | £ 158,000 | 0.08 KM |
| 20 Stagbrake Close | £ 315,000 | 0.08 KM |
| 19 Stagbrake Close | £ 84,750 | 0.08 KM |