Hortons says ..
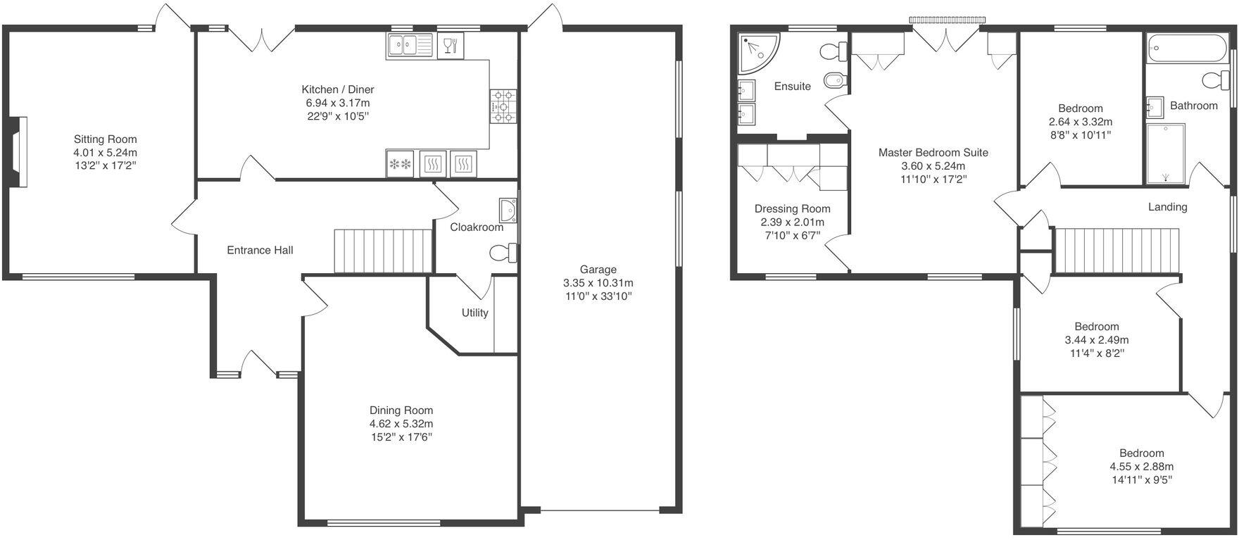
Located at the end of a cul de sac and nestled on a third of an acre plot, this substantial four bedroom detached property is the perfect family home.
Property Oracle says ..
Therefore, we give this property 8 / 10. *Disclaimer: This is our option and does constitute a recommendation or financial advice. Do your own research. *
- Price
- 7
- Condition
- 9
- Location
- 8
- Land
- 8
- Bedrooms
- 4
- Bathrooms
- 2
- Sqft (est)
- 1,589.71
The heatmap indicates the level of crime in the area. The color of the heatmap indicates the crime severity and recency.
Metrics Year-on-Year
- Average area value
- 607,500.00 £Increased by 4.15 %
- Est sale value
- 1,437,097.84 £Increased by 164.33 %
- Average area rental value
- 1,328.00 £/moDecreased by 13.15 %
- Est letting value
- 1,589.71 £/mo
- Est rental Yield
- 2.62 %Decreased by 16.83 %
- Crime Rate
- 3.00 %Unchanged by 0.00 %
from 583,319.00 £
from 543,680.82 £
from 1,529.00 £/mo
from 0.00 £/mo
from 3.15 %
from 3.00 %
Agent Activity
Hortons created the listing.
Nearby Schools
| Name | Type | Ofsted | Distance |
|---|---|---|---|
| St Peter And St Paul Church Of England Academy | Academy Converter | Good | 0.29 KM |
| Wreake Valley Academy | Academy Converter | Requires improvement | 0.98 KM |
| The Merton Primary School | Academy Converter | Good | 1.44 KM |
| The Roundhill Academy | Academy Converter | Good | 2.28 KM |
| Bishop Ellis Catholic Primary School, Thurmaston | Voluntary Aided School | Good | 2.38 KM |
Images
Nearby Streets
| Name | Average Price | Average Sqft | Distance |
|---|---|---|---|
| Bath Street | £ 320,000 | 0 | 0.00 KM |
| High Street | £ 300,000 | 0 | 0.00 KM |
| Church Close | £ 0 | 0 | 0.00 KM |
| Chapel Street | £ 0 | 0 | 0.00 KM |
| Brookfield Avenue | £ 290,000 | 0 | 0.00 KM |
Nearby Transport
| Name | NLC | TLC | Distance |
|---|---|---|---|
| Syston | 1900 | SYS | 1.04 KM |
| Sileby | 1902 | SIL | 4.90 KM |
| Barrow-Upon-Soar | 1903 | BWS | 9.15 KM |
| Leicester | 1947 | LEI | 9.49 KM |
Nearby Listings
| Address | Price | Type | Score | Distance |
|---|---|---|---|---|
| Bath Street, Syston, LE7 | £ 650,000 | BUY | 8 / 10 | 0.00 KM |
| Preston Close, Syston, Leicester, LE7 1AE | £ 255,000 | BUY | 7 / 10 | 0.16 KM |
| Old Bake House, Bath Street, Syston, LE7 | £ 460,000 | BUY | 6 / 10 | 0.16 KM |
| Bohemian House, 75 High Street, Syston, Leicester, LE7 1GQ | £ 190,000 | BUY | Unknown | 0.20 KM |
| High Street, Syston, LE7 | £ 260,000 | BUY | 7 / 10 | 0.21 KM |
Nearby Properties
| Address | Price | Distance |
|---|---|---|
| 9 Bath Street | £ 373,000 | 0.09 KM |
| 46 Bath Street | £ 320,000 | 0.09 KM |
| 35 Bath Street | £ 37,000 | 0.09 KM |
| 4 Bath Street | £ 280,000 | 0.09 KM |
| 44 Bath Street | £ 365,000 | 0.09 KM |