Brian Cox says ..
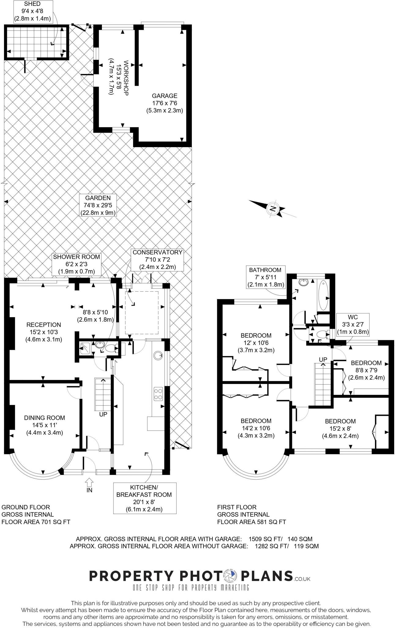
This spacious four bedroom end of terrace property enters the market with Brian Cox Estate Agents. The property is situated close to shopping facilities, sought after schools and transportation links. Accommodation: porch, spacious lounge, stunning fitted kitchen, open plan living/dining area,...
Property Oracle says ..
This end-of-terrace property in Lulworth Close, Harrow, offers a substantial 1,509 sqft of living space with four bedrooms and two bathrooms. The location is favourable due to its proximity to well-regarded schools and reasonable transport links. The property includes a generously sized garden. However, the interior is dated and requires modernisation, which is reflected in the price. While the asking price of £699,950 is a little high considering the condition, the square footage and plot size offer good value. Overall, this property presents a good opportunity for buyers willing to invest in renovations to create a modern family home.
Therefore, we give this property 6 / 10. *Disclaimer: This is our option and does constitute a recommendation or financial advice. Do your own research. *
- Price
- 6
- Condition
- 5
- Location
- 7
- Land
- 7
- Bedrooms
- 4
- Bathrooms
- 2
- Sqft (est)
- 1,509.00
- Lot (est)
- 3,700.00
The heatmap indicates the level of crime in the area. The color of the heatmap indicates the crime severity and recency.
Metrics Year-on-Year
- Average area value
- 341,429.00 £Increased by 9.95 %
- Est sale value
- 472,317.00 £Decreased by 25.65 %
- Average area rental value
- 875.00 £/moDecreased by 18.53 %
- Est letting value
- 0.00 £/moDecreased by 100.00 %
- Est rental Yield
- 3.08 %Decreased by 25.78 %
- Crime Rate
- 5.00 %Unchanged by 0.00 %
Agent Activity
Brian Cox created the listing.
Nearby Schools
| Name | Type | Ofsted | Distance |
|---|---|---|---|
| Newton Farm Nursery, Infant And Junior School | Community School | Outstanding | 0.46 KM |
| Rooks Heath School | Academy Converter | Good | 0.69 KM |
| Harrow Independent College | Other Independent School | Good | 0.70 KM |
| Heathland School | Academy Converter | 0.72 KM | |
| Alexandra School | Academy Special Converter | Outstanding | 0.79 KM |
Images
Nearby Streets
| Name | Average Price | Average Sqft | Distance |
|---|---|---|---|
| Lynton Road | £ 0 | 0 | 0.00 KM |
| Kenilworth Avenue | £ 0 | 0 | 0.00 KM |
| Newton Close | £ 282,500 | 0 | 0.00 KM |
| The Fairway | £ 708,333 | 0 | 0.00 KM |
| Windsor Close | £ 0 | 0 | 0.00 KM |
Nearby Transport
| Name | NLC | TLC | Distance |
|---|---|---|---|
| Northolt Park | 1478 | NLT | 2.15 KM |
| South Ruislip | 3057 | SRU | 2.66 KM |
| Greenford | 3136 | GFD | 4.33 KM |
| Sudbury Hill Harrow | 1484 | SDH | 4.62 KM |
| Headstone Lane | 1434 | HDL | 4.63 KM |
Nearby Listings
| Address | Price | Type | Score | Distance |
|---|---|---|---|---|
| Lulworth Close,Harrow,HA2 9NR | £ 525,000 | BUY | 5 / 10 | 0.00 KM |
| Lulworth Close, Harrow | £ 699,950 | BUY | 6 / 10 | 0.00 KM |
| Malvern Avenue, Harrow | £ 750,000 | BUY | 6 / 10 | 0.10 KM |
| Lynton Road, Harrow | £ 750,000 | BUY | 7 / 10 | 0.14 KM |
| Lynton Road, Harrow, HA2 | £ 650,000 | BUY | 6 / 10 | 0.18 KM |
Nearby Properties
| Address | Price | Distance |
|---|---|---|
| 9 Lulworth Close | £ 305,000 | 0.01 KM |
| 24 Lulworth Close | £ 249,950 | 0.01 KM |
| 1 Lulworth Close | £ 495,000 | 0.01 KM |
| 28 Lulworth Close | £ 167,000 | 0.01 KM |
| 21 Lulworth Close | £ 520,000 | 0.01 KM |