Chaplin Road, Easton, Bristol
HO

Chaplin Road, Easton, Bristol

By House + Co Property

£ 350,000

Reviews

2 out of 5 stars

House + Co Property says ..

Positioned in the heart of the thriving BS5 community and within an arm's reach of the Bristol to Bath cycle path and St. Marks Road; “one of Bristol’s most vibrant, creative and colourful streets” with 5* rated cafes and restaurants, sits this lovely home. A well presented and spacious two bedro...

Property Oracle says ..

This two-bedroom terraced house in Easton, Bristol, presents itself as a potentially attractive option for first-time buyers or those looking for a property in a lively, up-and-coming urban area. The interior appears to have been recently refurbished or updated, giving it a modern and clean feel. The décor is contemporary and neutral, allowing for flexibility and easy personalization by new occupants. The photos highlight features like a kitchen with modern appliances, a pleasant living area, and two bedrooms. The garden is a welcome addition, though relatively small. The location in Easton provides excellent access to transport links, with Stapleton Road station within easy reach, and benefits from the amenities of St. Marks Road. Nearby schools are a plus for families, although further research would be needed into their specific Ofsted ratings and educational offerings. The list price of £350,000 appears competitive given other sales in the vicinity, though without the precise square footage of similar properties, a precise value assessment is difficult. Potential buyers should conduct a thorough survey and assess the property’s condition and value in person, considering potential maintenance and repair costs.

Therefore, we give this property 5 / 10. *Disclaimer: This is our option and does constitute a recommendation or financial advice. Do your own research. *

Price
7
Condition
6
Location
7
Land
3
Bedrooms
2
Bathrooms
1
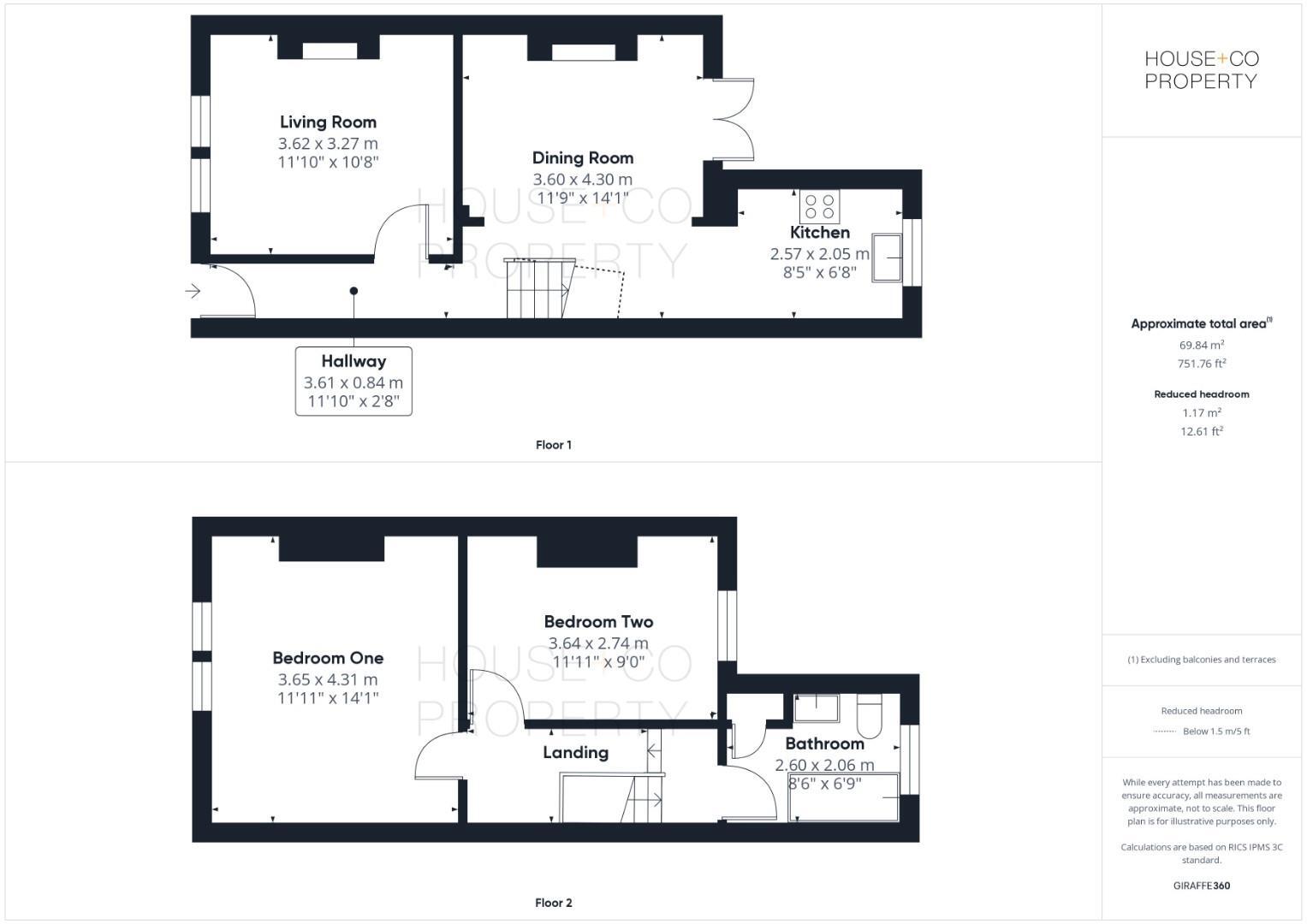
Sqft (est)
751.75

The heatmap indicates the level of crime in the area. The color of the heatmap indicates the crime severity and recency.

Metrics Year-on-Year

Average area value
250,313.00 £
Decreased by 14.86 %
from 293,989.00 £
Est sale value
308,217.50 £
Increased by 4.86 %
from 293,934.25 £
Average area rental value
1,834.00 £/mo
Increased by 13.07 %
from 1,622.00 £/mo
Est letting value
2,255.25 £/mo
Increased by 50.00 %
from 1,503.50 £/mo
Est rental Yield
8.79 %
Increased by 32.78 %
from 6.62 %
Crime Rate
8.00 %
Unchanged by 0.00 %
from 8.00 %

Agent Activity

  • House + Co Property created the listing.

Nearby Schools

NameTypeOfstedDistance
Bannerman Road Community AcademyAcademy Sponsor LedRequires improvement0.10 KM
Bannerman Road Children'S CentreChildren's Centre0.26 KM
The City Academy BristolAcademy Sponsor LedGood0.69 KM
Evergreen Primary AcademyAcademy Sponsor Led0.74 KM
St Werburgh'S Primary SchoolAcademy Converter0.97 KM

Images

IMG_7357.jpg CAM01576G0-PR0199-STILL002.jpg CAM01576G0-PR0199-STILL009.jpg CAM01576G0-PR0199-STILL016.jpg CAM01576G0-PR0199-STILL021.jpg CAM01576G0-PR0199-STILL031.jpg CAM01576G0-PR0199-STILL026.jpg CAM01576G0-PR0199-STILL003.jpg CAM01576G0-PR0199-STILL004.jpg CAM01576G0-PR0199-STILL005.jpg CAM01576G0-PR0199-STILL006.jpg CAM01576G0-PR0199-STILL007.jpg CAM01576G0-PR0199-STILL008.jpg CAM01576G0-PR0199-STILL011.jpg CAM01576G0-PR0199-STILL012.jpg CAM01576G0-PR0199-STILL013.jpg CAM01576G0-PR0199-STILL017.jpg CAM01576G0-PR0199-STILL018.jpg CAM01576G0-PR0199-STILL001.jpg CAM01576G0-PR0199-STILL019.jpg CAM01576G0-PR0199-STILL020.jpg CAM01576G0-PR0199-STILL022.jpg CAM01576G0-PR0199-STILL023.jpg CAM01576G0-PR0199-STILL025.jpg CAM01576G0-PR0199-STILL028.jpg CAM01576G0-PR0199-STILL027.jpg CAM01576G0-PR0199-STILL029.jpg CAM01576G0-PR0199-STILL030.jpg CAM01576G0-PR0199-STILL033.jpg CAM01576G0-PR0199-STILL032.jpg CAM01576G0-PR0199-STILL034.jpg IMG_1652.jpg IMG_1651.jpg IMG_1653.jpg IMG_1650.jpg IMG_1654.jpg IMG_1655.jpg

Nearby Streets

NameAverage PriceAverage SqftDistance
Roman Road £ 345,00000.00 KM
Chapel Road £ 000.00 KM
Brixton Road £ 340,00000.00 KM
Cato Street £ 425,00000.00 KM
Saint Gabriels Road £ 375,00000.00 KM

Nearby Transport

NameNLCTLCDistance
Stapleton Road3250SRD0.29 KM
Lawrence Hill3225LWH0.79 KM
Bristol Temple Meads3231BRI2.48 KM
Montpelier3203MTP2.58 KM
Redland3247RDA3.72 KM

Nearby Listings

AddressPriceTypeScoreDistance
Chaplin Road, Easton, Bristol £ 350,000BUY5 / 100.00 KM
Heron Road, Easton £ 410,000BUY6 / 100.11 KM
Rene Road, Easton, Bristol £ 360,000BUYUnknown0.13 KM
Nicholas Road, Easton, Bristol BS5 0LY £ 425,000BUY5 / 100.14 KM
Albion Road, Bristol £ 415,000BUY6 / 100.15 KM

Nearby Properties

AddressPriceDistance
90 Chaplin Road £ 105,0000.02 KM
98 Chaplin Road £ 165,0000.02 KM
96 Chaplin Road £ 166,5000.02 KM
104 Chaplin Road £ 151,5000.02 KM
81 Chaplin Road £ 305,0000.02 KM