Tunstall Avenue, Hartlepool
By Manners & Harrison
£ 180,000
Reviews
2 out of 5 stars
Manners & Harrison says ..
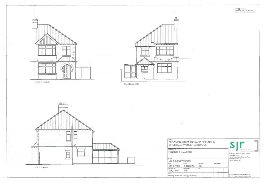
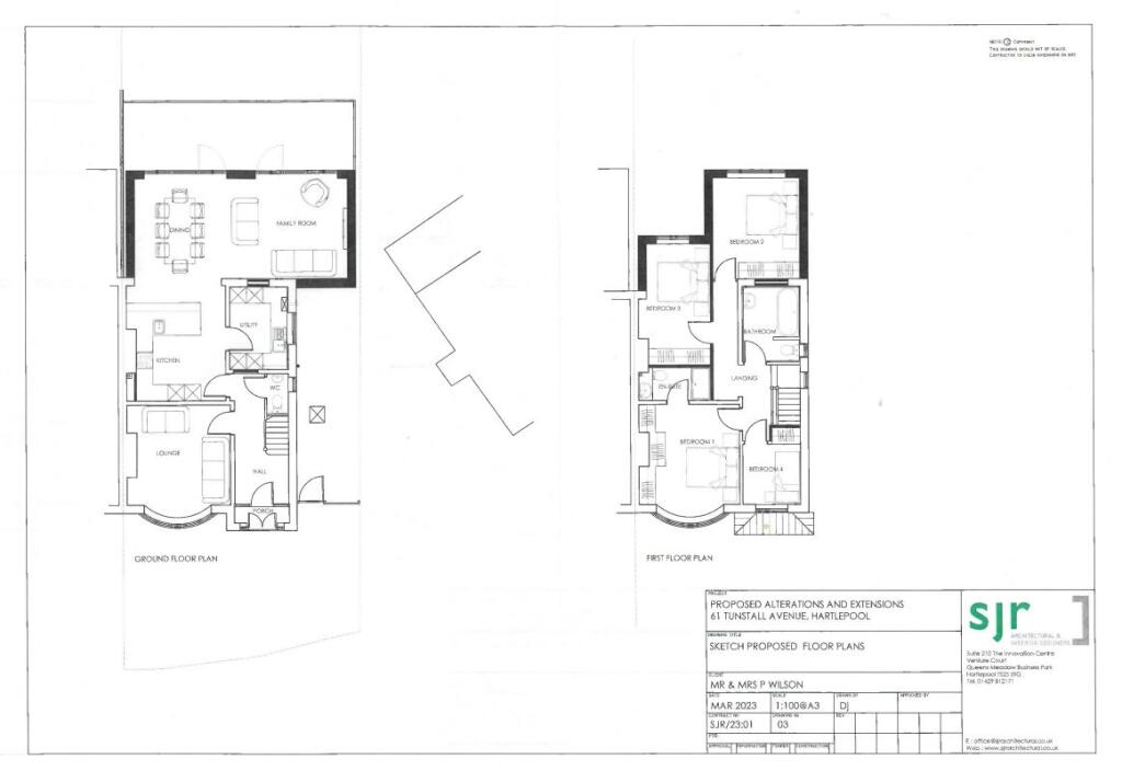
Charming, three bedroom, semi detached, family home. Nestled on a desirable residential street, this characterful property presents an exciting opportunity for families and those seeking additional space, with scope to extend (subject to the necessary planning permissions).
Property Oracle says ..
This semi-detached property in Hartlepool is listed at £180,000. The property benefits from three bedrooms and one bathroom and is situated on Tunstall Avenue. While the location is close to several schools and transportation links, the property itself requires significant renovation. The garden is a positive feature, but the overall condition needs considerable improvement, impacting its value. Compared to nearby properties, the price seems slightly below average, but this is likely due to the required renovations. Further investigation into the extent of the necessary repairs is recommended to determine the true value and potential return on investment.
Therefore, we give this property 5 / 10. *Disclaimer: This is our option and does constitute a recommendation or financial advice. Do your own research. *
- Price
- 6
- Condition
- 4
- Location
- 6
- Land
- 7
- Bedrooms
- 3
- Bathrooms
- 1
- Sqft (est)
- 1,330.00
The heatmap indicates the level of crime in the area. The color of the heatmap indicates the crime severity and recency.
Metrics Year-on-Year
- Average area value
- 273,072.00 £Decreased by 1.50 %
- Est sale value
- 449,540.00 £Increased by 29.01 %
- Average area rental value
- 1,340.00 £/moIncreased by 9.39 %
- Est letting value
- 1,330.00 £/moUnchanged by 0.00 %
- Est rental Yield
- 5.89 %Increased by 11.13 %
- Crime Rate
- 3.00 %Unchanged by 0.00 %
Agent Activity
Manners & Harrison created the listing.
Nearby Schools
| Name | Type | Ofsted | Distance |
|---|---|---|---|
| Sacred Heart Catholic Primary School, Hartlepool | Academy Converter | 0.34 KM | |
| Jesmond Gardens Primary School | Academy Converter | Good | 0.72 KM |
| Springwell School | Community Special School | Outstanding | 1.01 KM |
| Eldon Grove Academy | Academy Converter | Good | 1.10 KM |
| Chatham Children'S Centre | Children's Centre | 1.21 KM |
Images
Nearby Streets
| Name | Average Price | Average Sqft | Distance |
|---|---|---|---|
| Grange Avenue | £ 300,000 | 0 | 0.00 KM |
| Wooler Road | £ 565,000 | 0 | 0.00 KM |
| Grange Close | £ 0 | 0 | 0.00 KM |
| Park Mews | £ 0 | 0 | 0.00 KM |
| Briarfields | £ 130,000 | 0 | 0.00 KM |
Nearby Transport
| Name | NLC | TLC | Distance |
|---|---|---|---|
| Hartlepool | 8009 | HPL | 2.75 KM |
| Seaton Carew | 8007 | SEC | 4.85 KM |
Nearby Listings
| Address | Price | Type | Score | Distance |
|---|---|---|---|---|
| Tunstall Avenue, Hartlepool | £ 180,000 | BUY | 5 / 10 | 0.00 KM |
| Tunstall Avenue, Hartlepool | £ 250,000 | BUY | 7 / 10 | 0.01 KM |
| Granville Avenue, Hartlepool | £ 255,000 | BUY | 6 / 10 | 0.07 KM |
| Tunstall Avenue, Hartlepool | £ 215,000 | BUY | 7 / 10 | 0.09 KM |
| Granville Avenue, Hartlepool | £ 190,000 | BUY | 6 / 10 | 0.11 KM |
Nearby Properties
| Address | Price | Distance |
|---|---|---|
| 53 Tunstall Avenue | £ 195,000 | 0.00 KM |
| 59 Tunstall Avenue | £ 235,000 | 0.00 KM |
| 51 Tunstall Avenue | £ 185,000 | 0.00 KM |
| 49 Tunstall Avenue | £ 162,000 | 0.00 KM |
| 26 Tunstall Avenue | £ 183,000 | 0.00 KM |