Portland Crescent, Stanmore
GI

Portland Crescent, Stanmore

By Gibbs Gillespie

£ 675,000

Reviews

3 out of 5 stars

Gibbs Gillespie says ..

Perfectly positioned, this modern, light filled family home is located close to local amenities and transport links of Canons Park as well as several highly regarded schools including Park High and Kenmore Infant and Junior Schools. The property benefits from two bathrooms. off street parking, a ...

Property Oracle says ..

This is a three-bedroom semi-detached house in Stanmore, Greater London. The property is in a good location, close to schools and amenities. The house is in reasonable condition, but it would benefit from some modernisation. The property has a garden, which is a good size. The price is slightly above average for the area, but the property is larger than average.

Therefore, we give this property 6 / 10. *Disclaimer: This is our option and does constitute a recommendation or financial advice. Do your own research. *

Price
6
Condition
6
Location
7
Land
7
Bedrooms
3
Bathrooms
2
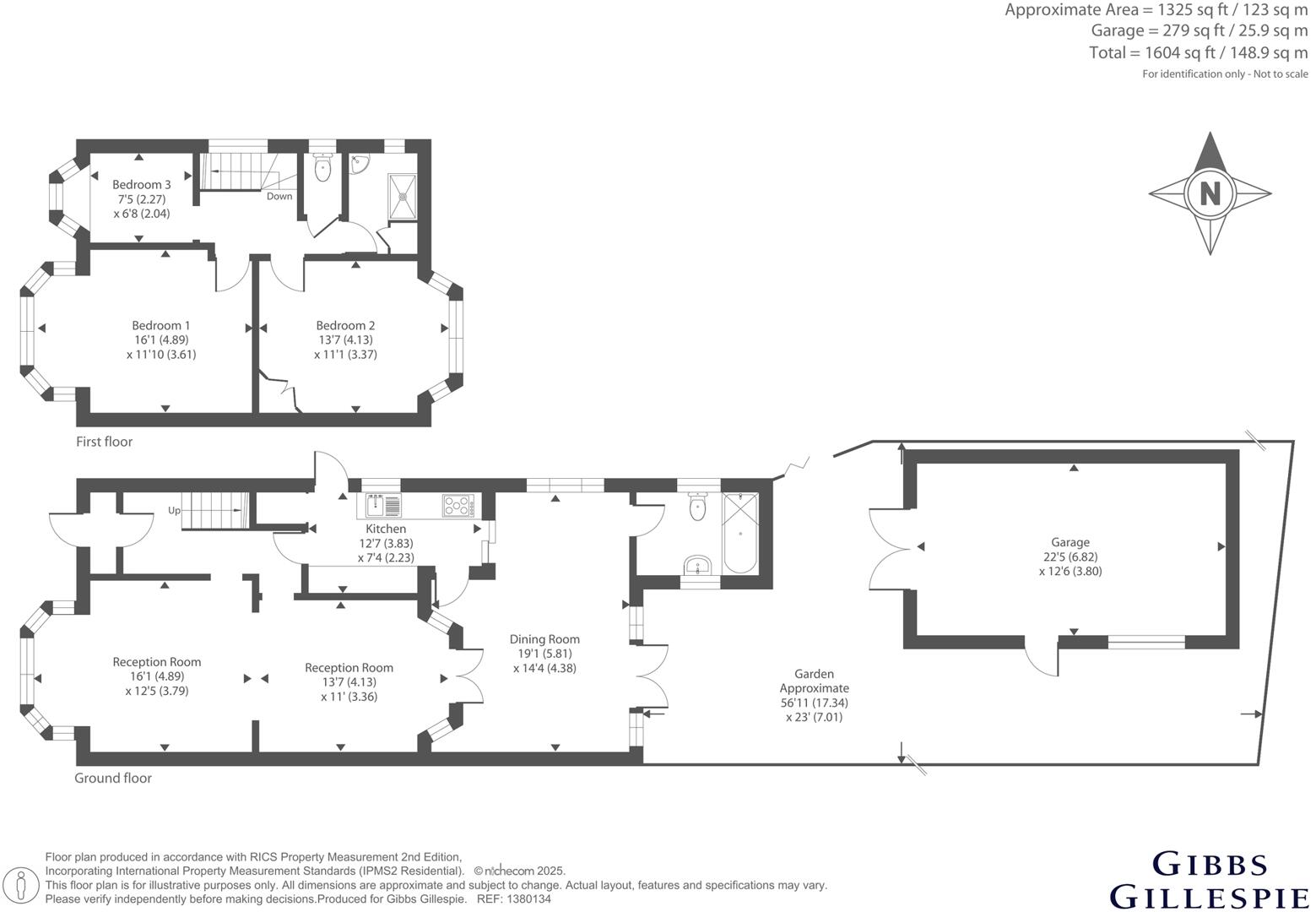
Sqft (est)
1,602.75

The heatmap indicates the level of crime in the area. The color of the heatmap indicates the crime severity and recency.

Metrics Year-on-Year

Average area value
343,889.00 £
Increased by 1.30 %
from 339,466.00 £
Est sale value
626,675.25 £
Increased by 24.52 %
from 503,263.50 £
Average area rental value
2,052.00 £/mo
Increased by 11.64 %
from 1,838.00 £/mo
Est letting value
3,205.50 £/mo
Increased by 100.00 %
from 1,602.75 £/mo
Est rental Yield
7.16 %
Increased by 10.15 %
from 6.50 %
Crime Rate
6.00 %
Unchanged by 0.00 %
from 6.00 %

Agent Activity

  • Gibbs Gillespie created the listing.

Nearby Schools

NameTypeOfstedDistance
Kenmore Park Junior SchoolCommunity SchoolGood0.33 KM
Kenmore Park Infant And Nursery SchoolCommunity SchoolGood0.33 KM
Kenmore Park Children'S CentreChildren's Centre Linked Site0.51 KM
Glebe Primary SchoolCommunity SchoolOutstanding0.57 KM
Park High SchoolAcademy ConverterOutstanding0.76 KM

Images

1380134-20-691332... 1380134-17-691331... 1380134-16-691331... 1380134-10-691331... 1380134-14-691331... 1380134-7-6913315... 1380134-6-6913314... 1380134-21-691332... 1380134-15-691331... 1380134-8-6913315... 1380134-2-6913313... 1380134-4-6913313... 1380134-19-691331... 1380134-18-691331... 1380134-12-691331... 1380134-13-691331... 1380134-11-691331... 1380134-5-6913314... 1380134-9-6913316...

Nearby Streets

NameAverage PriceAverage SqftDistance
Chichester Court £ 351,65000.00 KM
Court Close £ 000.00 KM
Glebe Lane £ 355,00000.00 KM
Coombe Close £ 000.00 KM
Lowther Road £ 331,66700.00 KM

Nearby Transport

NameNLCTLCDistance
Kenton1399KNT2.85 KM
South Kenton1453SOK3.26 KM
North Wembley1422NWB3.91 KM
Harrow And Wealdstone1397HRW4.29 KM
Wembley Stadium1509WCX4.86 KM

Nearby Listings

AddressPriceTypeScoreDistance
Portland Crescent, Stanmore £ 675,000BUY6 / 100.00 KM
Portland Crescent, Stanmore, Middlesex £ 650,000BUY7 / 100.04 KM
Portland Crescent, Stanmore, Middlesex, HA7 £ 635,000BUY6 / 100.04 KM
Honeypot Lane, Stanmore, Middlesex, HA7 £ 250,000BUYUnknown0.09 KM
Honeypot Lane, Stanmore, HA7 £ 385,000BUY6 / 100.11 KM

Nearby Properties

AddressPriceDistance
34 Portland Crescent £ 258,0000.00 KM
38 Portland Crescent £ 287,5000.00 KM
40 Portland Crescent £ 93,5000.00 KM
31 Portland Crescent £ 136,0000.05 KM
1 Portland Crescent £ 495,0000.05 KM