Beverley Road, Hull
By Tulip Investment Sales
£ 280,000
Reviews
2 out of 5 stars
Tulip Investment Sales says ..
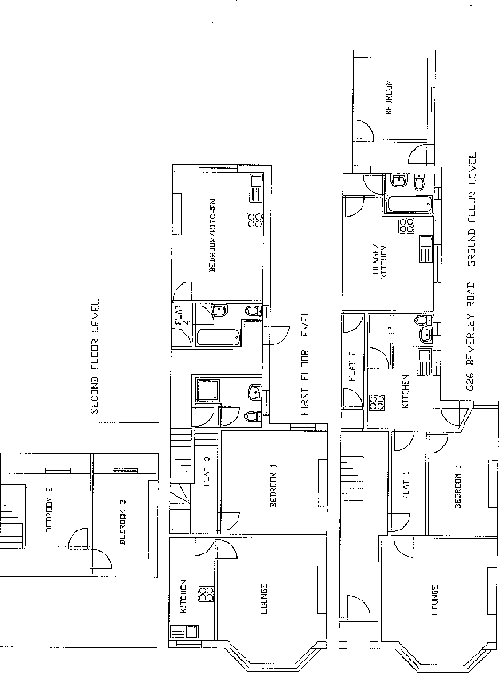
A fantastic investment opportunity comprising a block of four student flats, ideally located close to Hull University. Fully let for the 2024/2025 academic year, this property generates a gross rental income of £28,970 with an impressive 10.35% gross yield PA. Property Breakdown:
Property Oracle says ..
This property is a block of apartments located on Beverley Road in Hull, East Riding of Yorkshire. The property is in a convenient location, with several schools and transportation options nearby. Based on the images provided, the property appears to be in reasonably good condition, although some of the rooms show signs of wear and tear. The property does not appear to have a significant amount of land. The list price of £280,000 is significantly higher than the average price for properties in the area (£146,373). However, given that it is a block of apartments with multiple bedrooms and bathrooms, the price may be justified. Further information on the property’s condition and rental potential would be needed to provide a more definitive assessment of its value.
Therefore, we give this property 5 / 10. *Disclaimer: This is our option and does constitute a recommendation or financial advice. Do your own research. *
- Price
- 6
- Condition
- 7
- Location
- 8
- Land
- 1
- Bedrooms
- 6
- Bathrooms
- 4
- Sqft (est)
- 1,400.00
The heatmap indicates the level of crime in the area. The color of the heatmap indicates the crime severity and recency.
Metrics Year-on-Year
- Average area value
- 136,095.00 £Increased by 6.30 %
- Est sale value
- 256,200.00 £Increased by 25.34 %
- Average area rental value
- 697.00 £/moIncreased by 17.74 %
- Est letting value
- 0.00 £/mo
- Est rental Yield
- 6.15 %Increased by 10.81 %
- Crime Rate
- 6.00 %Unchanged by 0.00 %
Agent Activity
Tulip Investment Sales created the listing.
Nearby Schools
| Name | Type | Ofsted | Distance |
|---|---|---|---|
| Endsleigh Holy Child Vc Academy | Academy Converter | Good | 0.28 KM |
| St Nicholas Primary School | Academy Converter | Good | 0.47 KM |
| Newland St John'S Church Of England Academy | Academy Converter | Good | 0.50 KM |
| St Mary'S College, Voluntary Catholic Academy | Academy Converter | 1.03 KM | |
| Lambert Children'S Centre | Children's Centre Linked Site | 1.04 KM |
Images
Nearby Streets
| Name | Average Price | Average Sqft | Distance |
|---|---|---|---|
| Beverley Road | £ 228,317 | 0 | 0.00 KM |
| Esmond Street | £ 0 | 0 | 0.00 KM |
| Bethnal Green | £ 0 | 0 | 0.00 KM |
| Rokel Court | £ 0 | 0 | 0.00 KM |
| Beaconsfield Street | £ 0 | 0 | 0.00 KM |
Nearby Transport
| Name | NLC | TLC | Distance |
|---|---|---|---|
| Hull | 8126 | HUL | 3.23 KM |
| Cottingham | 8056 | CGM | 5.84 KM |
| New Holland | 6209 | NHL | 7.80 KM |
| Barrow Haven | 6212 | BAV | 9.30 KM |
Nearby Listings
| Address | Price | Type | Score | Distance |
|---|---|---|---|---|
| Beverley Road, Hull | £ 280,000 | BUY | 5 / 10 | 0.00 KM |
| Beverley Road, Hull, HU6 | £ 240,000 | BUY | Unknown | 0.04 KM |
| Beverley Road, Hull, HU6 7LH | £ 325,000 | BUY | 5 / 10 | 0.07 KM |
| Wellesley Avenue, Bevereley Road, Hull | £ 200,000 | BUY | Unknown | 0.10 KM |
| Wellesley Avenue, Beverley Road, Hull | £ 255,000 | BUY | 6 / 10 | 0.11 KM |
Nearby Properties
| Address | Price | Distance |
|---|---|---|
| 620 Beverley Road | £ 40,000 | 0.02 KM |
| 618 Beverley Road | £ 40,000 | 0.02 KM |
| 20 Desmond Avenue | £ 215,000 | 0.12 KM |
| 28 Desmond Avenue | £ 130,000 | 0.12 KM |
| 2a Desmond Avenue | £ 73,000 | 0.12 KM |