TO
Creeting St. Mary, Ipswich, Suffolk
By Town & Village Properties
£ 210,000
Reviews
3 out of 5 stars
Town & Village Properties says ..
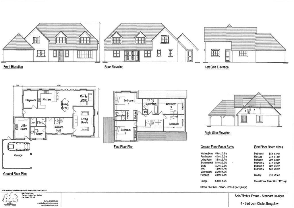
An exciting opportunity to acquire a building plot with full planning permission for the erection of a four bedroom detached property, located on the outskirts of this much sought after Suffolk village.
Property Oracle says ..
Therefore, we give this property 6 / 10. *Disclaimer: This is our option and does constitute a recommendation or financial advice. Do your own research. *
- Price
- 7
- Condition
- 0
- Location
- 6
- Land
- 7
- Bedrooms
- 0
- Bathrooms
- 0
The heatmap indicates the level of crime in the area. The color of the heatmap indicates the crime severity and recency.
Metrics Year-on-Year
- Average area value
- 392,083.00 £Increased by 15.46 %
- Average area rental value
- 1,056.00 £/moDecreased by 19.94 %
- Est rental Yield
- 3.23 %Decreased by 30.69 %
- Crime Rate
- 0.00 %
from 339,586.00 £
from 1,319.00 £/mo
from 4.66 %
from 0.00 %
Agent Activity
Town & Village Properties created the listing.
Nearby Schools
| Name | Type | Ofsted | Distance |
|---|---|---|---|
| Creeting St Mary Church Of England Voluntary Aided Primary School | Voluntary Aided School | Good | 2.75 KM |
| Stonham Aspal Church Of England Voluntary Aided Primary School | Voluntary Aided School | Good | 4.11 KM |
| Bosmere Community Primary School | Academy Converter | 5.35 KM | |
| Robins Children'S Centre | Children's Centre | 5.35 KM | |
| Freeman Community Primary School | Academy Converter | 6.72 KM |
Images
Nearby Streets
| Name | Average Price | Average Sqft | Distance |
|---|---|---|---|
| The Lord's Highway | £ 0 | 0 | 0.00 KM |
| Dunche's Lane | £ 500,000 | 0 | 0.00 KM |
| A140 | £ 0 | 0 | 0.00 KM |
| Green Lane | £ 0 | 0 | 0.00 KM |
Nearby Transport
| Name | NLC | TLC | Distance |
|---|---|---|---|
| Needham Market | 7354 | NMT | 4.47 KM |
| Stowmarket | 7355 | SMK | 9.73 KM |
Nearby Listings
| Address | Price | Type | Score | Distance |
|---|---|---|---|---|
| Comice House, All Saints Road, IP6 8PJ | £ 950,000 | BUY | 6 / 10 | 0.00 KM |
| Creeting St. Mary, Ipswich, Suffolk | £ 210,000 | BUY | 6 / 10 | 0.00 KM |
| All Saints Road, Creeting St Mary, IP6 | £ 825,000 | BUY | 7 / 10 | 0.15 KM |
| All Saints Road, Creeting St. Mary, IP6 | £ 195,000 | BUY | 5 / 10 | 0.32 KM |
| Creeting Bottoms, Creeting St. Mary | £ 270,000 | BUY | 7 / 10 | 0.60 KM |
Nearby Properties
| Address | Price | Distance |
|---|---|---|
| Shangri La | £ 169,500 | 0.58 KM |
| 2 Creeting Bottoms | £ 166,000 | 0.58 KM |
| 3 Creeting Bottoms | £ 230,000 | 0.58 KM |
| Elm Vale | £ 235,000 | 0.58 KM |
| Creeting Lodge | £ 650,000 | 0.58 KM |