12 Dock Street, London, E1
By London Property Guru
£ 820,000
Reviews
3 out of 5 stars
London Property Guru says ..
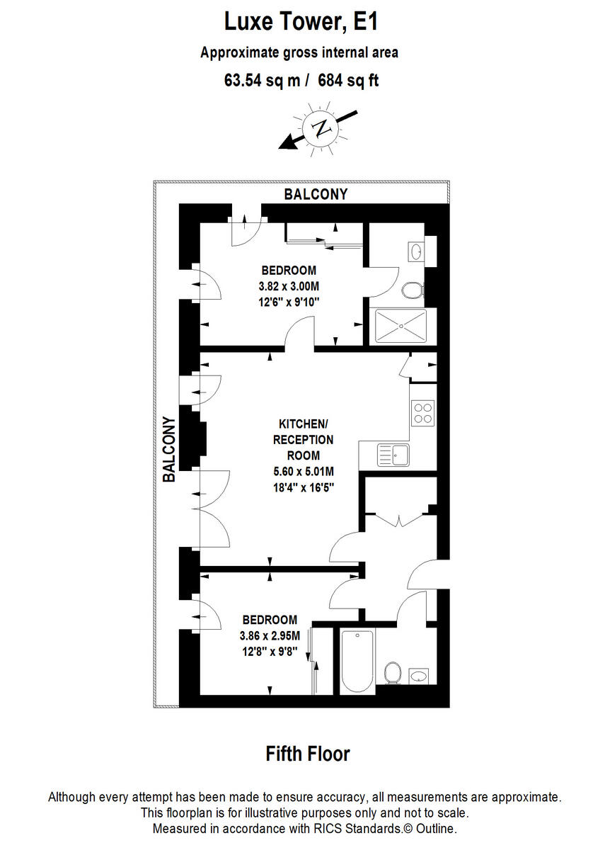
Residential development | Aldgate East | 2 bed 2 bath | 24 Hr Concierge | Gym & Residents Roof Terrace | 5th floor | City Views
Property Oracle says ..
The property is a 2-bedroom, 2-bathroom apartment located in Whitechapel, Tower Hamlets. It is modern and well-presented, with a contemporary kitchen and bathrooms. The location is convenient, with several transport links and well-regarded schools nearby. The property is in excellent condition and benefits from a balcony offering views of the London skyline. The list price appears high compared to the area average, but the modern condition, location, and views could justify a premium.
Therefore, we give this property 7 / 10. *Disclaimer: This is our option and does constitute a recommendation or financial advice. Do your own research. *
- Price
- 6
- Condition
- 10
- Location
- 9
- Land
- 3
- Bedrooms
- 2
- Bathrooms
- 2
- Sqft (est)
- 164.90
- Lot (est)
- 684.00
The heatmap indicates the level of crime in the area. The color of the heatmap indicates the crime severity and recency.
Metrics Year-on-Year
- Average area value
- 655,000.00 £Decreased by 0.12 %
- Est sale value
- 161,931.80 £Increased by 37.73 %
- Average area rental value
- 2,992.00 £/moIncreased by 16.06 %
- Est letting value
- 659.60 £/moIncreased by 100.00 %
- Est rental Yield
- 5.48 %Increased by 16.10 %
- Crime Rate
- 4.00 %Unchanged by 0.00 %
Agent Activity
London Property Guru created the listing.
Nearby Schools
| Name | Type | Ofsted | Distance |
|---|---|---|---|
| St Paul'S Whitechapel Church Of England Primary School | Voluntary Aided School | Outstanding | 0.29 KM |
| English Martyrs Roman Catholic Primary School | Voluntary Aided School | Good | 0.46 KM |
| Harry Gosling Primary School | Community School | Good | 0.47 KM |
| Hermitage Primary School | Community School | Good | 0.64 KM |
| London Enterprise Academy | Free Schools | Special Measures | 0.69 KM |
Images
Nearby Streets
| Name | Average Price | Average Sqft | Distance |
|---|---|---|---|
| Pennington Quay Walk | £ 0 | 0 | 0.00 KM |
| Waterside Promenade | £ 0 | 0 | 0.00 KM |
| Stutfield Street | £ 0 | 0 | 0.00 KM |
| St. Katharine Docks | £ 0 | 0 | 0.00 KM |
| Market Garden | £ 1,198,318 | 0 | 0.00 KM |
Nearby Transport
| Name | NLC | TLC | Distance |
|---|---|---|---|
| Fenchurch Street | 7490 | FST | 1.16 KM |
| Shadwell | 1082 | SDE | 1.28 KM |
| Whitechapel | 4935 | ZLW | 1.41 KM |
| Wapping | 1085 | WPE | 1.54 KM |
| Shoreditch High Street | 1024 | SDC | 1.64 KM |
Nearby Listings
| Address | Price | Type | Score | Distance |
|---|---|---|---|---|
| 12 Dock Street, London, E1 | £ 820,000 | BUY | 7 / 10 | 0.00 KM |
| Luxe Tower, London, E1 8QU | £ 675,000 | BUY | Unknown | 0.00 KM |
| Dock Street, E1, Tower Hill, LONDON, E1 | £ 625,000 | BUY | 7 / 10 | 0.01 KM |
| Dock Street, London, E1 | £ 425,000 | BUY | Unknown | 0.01 KM |
| Luxe Tower, Dock Street, Tower Hill, E1 | £ 820,000 | BUY | 6 / 10 | 0.01 KM |
Nearby Properties
| Address | Price | Distance |
|---|---|---|
| 4 Cable Street | £ 19,000 | 0.06 KM |
| 12 Cable Street | £ 670,000 | 0.06 KM |
| 2 Cable Street | £ 610,000 | 0.06 KM |
| 11 Dock Street | £ 883,000 | 0.06 KM |
| 11 Bowmans Mews | £ 440,000 | 0.16 KM |