TH
Hazel Tree Close, Radyr, Cardiff
By Thomas H Wood
£ 575,000
Reviews
3 out of 5 stars
Thomas H Wood says ..
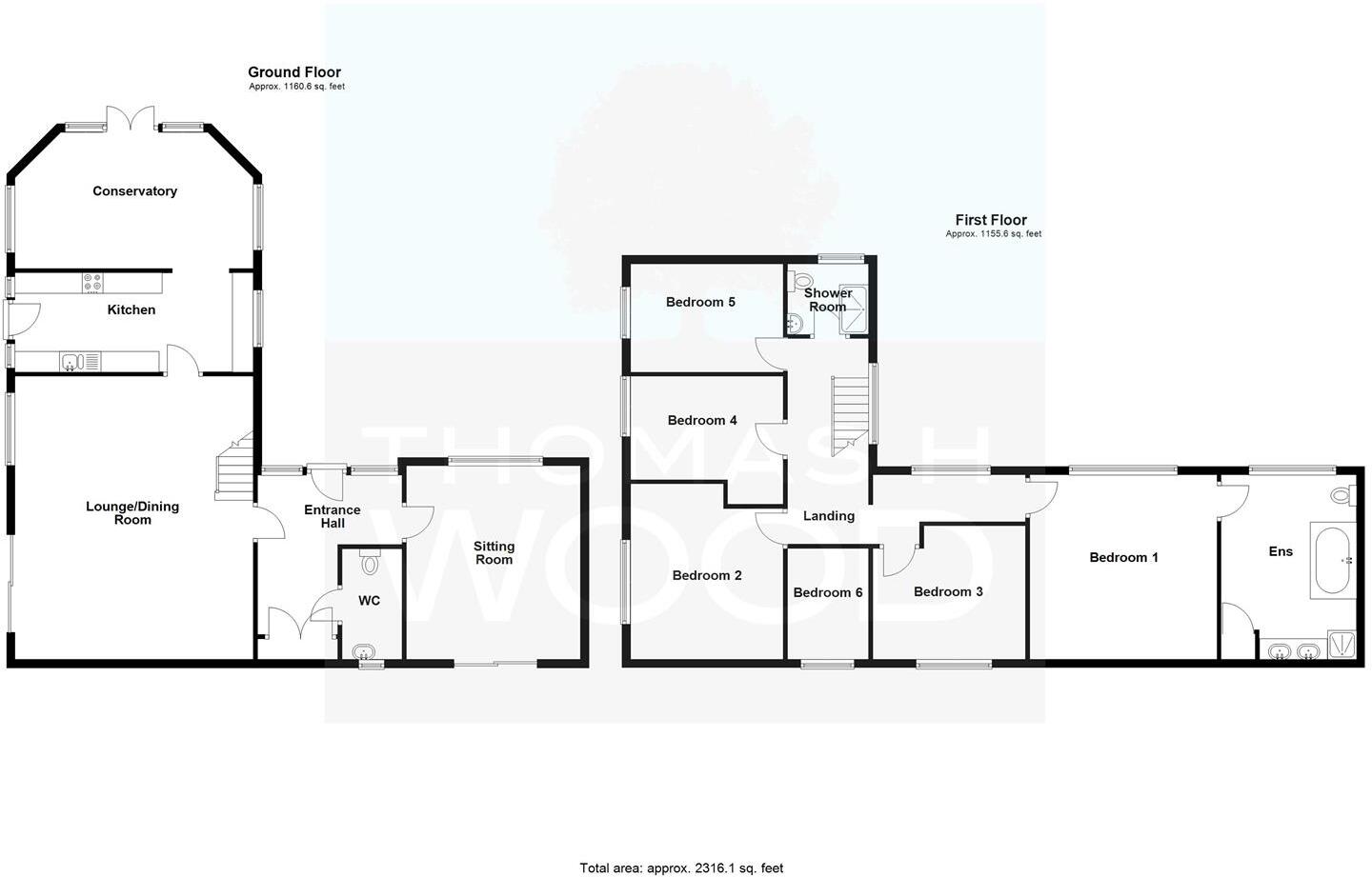
We are delighted to present this bright and spacious six-bedroom detached family residence, offered to the market with no onward chain. This immaculately maintained home offers exceptional living space across two floors and is ideally positioned for families, with generous accommodation, excellen...
Property Oracle says ..
Therefore, we give this property 7 / 10. *Disclaimer: This is our option and does constitute a recommendation or financial advice. Do your own research. *
- Price
- 7
- Condition
- 7
- Location
- 8
- Land
- 7
- Bedrooms
- 6
- Bathrooms
- 3
- Sqft (est)
- 2,316.10
The heatmap indicates the level of crime in the area. The color of the heatmap indicates the crime severity and recency.
Metrics Year-on-Year
- Average area value
- 405,000.00 £Decreased by 0.81 %
- Est sale value
- 704,094.40 £Decreased by 10.06 %
- Average area rental value
- 1,450.00 £/moIncreased by 7.89 %
- Est letting value
- 2,316.10 £/moUnchanged by 0.00 %
- Est rental Yield
- 4.30 %Increased by 8.86 %
- Crime Rate
- 4.00 %Unchanged by 0.00 %
from 408,311.00 £
from 782,841.80 £
from 1,344.00 £/mo
from 2,316.10 £/mo
from 3.95 %
from 4.00 %
Agent Activity
Thomas H Wood created the listing.
Nearby Schools
| Name | Type | Ofsted | Distance |
|---|---|---|---|
| Bryn Deri Primary School | Welsh Establishment | 0.86 KM | |
| Radyr Primary School | Welsh Establishment | 1.27 KM | |
| Tongwynlais Primary School | Welsh Establishment | 2.34 KM | |
| Y G G Gwaelod Y Garth | Welsh Establishment | 2.56 KM | |
| Radyr Comprehensive School | Welsh Establishment | 2.78 KM |
Images
Nearby Streets
| Name | Average Price | Average Sqft | Distance |
|---|---|---|---|
| Pant Tawel Lane | £ 0 | 0 | 0.00 KM |
| Ffordd Treforgan | £ 0 | 0 | 0.00 KM |
| Windsor Avenue | £ 690,990 | 0 | 0.00 KM |
| Bryn Castell | £ 320,000 | 0 | 0.00 KM |
| Chapel Road | £ 306,333 | 0 | 0.00 KM |
Nearby Transport
| Name | NLC | TLC | Distance |
|---|---|---|---|
| Taffs Well | 3880 | TAF | 2.29 KM |
| Radyr | 3874 | RDR | 2.36 KM |
| Coryton | 3905 | COY | 4.13 KM |
| Danescourt | 3797 | DCT | 4.52 KM |
| Llandaf | 3844 | LLN | 4.70 KM |
Nearby Listings
| Address | Price | Type | Score | Distance |
|---|---|---|---|---|
| Hazel Tree Close, Radyr, Cardiff | £ 575,000 | BUY | 7 / 10 | 0.00 KM |
| Hazel Tree Close, Radyr, Cardiff | £ 575,000 | BUY | 7 / 10 | 0.02 KM |
| Hazel Tree Close, Radyr, Cardiff | £ 475,000 | BUY | 7 / 10 | 0.04 KM |
| Hazel Tree Close, Radyr, Cardiff | £ 350,000 | BUY | 6 / 10 | 0.04 KM |
| Hazel Tree Close, Radyr | £ 350,000 | BUY | 6 / 10 | 0.11 KM |
Nearby Properties
| Address | Price | Distance |
|---|---|---|
| 12 Sycamore Tree Close | £ 272,000 | 0.09 KM |
| 11 Sycamore Tree Close | £ 219,000 | 0.09 KM |
| 9 Sycamore Tree Close | £ 431,000 | 0.09 KM |
| 6 Sycamore Tree Close | £ 415,000 | 0.09 KM |
| 23 Pine Tree Close | £ 76,000 | 0.12 KM |