LESTER ROAD, Aylesbury, HP20
By McCarthy & Stone - South East
£ 319,000
Reviews
3 out of 5 stars
McCarthy & Stone - South East says ..
In a peaceful setting with views over lush, landscaped gardens, Apartment 35 is a beautiful apartment. This lovely property is designed with comfort and independence in mind with clever features to support you as you age.
Property Oracle says ..
This is a well-presented retirement property in a convenient location in Aylesbury. The property is in excellent condition and benefits from communal gardens. The price appears reasonable compared to other properties in the area. The proximity to schools and transport links adds to the appeal of the location. The property is modern and well-maintained, offering a comfortable living environment for retirees.
Therefore, we give this property 7 / 10. *Disclaimer: This is our option and does constitute a recommendation or financial advice. Do your own research. *
- Price
- 7
- Condition
- 9
- Location
- 7
- Land
- 6
- Bedrooms
- 2
- Bathrooms
- 0
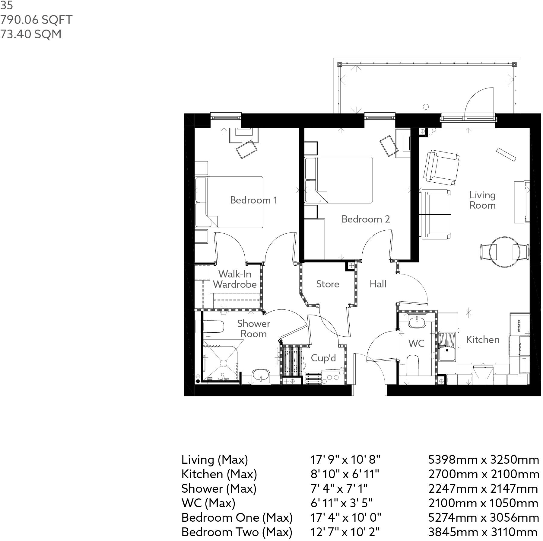
- Sqft (est)
- 628.90
The heatmap indicates the level of crime in the area. The color of the heatmap indicates the crime severity and recency.
Metrics Year-on-Year
- Average area value
- 417,990.00 £Decreased by 1.02 %
- Est sale value
- 224,517.30 £Decreased by 13.98 %
- Average area rental value
- 1,283.00 £/moDecreased by 17.33 %
- Est letting value
- 628.90 £/moUnchanged by 0.00 %
- Est rental Yield
- 3.68 %Decreased by 16.55 %
- Crime Rate
- 2.00 %Unchanged by 0.00 %
Agent Activity
McCarthy & Stone - South East created the listing.
Nearby Schools
| Name | Type | Ofsted | Distance |
|---|---|---|---|
| Aylesbury Grammar School | Academy Converter | 0.41 KM | |
| Stocklake Park Community School | Community Special School | Good | 0.58 KM |
| Aylesbury High School | Academy Converter | Outstanding | 0.63 KM |
| The Grange School | Foundation School | Requires improvement | 0.87 KM |
| St Joseph'S Catholic Infant School | Academy Converter | 1.12 KM |
Images
Nearby Streets
| Name | Average Price | Average Sqft | Distance |
|---|---|---|---|
| Lester Road | £ 355,000 | 0 | 0.00 KM |
| Florey Gardens | £ 300,000 | 0 | 0.00 KM |
| Park Street | £ 0 | 0 | 0.00 KM |
| Cannon Close | £ 137,500 | 0 | 0.00 KM |
| Padstow Close | £ 0 | 0 | 0.00 KM |
Nearby Transport
| Name | NLC | TLC | Distance |
|---|---|---|---|
| Aylesbury | 1492 | AYS | 1.77 KM |
| Stoke Mandeville | 1467 | SKM | 3.66 KM |
| Aylesbury Vale Parkway | 1090 | AVP | 6.91 KM |
| Little Kimble | 3066 | LTK | 7.28 KM |
| Wendover | 1466 | WND | 8.41 KM |
Nearby Listings
| Address | Price | Type | Score | Distance |
|---|---|---|---|---|
| LESTER ROAD, Aylesbury, HP20 | £ 330,000 | BUY | Unknown | 0.00 KM |
| LESTER ROAD, Aylesbury, HP20 | £ 309,000 | BUY | 8 / 10 | 0.00 KM |
| LESTER ROAD, Aylesbury, HP20 | £ 319,000 | BUY | 7 / 10 | 0.00 KM |
| LESTER ROAD, Aylesbury, HP20 | £ 350,000 | BUY | 7 / 10 | 0.00 KM |
| LESTER ROAD, Aylesbury, HP20 | £ 177,500 | BUY | 7 / 10 | 0.00 KM |
Nearby Properties
| Address | Price | Distance |
|---|---|---|
| 35 Victoria Street | £ 190,000 | 0.20 KM |
| 45 Victoria Street | £ 209,950 | 0.20 KM |
| 55 Victoria Street | £ 247,500 | 0.20 KM |
| 11 Victoria Street | £ 221,750 | 0.20 KM |
| 25a Victoria Street | £ 149,950 | 0.20 KM |