Orson Drive, Wigston, Leicester
By Phillips George Estate Agents
£ 260,000
Reviews
3 out of 5 stars
Phillips George Estate Agents says ..
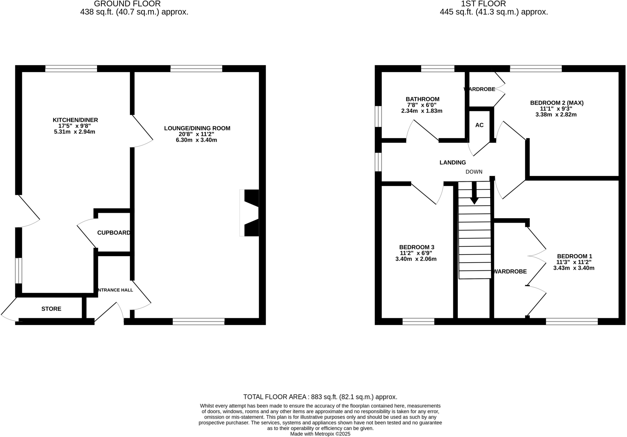
*** No Chain *** Well maintained and well proportioned family home for sale in Wigston. The property has been owned by the current owners since 1988 so this is the first time the property has even been exposed to the market. The accommodation comprises entrance hall, lounge diner, kitchen diner, ...
Property Oracle says ..
This end-of-terrace property on Orson Drive, Wigston, offers three bedrooms and one bathroom. While it presents a functional living space, some areas, particularly the kitchen and bathroom, would benefit from modernisation. The property boasts a generously sized garden, enhancing its appeal. Located in Wigston Fields, it’s conveniently close to local schools and transportation links, making it a suitable family home. The asking price of £260,000 is slightly above the local average per square foot but reflects the property’s size and features.
Therefore, we give this property 6 / 10. *Disclaimer: This is our option and does constitute a recommendation or financial advice. Do your own research. *
- Price
- 7
- Condition
- 6
- Location
- 7
- Land
- 7
- Bedrooms
- 3
- Bathrooms
- 1
- Sqft (est)
- 883.72
The heatmap indicates the level of crime in the area. The color of the heatmap indicates the crime severity and recency.
Metrics Year-on-Year
- Average area value
- 195,000.00 £Decreased by 28.80 %
- Est sale value
- 209,441.64 £Decreased by 5.20 %
- Average area rental value
- 1,123.00 £/moDecreased by 6.73 %
- Est letting value
- 883.72 £/moUnchanged by 0.00 %
- Est rental Yield
- 6.91 %Increased by 30.87 %
- Crime Rate
- 7.00 %Unchanged by 0.00 %
Agent Activity
Phillips George Estate Agents created the listing.
Nearby Schools
| Name | Type | Ofsted | Distance |
|---|---|---|---|
| Water Leys Primary School | Community School | Good | 0.54 KM |
| Wigston Academy | Academy Converter | Requires improvement | 0.77 KM |
| Wigston College | Academy Converter | Good | 0.82 KM |
| Wigston Birkett House Community Special School | Academy Special Converter | Outstanding | 0.92 KM |
| Little Hill Primary | Academy Converter | 1.03 KM |
Images
Nearby Streets
| Name | Average Price | Average Sqft | Distance |
|---|---|---|---|
| Aylestone Road | £ 0 | 0 | 0.00 KM |
| Rutland Avenue | £ 0 | 0 | 0.00 KM |
| Elizabeth Crescent | £ 0 | 0 | 0.00 KM |
| Kenneth Gamble Court | £ 250,000 | 0 | 0.00 KM |
| The Crescent | £ 0 | 0 | 0.00 KM |
Nearby Transport
| Name | NLC | TLC | Distance |
|---|---|---|---|
| South Wigston | 1949 | SWS | 1.92 KM |
| Leicester | 1947 | LEI | 4.82 KM |
| Narborough | 1881 | NBR | 9.63 KM |
Nearby Listings
| Address | Price | Type | Score | Distance |
|---|---|---|---|---|
| Orson Drive, Wigston, Leicester | £ 260,000 | BUY | 6 / 10 | 0.00 KM |
| Rolleston Road, Wigston | £ 240,000 | BUY | 6 / 10 | 0.11 KM |
| Rolleston Road, Wigston, Leicester | £ 329,950 | BUY | 6 / 10 | 0.14 KM |
| Aylestone Lane, Wigston, LE18 | £ 300,000 | BUY | Unknown | 0.15 KM |
| Aylestone Lane, Wigston, Leicestershire, LE18 | £ 190,000 | BUY | 6 / 10 | 0.15 KM |
Nearby Properties
| Address | Price | Distance |
|---|---|---|
| 42 Rolleston Road | £ 240,000 | 0.12 KM |
| 60 Rolleston Road | £ 248,000 | 0.12 KM |
| 41 Rolleston Road | £ 220,000 | 0.12 KM |
| 43 Rolleston Road | £ 114,000 | 0.12 KM |
| 128 Aylestone Lane | £ 180,000 | 0.13 KM |