Nelson Road, Worcester, Worcestershire, WR2 5BL
By Platinum Property Support Ltd
£ 320,000
Reviews
2 out of 5 stars
Platinum Property Support Ltd says ..
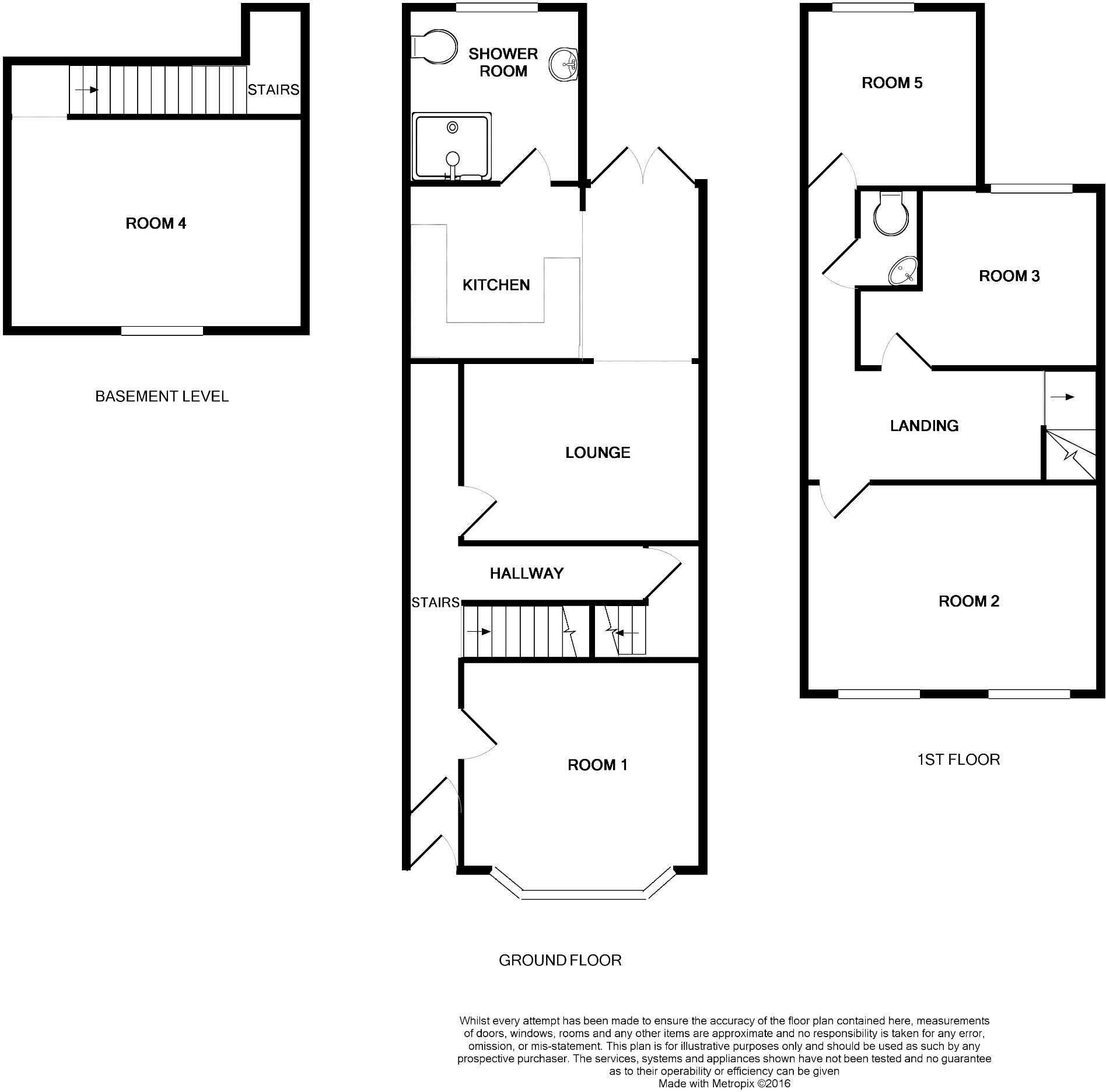
Don't miss this fantastic opportunity to own a student-focused, 5-bedroom terraced house just minutes away from the University of Worcester, St. John's Campus
Property Oracle says ..
This 5-bedroom terraced house on Nelson Road, Worcester, presents itself as a mixed-bag property. Its key advantage lies in its location, near the University of Worcester and multiple schools, making it potentially attractive to both students and families. Its proximity to two train stations, Worcester Foregate Street and Shrub Hill, further adds to its convenience. However, the lack of details on the property’s plot size indicates there’s likely no garden, which could deter families looking for outdoor space. The photos show the interior to be in acceptable condition, yet not renovated, hinting that a significant amount of refurbishment might be required to elevate it to a higher standard. The price, at £320,000, appears slightly inflated given the average price of comparable properties in surrounding areas. This is compounded by the absence of significant land and the evident need for refurbishment. While its location is undeniably a selling point, potential buyers must carefully weigh the property’s current state and the cost of any necessary improvements against its asking price. Further investigation into the property’s specifics, a professional survey and potentially a valuation would be beneficial for any prospective purchaser.
Therefore, we give this property 4 / 10. *Disclaimer: This is our option and does constitute a recommendation or financial advice. Do your own research. *
- Price
- 6
- Condition
- 5
- Location
- 7
- Land
- 1
- Bedrooms
- 5
- Bathrooms
- 2
- Sqft (est)
- 1,000.00
The heatmap indicates the level of crime in the area. The color of the heatmap indicates the crime severity and recency.
Metrics Year-on-Year
- Average area value
- 323,333.00 £Decreased by 1.15 %
- Est sale value
- 277,000.00 £Decreased by 7.05 %
- Average area rental value
- 627.00 £/moDecreased by 17.93 %
- Est letting value
- 0.00 £/mo
- Est rental Yield
- 2.33 %Decreased by 16.79 %
- Crime Rate
- 9.00 %Unchanged by 0.00 %
Agent Activity
Platinum Property Support Ltd created the listing.
Nearby Schools
| Name | Type | Ofsted | Distance |
|---|---|---|---|
| Perryfields Primary Pupil Referral Unit | Pupil Referral Unit | Outstanding | 0.20 KM |
| Our Lady Queen Of Peace Catholic Primary | Voluntary Aided School | Good | 0.24 KM |
| St Clement'S Cofe Primary | Academy Converter | 0.36 KM | |
| Christopher Whitehead Language College | Academy Converter | Good | 0.58 KM |
| Pitmaston Primary School | Community School | Outstanding | 0.72 KM |
Images
Nearby Streets
| Name | Average Price | Average Sqft | Distance |
|---|---|---|---|
| Graham Road | £ 197,500 | 0 | 0.00 KM |
| Pearman Walk | £ 0 | 0 | 0.00 KM |
| Alexander Road | £ 0 | 0 | 0.00 KM |
| Holywell Hill | £ 0 | 0 | 0.00 KM |
| Barn Close | £ 0 | 0 | 0.00 KM |
Nearby Transport
| Name | NLC | TLC | Distance |
|---|---|---|---|
| Worcester Foregate Street | 4893 | WOF | 1.86 KM |
| Worcester Shrub Hill | 4891 | WOS | 3.15 KM |
| Worcestershire Parkway | 6580 | WOP | 9.32 KM |
Nearby Listings
| Address | Price | Type | Score | Distance |
|---|---|---|---|---|
| Nelson Road, Worcester, Worcestershire, WR2 5BL | £ 320,000 | BUY | 4 / 10 | 0.00 KM |
| Nelson Road, Worcester, WR2 | £ 300,000 | BUY | 6 / 10 | 0.00 KM |
| Nelson Road, Worcester, WR2 | £ 305,000 | BUY | Unknown | 0.05 KM |
| Nelson Road, Worcester, Worcestershire, WR2 | £ 230,000 | BUY | Unknown | 0.05 KM |
| Nelson Road, Worcester | £ 300,000 | BUY | 5 / 10 | 0.06 KM |
Nearby Properties
| Address | Price | Distance |
|---|---|---|
| 17 Nelson Road | £ 205,000 | 0.05 KM |
| 37 Nelson Road | £ 196,000 | 0.05 KM |
| 23 Nelson Road | £ 183,000 | 0.05 KM |
| 43 Nelson Road | £ 189,950 | 0.05 KM |
| 25 Nelson Road | £ 185,000 | 0.05 KM |