Gander Green Lane, Cheam, Sutton, SM3
By Goodfellows
£ 500,000
Reviews
3 out of 5 stars
Goodfellows says ..
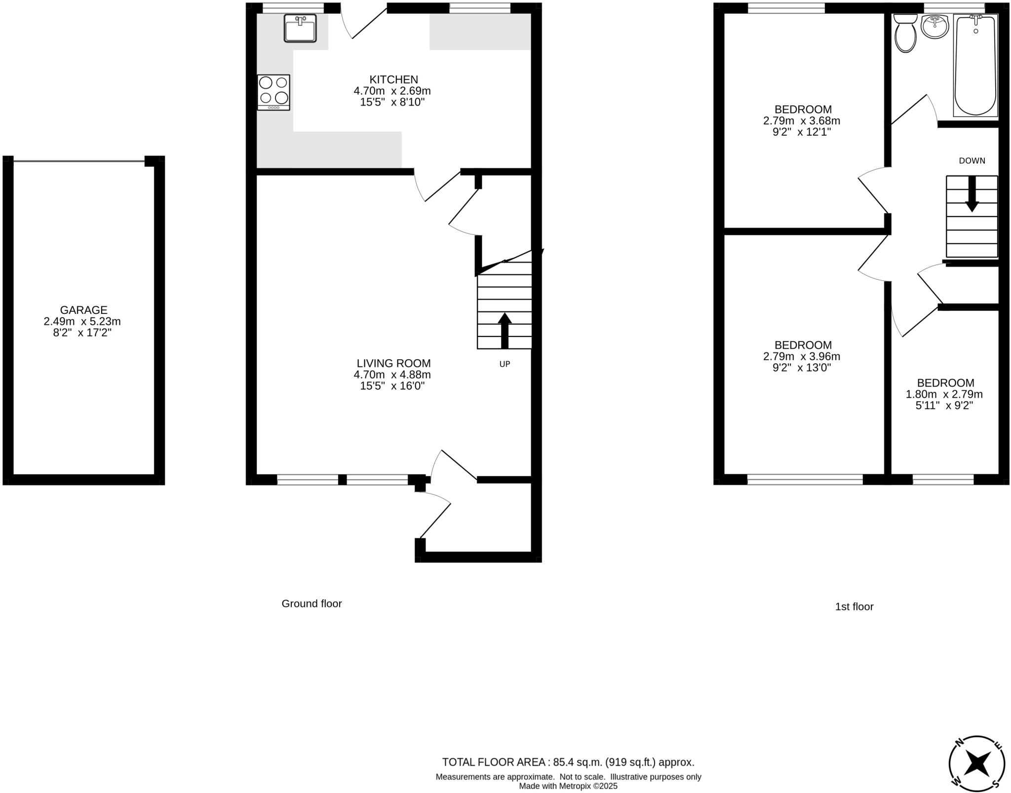
Situated in a good location for the growing family and those who require bus routes, is this well presented three bedroom terraced home. The current vendors have maintained the house to a good standard throughout, with underfloor heating in the lounge and also rewired and replumbed d...
Property Oracle says ..
This is a three-bedroom terraced house located on Gander Green Lane, in Stonecot, Sutton. The property is listed for £500,000. It is close to local schools and transport links. The property appears to be in good condition, with a modern kitchen and bathroom. It also benefits from a small rear garden. The price per square foot is below the local average.
Therefore, we give this property 6 / 10. *Disclaimer: This is our option and does constitute a recommendation or financial advice. Do your own research. *
- Price
- 7
- Condition
- 7
- Location
- 7
- Land
- 5
- Bedrooms
- 3
- Bathrooms
- 0
- Sqft (est)
- 919.24
The heatmap indicates the level of crime in the area. The color of the heatmap indicates the crime severity and recency.
Metrics Year-on-Year
- Average area value
- 584,167.00 £Increased by 7.05 %
- Est sale value
- 593,829.04 £Increased by 10.81 %
- Average area rental value
- 2,325.00 £/moIncreased by 3.33 %
- Est letting value
- 1,838.48 £/moUnchanged by 0.00 %
- Est rental Yield
- 4.78 %Decreased by 3.43 %
- Crime Rate
- 9.00 %Unchanged by 0.00 %
Agent Activity
Goodfellows created the listing.
Nearby Schools
| Name | Type | Ofsted | Distance |
|---|---|---|---|
| Brookfield Primary Academy | Academy Converter | Good | 0.33 KM |
| St Cecilia'S Catholic Primary School | Voluntary Aided School | Outstanding | 0.46 KM |
| Green Oak Children'S Centre (Formally Stonecot And Worcester Park Children'S Centre) | Children's Centre | 0.49 KM | |
| Green Oak Children'S Centre (Formally Nonsuch And Cheam Sure Start Children'S Centre) | Children's Centre | 0.49 KM | |
| Cheam Park Farm Primary Academy | Academy Converter | Outstanding | 0.56 KM |
Images
Nearby Streets
| Name | Average Price | Average Sqft | Distance |
|---|---|---|---|
| Westbourne Avenue | £ 1,990,000 | 0 | 0.00 KM |
| London Road | £ 239,000 | 0 | 0.00 KM |
| Trafalgar Avenue | £ 396,250 | 0 | 0.00 KM |
| Beeches Road | £ 465,438 | 0 | 0.00 KM |
| St Cecilia's Close | £ 0 | 0 | 0.00 KM |
Nearby Transport
| Name | NLC | TLC | Distance |
|---|---|---|---|
| West Sutton | 5293 | WSU | 1.97 KM |
| Sutton Common | 5436 | SUC | 2.41 KM |
| St Helier | 5290 | SIH | 2.49 KM |
| Cheam | 5352 | CHE | 2.56 KM |
| Morden South | 5291 | MDS | 2.86 KM |
Nearby Listings
| Address | Price | Type | Score | Distance |
|---|---|---|---|---|
| Gander Green Lane, Cheam, Sutton, SM3 | £ 500,000 | BUY | 6 / 10 | 0.00 KM |
| Gander Green Lane, Cheam, Sutton, SM3 | £ 450,000 | BUY | 6 / 10 | 0.02 KM |
| Gander Green Lane, SUTTON, Surrey, SM3 | £ 305,000 | BUY | 5 / 10 | 0.02 KM |
| Gander Green Lane, Sutton, SM3 | £ 450,000 | BUY | 6 / 10 | 0.02 KM |
| Gander Green Lane, Cheam, Sutton | £ 525,000 | BUY | 6 / 10 | 0.02 KM |
Nearby Properties
| Address | Price | Distance |
|---|---|---|
| 474 Gander Green Lane | £ 206,000 | 0.02 KM |
| 454 Gander Green Lane | £ 335,000 | 0.02 KM |
| 458 Gander Green Lane | £ 407,500 | 0.02 KM |
| 488 Gander Green Lane | £ 82,000 | 0.02 KM |
| 486 Gander Green Lane | £ 231,000 | 0.02 KM |