Chancellors says ..
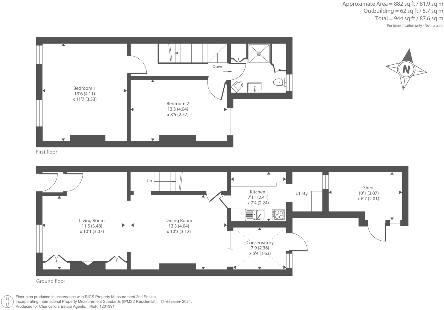
Set in this popular location, convenient for Reading Centre, The Oracle with its shops, bars and restaurants and Reading Station is this two double bedroom terrace with first floor bathroom, open living/dining space, modern Kitchen with utility space, garden room and parking to rear
Property Oracle says ..
This two-bedroom terraced house in Reading’s Katesgrove area presents a solid, if unspectacular, investment opportunity. Its key strengths lie in its convenient location, offering easy access to Reading town centre, the Oracle shopping centre and Reading railway station. This ensures excellent access to amenities, transport links, and employment opportunities. The property itself, based on the photographs, appears to be reasonably well-maintained and in a move-in ready condition. The interior shows a generally clean and tidy presentation, however, some aspects, including the bathroom, seem a little dated and might benefit from modernisation to enhance its overall appeal. The property’s garden is a plus, providing some outdoor space, although it’s not extensive. While the property’s size isn’t fully specified, comparable nearby properties suggest the asking price of £350,000 is in line with market expectations. Overall, prospective buyers should consider balancing the property’s location benefits against the need for potential future improvements and its relatively compact garden. While not a luxurious property, it offers comfortable living in a well-connected location. This makes it an appropriate investment for those prioritizing convenience and location over extensive luxury features. The lack of definitive square footage information for both the house and the plot size is a noticeable omission that limits a more precise analysis of the price-per-square-foot value. The age and energy efficiency of the property, if available, could give a more holistic picture of its value proposition.
Therefore, we give this property 6 / 10. *Disclaimer: This is our option and does constitute a recommendation or financial advice. Do your own research. *
- Price
- 7
- Condition
- 6
- Location
- 7
- Land
- 4
- Bedrooms
- 2
- Bathrooms
- 1
- Sqft (est)
- 944.00
The heatmap indicates the level of crime in the area. The color of the heatmap indicates the crime severity and recency.
Metrics Year-on-Year
- Average area value
- 327,000.00 £Increased by 3.23 %
- Est sale value
- 499,376.00 £Increased by 39.21 %
- Average area rental value
- 1,287.00 £/moDecreased by 3.31 %
- Est letting value
- 1,888.00 £/moIncreased by 100.00 %
- Est rental Yield
- 4.72 %Decreased by 6.35 %
- Crime Rate
- 2.00 %Unchanged by 0.00 %
Agent Activity
Chancellors created the listing.
Nearby Schools
| Name | Type | Ofsted | Distance |
|---|---|---|---|
| The Abbey School Reading | Other Independent School | 0.43 KM | |
| Kendrick School | Academy Converter | 0.45 KM | |
| New Christ Church Church Of England Primary School | Academy Converter | 0.50 KM | |
| Trinity Christian School | Other Independent School | 0.55 KM | |
| The Deenway Montessori School | Other Independent School | Good | 0.61 KM |
Images
Nearby Streets
| Name | Average Price | Average Sqft | Distance |
|---|---|---|---|
| Highgrove Terrace | £ 0 | 0 | 0.00 KM |
| Mount Street | £ 0 | 0 | 0.00 KM |
| London Road | £ 0 | 0 | 0.00 KM |
| Queens Road | £ 368,000 | 0 | 0.00 KM |
| Mill Lane | £ 0 | 0 | 0.00 KM |
Nearby Transport
| Name | NLC | TLC | Distance |
|---|---|---|---|
| Reading | 3149 | RDG | 1.42 KM |
| Reading West | 3160 | RDW | 2.81 KM |
| Earley | 5694 | EAR | 5.36 KM |
| Tilehurst | 3154 | TLH | 7.55 KM |
| Winnersh Triangle | 5698 | WTI | 8.34 KM |
Nearby Listings
| Address | Price | Type | Score | Distance |
|---|---|---|---|---|
| Reading, Berkshire, RG1 | £ 350,000 | BUY | 6 / 10 | 0.00 KM |
| 75 Mount Pleasant, Reading, Berkshire, RG1 2TF | £ 415,000 | BUY | 5 / 10 | 0.04 KM |
| 75 Mount Pleasant, Reading, Berkshire, RG1 2TF | £ 370,000 | BUY | 5 / 10 | 0.04 KM |
| Mount Pleasant, Reading | £ 270,000 | BUY | 5 / 10 | 0.05 KM |
| Mount Pleasant, Reading, RG1 | £ 400,000 | BUY | Unknown | 0.06 KM |
Nearby Properties
| Address | Price | Distance |
|---|---|---|
| 67 Mount Pleasant | £ 150,000 | 0.02 KM |
| 47 Mount Pleasant | £ 69,000 | 0.02 KM |
| 11 Mount Pleasant | £ 355,000 | 0.02 KM |
| 57 Mount Pleasant | £ 162,500 | 0.02 KM |
| 65 Mount Pleasant | £ 307,000 | 0.02 KM |