Focus says ..
Focus are pleased to present this Victorian end of terrace located in a peaceful no through road in the heart of Slough town with accommodation ideal for families or investors alike. Complete with off street parking this versatile property is currently set up as two one-bedroom leasehold apartmen...
Property Oracle says ..
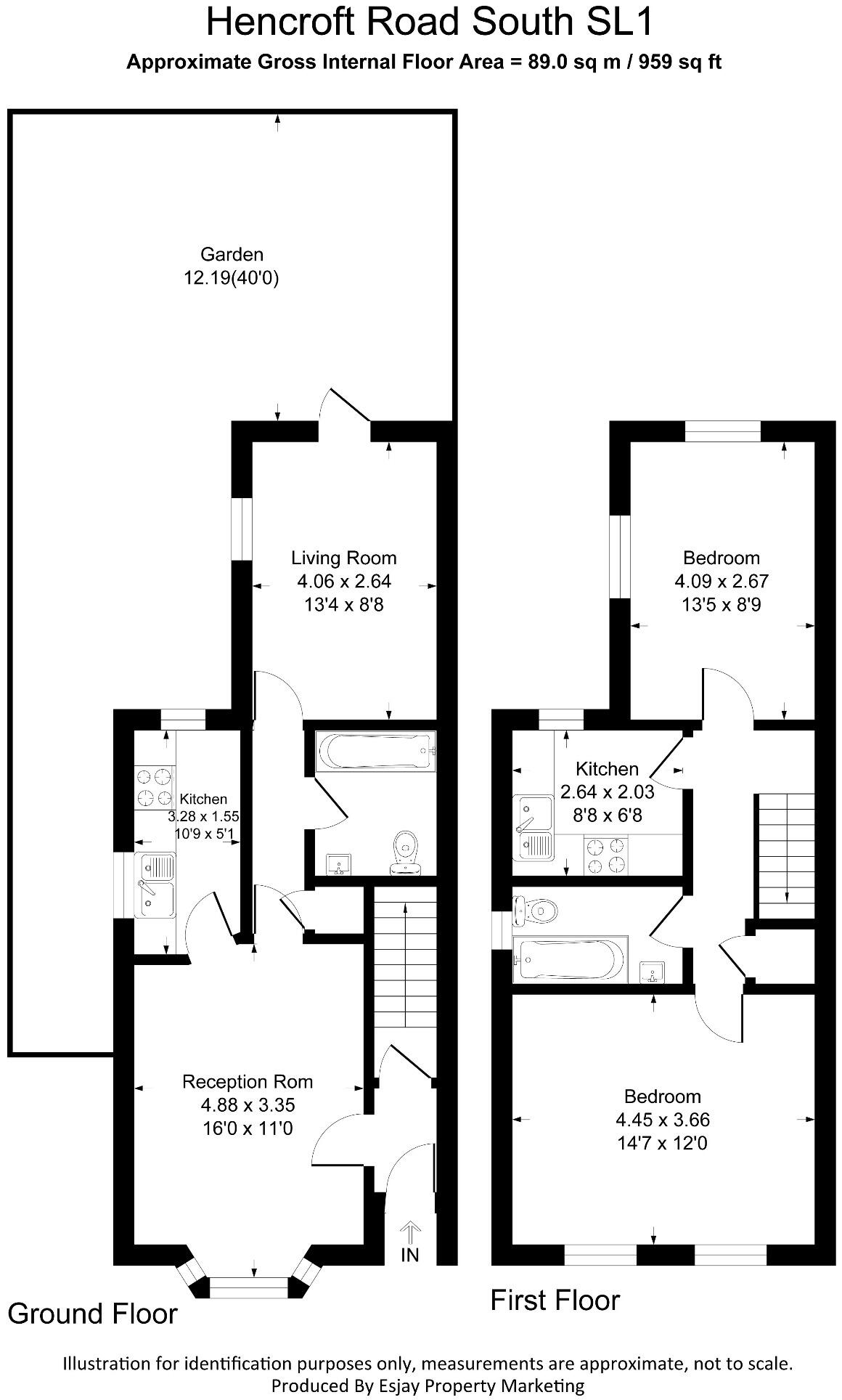
This property is located in Slough, Berkshire, and is a three-bedroom end of terrace house. The location benefits from being relatively close to Slough train station, providing convenient access to London and other areas. There are also several schools within a reasonable distance, including St. Mary’s Church of England Primary School and Littledown School, both rated as “Good” by Ofsted. The property itself appears to be in good condition based on the provided images. It benefits from a garden, which is a desirable feature for many buyers. The list price of £395,000 seems relatively high compared to the average house price in the area (£259,400) and the average price per square foot (£308). However, the property is larger than average (1042.55 sqft vs 840 sqft average), and the higher price might reflect this, as well as the good condition and the inclusion of a garden. More information on comparable properties would be needed to make a definitive judgment on the value.
Therefore, we give this property 7 / 10. *Disclaimer: This is our option and does constitute a recommendation or financial advice. Do your own research. *
- Price
- 6
- Condition
- 8
- Location
- 7
- Land
- 7
- Bedrooms
- 3
- Bathrooms
- 1
- Sqft (est)
- 1,042.55
- Lot (est)
- 959.00
The heatmap indicates the level of crime in the area. The color of the heatmap indicates the crime severity and recency.
Metrics Year-on-Year
- Average area value
- 487,124.00 £Increased by 94.35 %
- Est sale value
- 642,210.80 £Increased by 112.41 %
- Average area rental value
- 1,220.00 £/moIncreased by 6.46 %
- Est letting value
- 1,042.55 £/moUnchanged by 0.00 %
- Est rental Yield
- 3.01 %Decreased by 45.17 %
- Crime Rate
- 12.00 %Unchanged by 0.00 %
Agent Activity
Focus created the listing.
Nearby Schools
| Name | Type | Ofsted | Distance |
|---|---|---|---|
| Yew Tree Road Children'S Centre | Children's Centre | 0.41 KM | |
| St Mary'S Church Of England Primary School | Voluntary Controlled School | Good | 0.51 KM |
| Long Close School | Other Independent School | 0.69 KM | |
| Littledown School | Academy Special Converter | Good | 1.20 KM |
| Upton Court Grammar School | Academy Converter | 1.29 KM |
Images
Nearby Streets
| Name | Average Price | Average Sqft | Distance |
|---|---|---|---|
| Charter Close | £ 0 | 0 | 0.00 KM |
| Park Street | £ 0 | 0 | 0.00 KM |
| Grove Close | £ 210,000 | 0 | 0.00 KM |
| Castle Street | £ 0 | 0 | 0.00 KM |
| Kenilworth Close | £ 225,000 | 0 | 0.00 KM |
Nearby Transport
| Name | NLC | TLC | Distance |
|---|---|---|---|
| Slough | 3172 | SLO | 0.74 KM |
| Datchet | 5668 | DAT | 2.76 KM |
| Windsor And Eton Riverside | 5672 | WNR | 2.83 KM |
| Windsor And Eton Central | 3175 | WNC | 3.31 KM |
| Sunnymeads | 5675 | SNY | 5.19 KM |
Nearby Listings
| Address | Price | Type | Score | Distance |
|---|---|---|---|---|
| Hencroft Street South | £ 395,000 | BUY | 7 / 10 | 0.00 KM |
| Hencroft Street South, Slough, Berkshire | £ 130,000 | BUY | 4 / 10 | 0.01 KM |
| Hencroft Street South, Slough, Berkshire | £ 125,000 | BUY | 4 / 10 | 0.01 KM |
| Hencroft Street South, Slough | £ 120,000 | BUY | 5 / 10 | 0.01 KM |
| Flat 6, 56 Hencroft Street South, Slough, Berkshire SL1 1RE | £ 100,000 | BUY | 4 / 10 | 0.01 KM |
Nearby Properties
| Address | Price | Distance |
|---|---|---|
| 68 Hencroft Street South | £ 117,000 | 0.01 KM |
| 48 Hencroft Street South | £ 144,000 | 0.01 KM |
| 82 Hencroft Street South | £ 250,000 | 0.01 KM |
| 38 Hencroft Street South | £ 160,000 | 0.01 KM |
| 68a Hencroft Street South | £ 141,000 | 0.01 KM |