Boxall Brown & Jones says ..
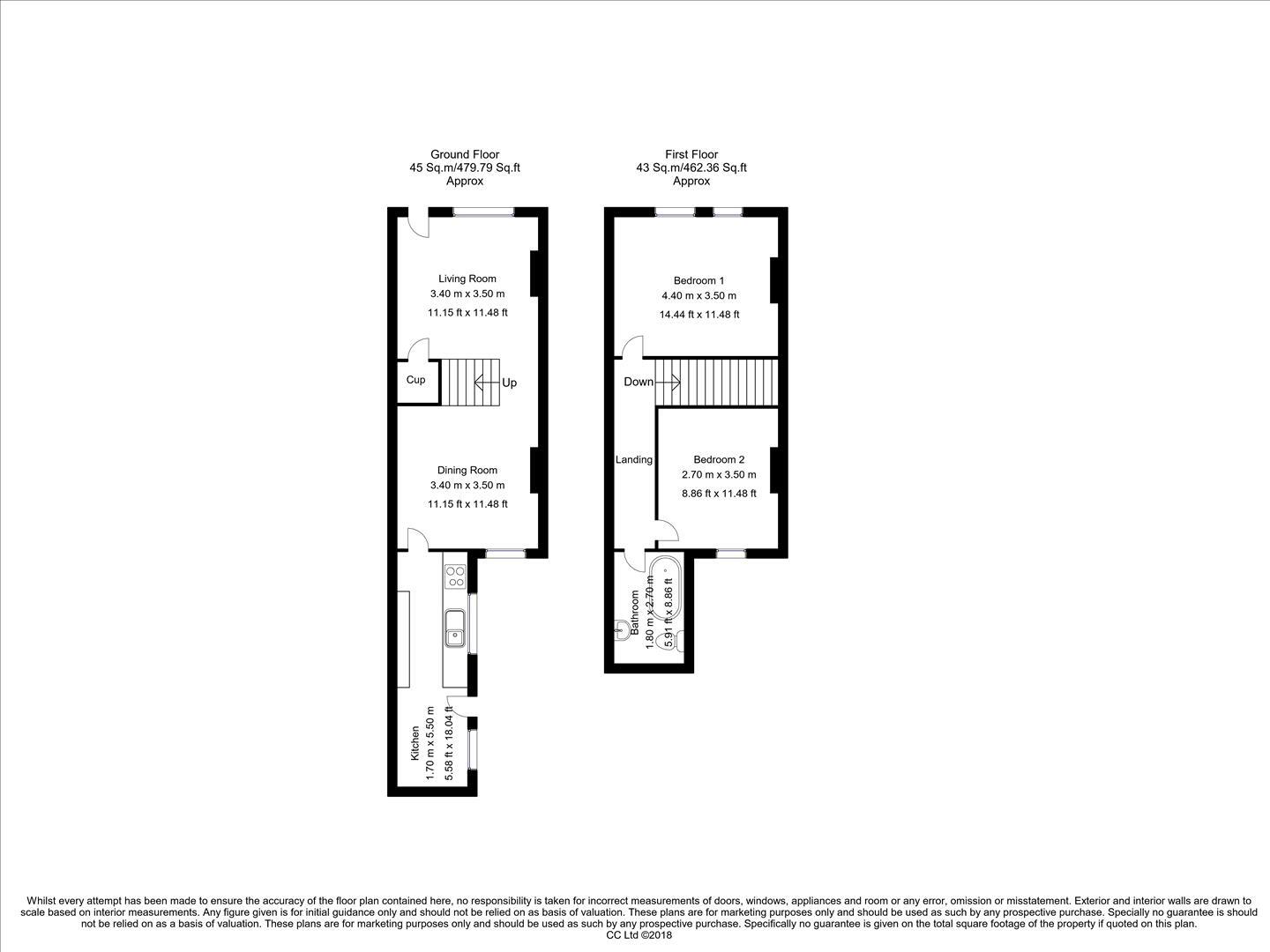
Situated within the heart of Derby, within close proximity to Derby city centre this is a spacious two bedroom mid terraced house which benefits from gas central heating, double glazing and yard area to the rear.
Property Oracle says ..
This two-bedroom terraced house in Derby is located on May Street, in the Abbey area. The property benefits from being close to Derby City Centre, offering convenient access to amenities and transport links. While the property shows signs of needing some modernisation, it does have a small rear garden. The list price of £129,950 seems reasonable when compared to other similar properties in the area, although a lack of square footage data for comparable properties makes a precise price per square foot comparison challenging. The condition of the property could be improved with some renovations and updating.
Therefore, we give this property 5 / 10. *Disclaimer: This is our option and does constitute a recommendation or financial advice. Do your own research. *
- Price
- 6
- Condition
- 5
- Location
- 7
- Land
- 3
- Bedrooms
- 2
- Bathrooms
- 1
- Sqft (est)
- 675.33
The heatmap indicates the level of crime in the area. The color of the heatmap indicates the crime severity and recency.
Metrics Year-on-Year
- Average area value
- 350,323.00 £Decreased by 1.18 %
- Est sale value
- 291,067.23 £Increased by 20.73 %
- Average area rental value
- 1,334.00 £/moDecreased by 2.49 %
- Est letting value
- 675.33 £/moUnchanged by 0.00 %
- Est rental Yield
- 4.57 %Decreased by 1.30 %
- Crime Rate
- 7.00 %Unchanged by 0.00 %
Agent Activity
Boxall Brown & Jones marked this listing as sold.
Boxall Brown & Jones created the listing.
Nearby Schools
| Name | Type | Ofsted | Distance |
|---|---|---|---|
| Becket Primary School | Community School | Good | 0.34 KM |
| Becket Children'S Centre | Children's Centre | 0.41 KM | |
| Firs Primary School | Academy Sponsor Led | 0.48 KM | |
| Babington Children'S Centre | Children's Centre | 0.53 KM | |
| Stonehill Nursery School | Local Authority Nursery School | Good | 0.58 KM |
Images
Nearby Streets
| Name | Average Price | Average Sqft | Distance |
|---|---|---|---|
| Summerbrook Court | £ 120,000 | 0 | 0.00 KM |
| Boyer Walk | £ 0 | 0 | 0.00 KM |
| Arbor Close | £ 119,950 | 0 | 0.00 KM |
| Boyer Street | £ 0 | 0 | 0.00 KM |
| Spa Court | £ 0 | 0 | 0.00 KM |
Nearby Transport
| Name | NLC | TLC | Distance |
|---|---|---|---|
| Peartree | 1687 | PEA | 2.58 KM |
| Derby | 1823 | DBY | 2.64 KM |
| Duffield | 1691 | DFI | 8.11 KM |
| Spondon | 1699 | SPO | 8.42 KM |
Nearby Listings
| Address | Price | Type | Score | Distance |
|---|---|---|---|---|
| 32 May StreetDerby | £ 129,950 | BUY | 5 / 10 | 0.00 KM |
| Riddings Street, Derby, DE22 | £ 136,000 | BUY | Unknown | 0.06 KM |
| Riddings Street, Derby | £ 125,000 | BUY | 5 / 10 | 0.06 KM |
| Riddings Street, Derby | £ 128,000 | BUY | 5 / 10 | 0.06 KM |
| Riddings Street, Derby | £ 130,000 | BUY | 5 / 10 | 0.06 KM |
Nearby Properties
| Address | Price | Distance |
|---|---|---|
| 61 May Street | £ 75,000 | 0.06 KM |
| 21 May Street | £ 75,000 | 0.06 KM |
| 77 May Street | £ 125,000 | 0.06 KM |
| 39 May Street | £ 84,000 | 0.06 KM |
| 57 May Street | £ 57,500 | 0.06 KM |