Layfield Road, Gillingham, Medway, ME7 2QY
By eXp UK
£ 290,000
Reviews
3 out of 5 stars
eXp UK says ..
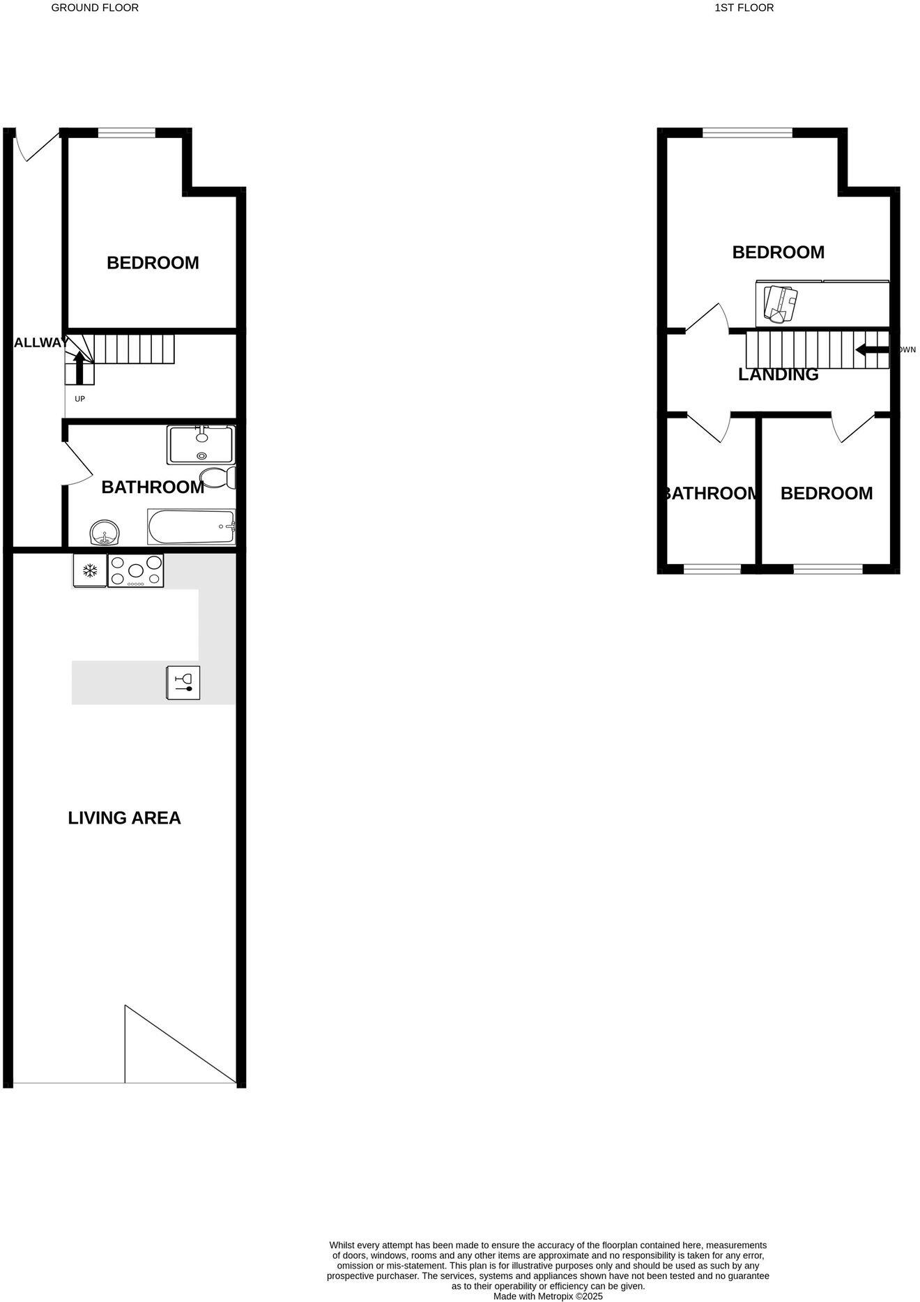
No Chain & Perfectly Extended – Your Dream Family Home Awaits! Step inside this stunning terraced home, beautifully transformed from a two-bedroom property into a modern family haven. The eye-catching rear extension creates a bright, contemporary open-plan living and kitchen s...
Property Oracle says ..
This is a well-presented terraced property in Gillingham North. The property benefits from a modern kitchen and bathrooms, a good-sized garden, and is located close to schools and transportation. The property is in good condition and appears to be move-in ready. While the list price is above the average for the area, the condition and features of the property may justify the higher price. Overall, this property would make a good home for families or commuters looking for a well-maintained property in a convenient location.
Therefore, we give this property 7 / 10. *Disclaimer: This is our option and does constitute a recommendation or financial advice. Do your own research. *
- Price
- 7
- Condition
- 8
- Location
- 7
- Land
- 7
- Bedrooms
- 3
- Bathrooms
- 2
- Sqft (est)
- 580.00
The heatmap indicates the level of crime in the area. The color of the heatmap indicates the crime severity and recency.
Metrics Year-on-Year
- Average area value
- 258,294.00 £Increased by 3.99 %
- Est sale value
- 216,340.00 £Increased by 24.75 %
- Average area rental value
- 1,321.00 £/moDecreased by 18.41 %
- Est letting value
- 580.00 £/moUnchanged by 0.00 %
- Est rental Yield
- 6.14 %Decreased by 21.48 %
- Crime Rate
- 4.00 %Unchanged by 0.00 %
Agent Activity
eXp UK created the listing.
Nearby Schools
| Name | Type | Ofsted | Distance |
|---|---|---|---|
| Saxon Way Primary School | Academy Sponsor Led | Good | 0.75 KM |
| Saxon Way Primary School And Children'S Centre | Children's Centre | 0.75 KM | |
| Rivermead School | Academy Special Converter | Good | 0.78 KM |
| The Gfc School | Other Independent School | Good | 0.99 KM |
| St Mary'S Catholic Primary School | Voluntary Aided School | Good | 1.23 KM |
Images
Nearby Streets
| Name | Average Price | Average Sqft | Distance |
|---|---|---|---|
| GB38 | £ 0 | 0 | 0.00 KM |
| Redfern Avenue | £ 300,000 | 0 | 0.00 KM |
| Thirlmere Close | £ 0 | 0 | 0.00 KM |
| Greenfield Road | £ 0 | 0 | 0.00 KM |
| Woodlands Road | £ 0 | 0 | 0.00 KM |
Nearby Transport
| Name | NLC | TLC | Distance |
|---|---|---|---|
| Gillingham (Kent) | 5169 | GLM | 1.90 KM |
| Chatham | 5199 | CTM | 5.13 KM |
| Rainham (Kent) | 5177 | RAI | 5.78 KM |
| Rochester | 5203 | RTR | 6.21 KM |
| Strood (Kent) | 5191 | SOO | 7.30 KM |
Nearby Listings
| Address | Price | Type | Score | Distance |
|---|---|---|---|---|
| Layfield Road, Gillingham, Medway, ME7 2QY | £ 290,000 | BUY | 7 / 10 | 0.00 KM |
| Layfield Road, Gillingham | £ 240,000 | BUY | 3 / 10 | 0.01 KM |
| Court Lodge Road, Gillingham, Kent, ME7 | £ 160,000 | BUY | 5 / 10 | 0.13 KM |
| Court Lodge Road, Gillingham, Kent, ME7 | £ 260,000 | BUY | 5 / 10 | 0.20 KM |
| Court Lodge Road, Gillingham, Kent, ME7 | £ 250,000 | BUY | 6 / 10 | 0.20 KM |
Nearby Properties
| Address | Price | Distance |
|---|---|---|
| 21 Layfield Road | £ 195,000 | 0.01 KM |
| 5 Layfield Road | £ 194,000 | 0.01 KM |
| 57 Layfield Road | £ 102,000 | 0.01 KM |
| 27 Layfield Road | £ 92,570 | 0.01 KM |
| 53 Layfield Road | £ 240,000 | 0.01 KM |