Bumblebee says ..
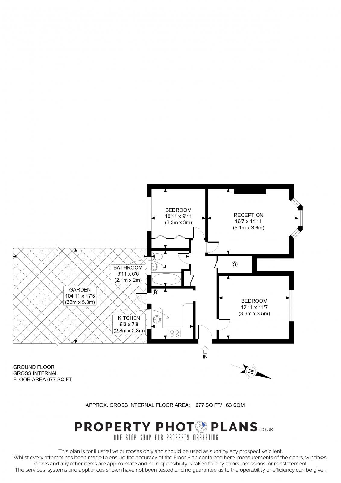
This two-bedroom flat in London offers a practical layout with one bathroom and a reception area. The property features a kitchen and a garden, providing outdoor space. Located in a convenient area, it offers easy access to local amenities.
Property Oracle says ..
This is a two-bedroom flat located in The Fairway, Hale, Barnet. The property is in need of renovation, particularly the bathroom and kitchen. It benefits from a garden and is located close to good schools and transport links. The asking price of £340,000 seems reasonable given the condition and location.
Therefore, we give this property 6 / 10. *Disclaimer: This is our option and does constitute a recommendation or financial advice. Do your own research. *
- Price
- 7
- Condition
- 4
- Location
- 7
- Land
- 7
- Bedrooms
- 2
- Bathrooms
- 1
- Sqft (est)
- 567.98
- Lot (est)
- 1,825.96
The heatmap indicates the level of crime in the area. The color of the heatmap indicates the crime severity and recency.
Metrics Year-on-Year
- Average area value
- 758,663.00 £Increased by 3.95 %
- Est sale value
- 270,358.48 £Decreased by 26.99 %
- Average area rental value
- 2,364.00 £/moDecreased by 11.43 %
- Est letting value
- 567.98 £/moDecreased by 50.00 %
- Est rental Yield
- 3.74 %Decreased by 14.81 %
- Crime Rate
- 7.00 %Unchanged by 0.00 %
Agent Activity
Bumblebee created the listing.
Nearby Schools
| Name | Type | Ofsted | Distance |
|---|---|---|---|
| Fairway Primary School And Children'S Centre | Community School | Good | 0.07 KM |
| Fairway Primary School And Children'S Centre | Children's Centre | 0.09 KM | |
| Northway School | Community Special School | Outstanding | 0.21 KM |
| Courtland School | Community School | Outstanding | 0.44 KM |
| Mill Hill County High School | Academy Converter | Good | 1.01 KM |
Images
Nearby Streets
| Name | Average Price | Average Sqft | Distance |
|---|---|---|---|
| Marsh Lane | £ 2,044,158 | 0 | 0.00 KM |
| Manor Drive | £ 925,000 | 0 | 0.00 KM |
| Kenilworth Road | £ 595,000 | 0 | 0.00 KM |
| Limes Avenue | £ 999,000 | 0 | 0.00 KM |
| Nan Clark's Lane | £ 0 | 0 | 0.00 KM |
Nearby Transport
| Name | NLC | TLC | Distance |
|---|---|---|---|
| Mill Hill Broadway | 1527 | MIL | 1.74 KM |
| Elstree And Borehamwood | 1542 | ELS | 3.91 KM |
| Hendon | 1522 | HEN | 5.58 KM |
| Kenton | 1399 | KNT | 8.36 KM |
| South Kenton | 1453 | SOK | 8.53 KM |
Nearby Listings
| Address | Price | Type | Score | Distance |
|---|---|---|---|---|
| London, NW7 | £ 340,000 | BUY | 6 / 10 | 0.00 KM |
| 2 Bedroom Ground Floor Maisonette in NW7 | £ 340,000 | BUY | 6 / 10 | 0.00 KM |
| The Fairway, London, NW7 | £ 340,000 | BUY | 6 / 10 | 0.03 KM |
| Laleham Avenue, London, NW7 | £ 500,000 | BUY | 7 / 10 | 0.12 KM |
| Laleham Avenue, Mill Hill, London, NW7 | £ 315,000 | BUY | Unknown | 0.14 KM |
Nearby Properties
| Address | Price | Distance |
|---|---|---|
| 75 Fernside Avenue | £ 170,000 | 0.08 KM |
| 80 The Fairway | £ 270,000 | 0.08 KM |
| 52a The Fairway | £ 137,000 | 0.08 KM |
| 108 The Fairway | £ 175,000 | 0.08 KM |
| 92 The Fairway | £ 182,000 | 0.08 KM |