PA
Farm Road, Winchmore Hill, N21
By Paul Simon - Lettings
£ 320,000
Reviews
3 out of 5 stars
Paul Simon - Lettings says ..
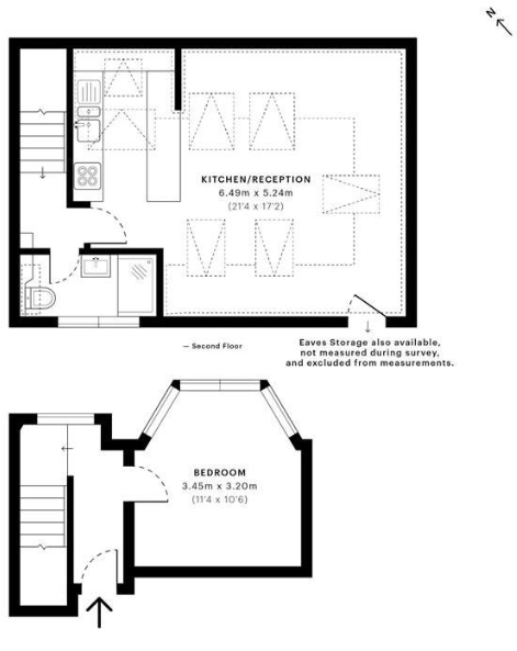
*** Charming Split-Level 1-Bedroom Flat in Winchmore Hill *** This delightful first floor split-level flat offers a unique layout, generous proportions, and an abundance of natural light throughout.Beautifully arranged over two levels, the property comprises a spacious double bedroom, a sleek mod...
Property Oracle says ..
Therefore, we give this property 6 / 10. *Disclaimer: This is our option and does constitute a recommendation or financial advice. Do your own research. *
- Price
- 7
- Condition
- 8
- Location
- 8
- Land
- 1
- Bedrooms
- 1
- Bathrooms
- 1
- Sqft (est)
- 484.91
The heatmap indicates the level of crime in the area. The color of the heatmap indicates the crime severity and recency.
Metrics Year-on-Year
- Average area value
- 462,500.00 £Decreased by 45.18 %
- Est sale value
- 344,286.10 £Increased by 12.52 %
- Average area rental value
- 2,156.00 £/moIncreased by 3.85 %
- Est letting value
- 1,454.73 £/moIncreased by 200.00 %
- Est rental Yield
- 5.59 %Increased by 89.49 %
- Crime Rate
- 5.00 %Unchanged by 0.00 %
from 843,704.00 £
from 305,978.21 £
from 2,076.00 £/mo
from 484.91 £/mo
from 2.95 %
from 5.00 %
Agent Activity
Paul Simon - Lettings created the listing.
Nearby Schools
| Name | Type | Ofsted | Distance |
|---|---|---|---|
| Winchmore School | Community School | Good | 0.21 KM |
| Highfield Primary School | Community School | Outstanding | 0.32 KM |
| Firs Farm Primary School | Community School | Good | 1.09 KM |
| St Paul'S Cofe Primary School | Voluntary Aided School | Outstanding | 1.10 KM |
| Grange Park Preparatory School | Other Independent School | 1.35 KM |
Images
Nearby Streets
| Name | Average Price | Average Sqft | Distance |
|---|---|---|---|
| Hyde Park Gardens | £ 775,000 | 0 | 0.00 KM |
| New River Path | £ 0 | 0 | 0.00 KM |
| Kent Road | £ 825,000 | 0 | 0.00 KM |
| Clarendon Way | £ 950,000 | 0 | 0.00 KM |
| The Rowans | £ 0 | 0 | 0.00 KM |
Nearby Transport
| Name | NLC | TLC | Distance |
|---|---|---|---|
| Winchmore Hill | 6024 | WIH | 1.21 KM |
| Grange Park | 6029 | GPK | 1.62 KM |
| Palmers Green | 6021 | PAL | 2.50 KM |
| Enfield Chase | 6010 | ENC | 2.63 KM |
| Bush Hill Park | 6913 | BHK | 2.73 KM |
Nearby Listings
| Address | Price | Type | Score | Distance |
|---|---|---|---|---|
| Farm Road, Winchmore Hill, N21 | £ 320,000 | BUY | 6 / 10 | 0.00 KM |
| Laburnum Grove, London, N21 | £ 635,000 | BUY | 6 / 10 | 0.08 KM |
| Laburnum Grove, Winchmore Hill, N21 | £ 850,000 | BUY | 7 / 10 | 0.09 KM |
| Laburnum Grove, London | £ 625,000 | BUY | 6 / 10 | 0.14 KM |
| Farm Road, N21 | £ 700,000 | BUY | Unknown | 0.19 KM |
Nearby Properties
| Address | Price | Distance |
|---|---|---|
| 77 Farm Road | £ 774,000 | 0.01 KM |
| 83 Farm Road | £ 320,000 | 0.04 KM |
| 5 Laburnum Grove | £ 380,000 | 0.07 KM |
| 15 Laburnum Grove | £ 308,000 | 0.07 KM |
| 18 Laburnum Grove | £ 119,000 | 0.08 KM |