JBrown says ..
A Stunning Newly Developed Georgian Townhouse in the Heart of Barnard Castle - This exquisite four-bedroom residence blends timeless elegance with modern luxury, featuring high-end finishes, a designer kitchen, and a spa-inspired master suite. Contact us to book an exclusive viewing.
Property Oracle says ..
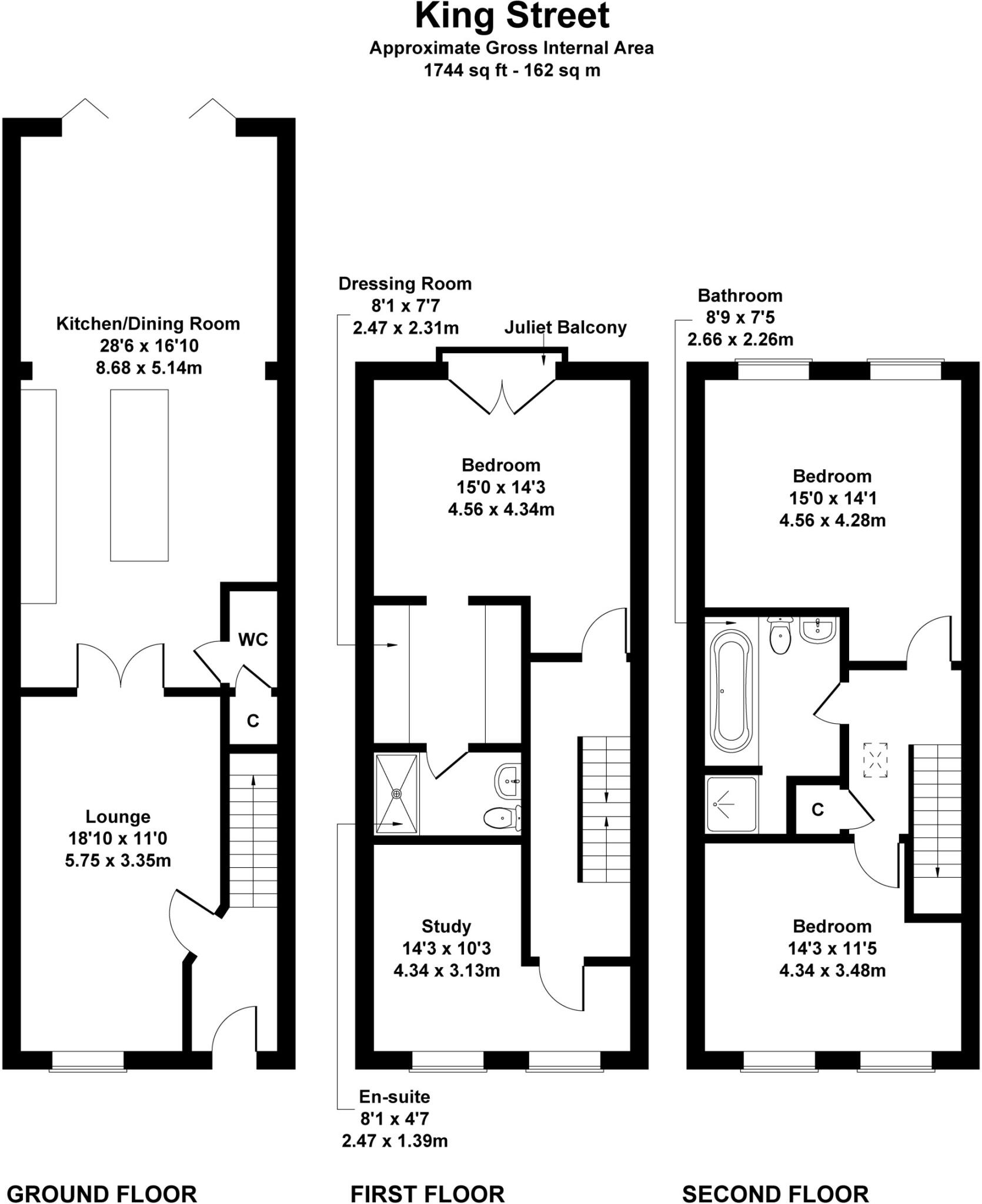
This property is a new build semi-detached house located on King Street in Barnard Castle, County Durham. The area has a mix of property types and price points, with nearby properties ranging from £36,000 to £250,000. The average price for a property in the area is £267,676, and the average price per square foot is £213. Several primary and secondary schools are within a reasonable distance of the property. While the provided images showcase a modern and well-finished interior, the lack of information on the plot size and square footage of the property makes it difficult to assess the value. The list price of £449,000 is significantly higher than other properties in the immediate vicinity, however, without knowing the size of the property it is difficult to comment on whether this is a reasonable price or not. More information is needed to provide a full and accurate assessment.
Therefore, we give this property 6 / 10. *Disclaimer: This is our option and does constitute a recommendation or financial advice. Do your own research. *
- Price
- 4
- Condition
- 10
- Location
- 7
- Land
- 5
- Bedrooms
- 4
- Bathrooms
- 2
The heatmap indicates the level of crime in the area. The color of the heatmap indicates the crime severity and recency.
Metrics Year-on-Year
- Average area value
- 331,665.00 £Increased by 2.13 %
- Average area rental value
- 1,000.00 £/moDecreased by 11.50 %
- Est rental Yield
- 3.62 %Decreased by 13.40 %
- Crime Rate
- 49.00 %Unchanged by 0.00 %
Agent Activity
JBrown created the listing.
Nearby Schools
| Name | Type | Ofsted | Distance |
|---|---|---|---|
| St Mary'S Roman Catholic Voluntary Aided Primary School, Barnard Castle | Voluntary Aided School | Good | 0.38 KM |
| Montalbo Nursery & Primary School | Community School | Good | 0.41 KM |
| Teesdale School And Sixth Form | Academy Sponsor Led | Outstanding | 1.20 KM |
| Barnard Castle School | Other Independent School | 1.25 KM | |
| Green Lane Church Of England Controlled Primary School | Voluntary Controlled School | Good | 1.36 KM |
Images
Nearby Streets
| Name | Average Price | Average Sqft | Distance |
|---|---|---|---|
| King Street | £ 206,271 | 0 | 0.00 KM |
| George Street | £ 0 | 0 | 0.00 KM |
| Hall Street | £ 135,350 | 0 | 0.00 KM |
| Grove Park | £ 111,429 | 0 | 0.00 KM |
| Well Yard | £ 100,000 | 0 | 0.00 KM |
Nearby Listings
| Address | Price | Type | Score | Distance |
|---|---|---|---|---|
| King Street, County Durham, DL12 | £ 449,000 | BUY | 6 / 10 | 0.00 KM |
| 17c King Street, Barnard Castle | £ 355,000 | BUY | 7 / 10 | 0.05 KM |
| King Street, Barnard Castle, County Durham, DL12 | £ 200,000 | BUY | 6 / 10 | 0.06 KM |
| King Street, Barnard Castle, Durham, DL12 8EP | £ 75,000 | BUY | 5 / 10 | 0.07 KM |
| Teesdale House, Galgate, Barnard Castle, County Durham, DL12 | £ 175,000 | BUY | 5 / 10 | 0.07 KM |
Nearby Properties
| Address | Price | Distance |
|---|---|---|
| 12 King Street | £ 152,000 | 0.04 KM |
| 14 King Street | £ 130,000 | 0.04 KM |
| 20 King Street | £ 175,000 | 0.04 KM |
| 16 King Street | £ 137,000 | 0.04 KM |
| 1 King Street | £ 36,000 | 0.04 KM |