Gascoigne Halman says ..
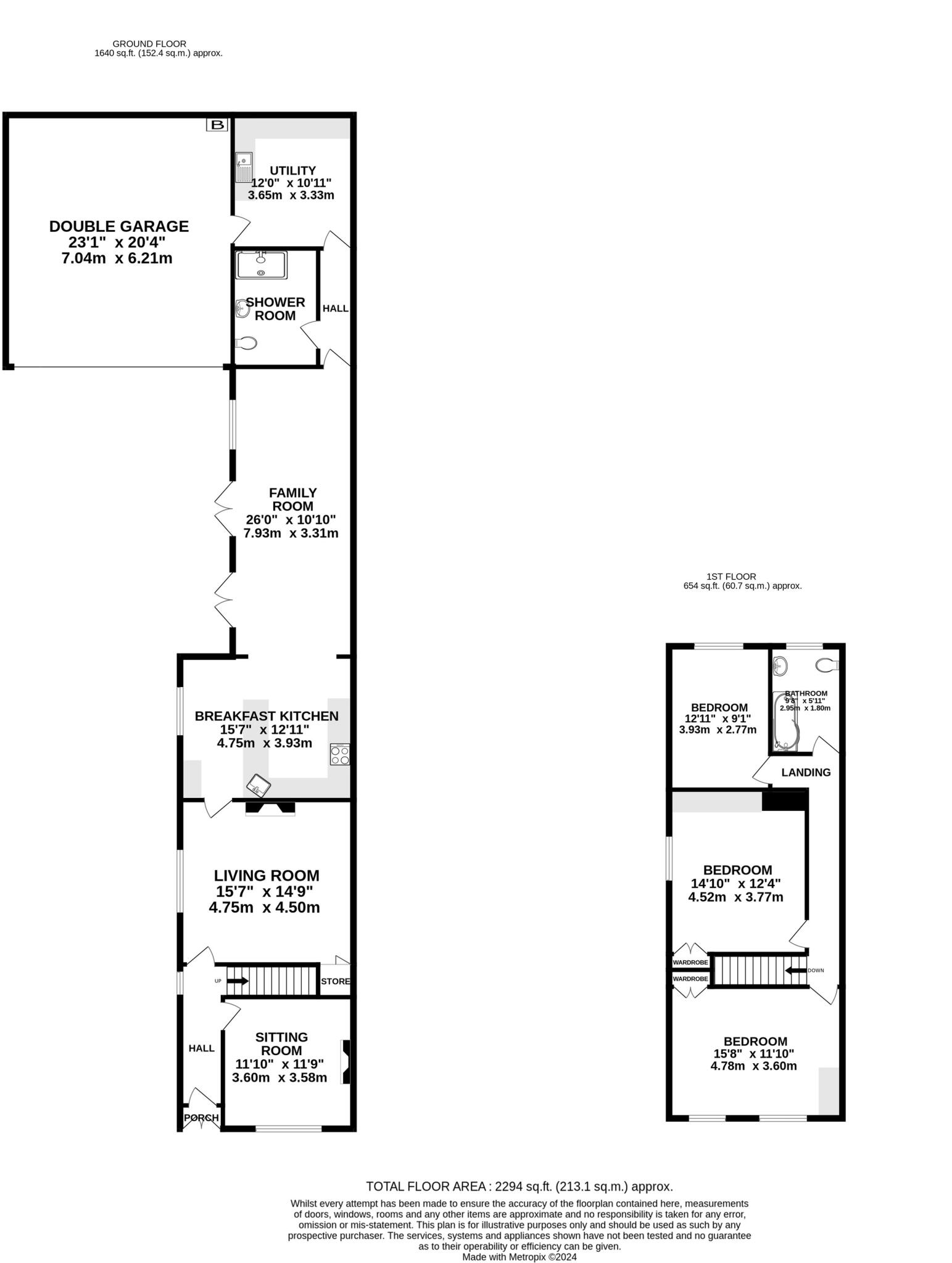
A unique and highly attractive period home set within private gated grounds boasting well-presented extended accommodation. Three reception rooms, three bedrooms and two bath/shower rooms, complemented by a large South facing garden and only a short walk to Wilmslow town centre.
Property Oracle says ..
Lacey Green is located in Wilmslow, Cheshire, a desirable area known for its excellent schools, transport links, and proximity to local amenities. The property itself is a semi-detached house with a sizable garden, suggesting a good land score. The images show the property to be in good condition, with a recently updated kitchen and modern bathrooms. There is evidence of some modernisation, but the property retains traditional character features.
The list price of £775,000 is higher than the average price for the area (£659,685), however, it’s important to consider the size of the property (1640 sqft) which is larger than the average (1429 sqft) and the fact that it includes a substantial garden. While comparable properties in the area have sold for less, the additional space and desirable location could justify the higher price. Further analysis of comparable properties with similar features and plot sizes would be beneficial to determine if the list price is reasonable.
Therefore, we give this property 8 / 10. *Disclaimer: This is our option and does constitute a recommendation or financial advice. Do your own research. *
- Price
- 7
- Condition
- 8
- Location
- 9
- Land
- 8
- Bedrooms
- 3
- Bathrooms
- 2
- Sqft (est)
- 1,640.00
- Lot (est)
- 1,640.00
The heatmap indicates the level of crime in the area. The color of the heatmap indicates the crime severity and recency.
Metrics Year-on-Year
- Average area value
- 674,983.00 £Increased by 4.16 %
- Est sale value
- 1,087,320.00 £Increased by 78.71 %
- Average area rental value
- 2,332.00 £/moIncreased by 16.72 %
- Est letting value
- 3,280.00 £/moIncreased by 100.00 %
- Est rental Yield
- 4.15 %Increased by 12.16 %
- Crime Rate
- 3.00 %Unchanged by 0.00 %
Agent Activity
Gascoigne Halman created the listing.
Nearby Schools
| Name | Type | Ofsted | Distance |
|---|---|---|---|
| Lacey Green Primary Academy | Academy Converter | 1.02 KM | |
| Oakenclough & Poynyon Children'S Centre | Children's Centre | 1.36 KM | |
| Handforth Grange Primary School | Academy Converter | 1.53 KM | |
| Wilmslow Preparatory School | Other Independent School | 1.68 KM | |
| Wilmslow High School | Community School | Good | 1.98 KM |
Images
Nearby Streets
| Name | Average Price | Average Sqft | Distance |
|---|---|---|---|
| Orchid Close | £ 0 | 0 | 0.00 KM |
| Poppy Road | £ 704,983 | 0 | 0.00 KM |
| Honeysuckle Close | £ 0 | 0 | 0.00 KM |
| Bramble Road | £ 850,000 | 0 | 0.00 KM |
| Prescott Road | £ 325,000 | 0 | 0.00 KM |
Nearby Transport
| Name | NLC | TLC | Distance |
|---|---|---|---|
| Wilmslow | 2774 | WML | 1.39 KM |
| Handforth | 2767 | HTH | 1.53 KM |
| Styal | 2868 | SYA | 1.94 KM |
| Heald Green | 2860 | HDG | 3.57 KM |
| Alderley Edge | 2760 | ALD | 4.15 KM |
Nearby Listings
| Address | Price | Type | Score | Distance |
|---|---|---|---|---|
| Lacey Green, Wilmslow | £ 775,000 | BUY | 8 / 10 | 0.00 KM |
| Lacey Green, Wilmslow | £ 695,000 | BUY | 7 / 10 | 0.01 KM |
| Stanneylands Road, Wilmslow | £ 850,000 | BUY | 7 / 10 | 0.09 KM |
| Stanneylands Road, Wilmslow, Cheshire, SK9 | £ 235,000 | BUY | 6 / 10 | 0.10 KM |
| Stanneylands Road, Wilmslow, Cheshire, SK9 | £ 845,000 | BUY | 7 / 10 | 0.15 KM |
Nearby Properties
| Address | Price | Distance |
|---|---|---|
| 91 Lacey Green | £ 354,000 | 0.04 KM |
| 122 Lacey Green | £ 690,000 | 0.04 KM |
| 124 Lacey Green | £ 179,950 | 0.04 KM |
| 118 Lacey Green | £ 545,000 | 0.04 KM |
| 1 Stanneylands Close | £ 277,000 | 0.12 KM |