Cooke & Co says ..
Cooke & Co are delighted to bring to the market this wonderful three-bedroom semi-detached home in the popular Newington area of Ramsgate. This property offers the ideal space for family living, with a layout designed for comfort and convenience. The home features a bright and airy living space,...
Property Oracle says ..
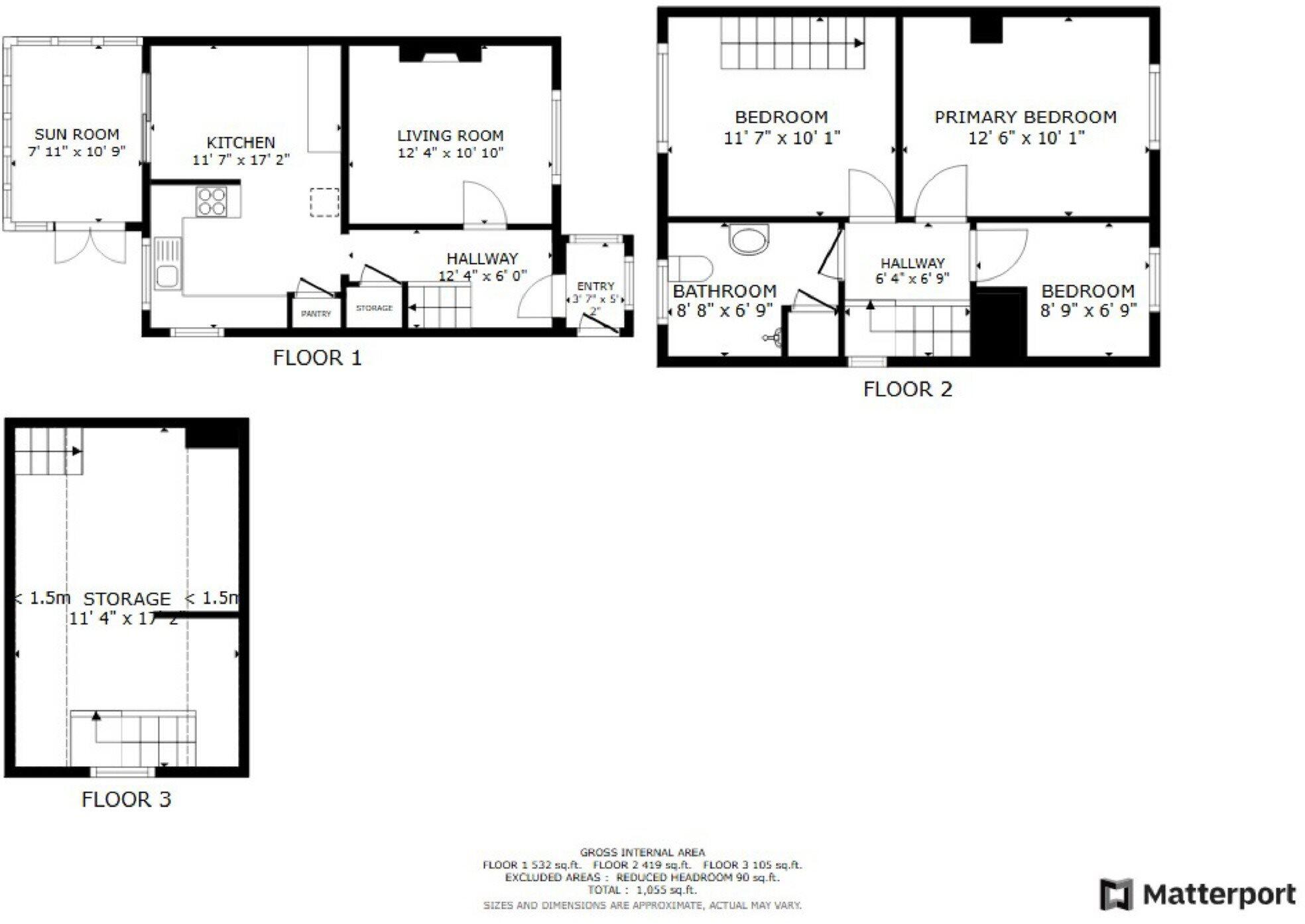
The property is located on Newington Road, Ramsgate, in the Thanet district of Kent. The area benefits from several nearby schools, including Small Haven School, Ramsgate Arts Primary School, Dame Janet Primary Academy, and Newington Community Primary School, all with good or outstanding Ofsted ratings. The proximity to these schools is a positive aspect for families. Ramsgate railway station is also within walking distance, providing convenient access to other towns and cities. Based on the provided images, the property appears to be in fair condition. While there are some signs of wear and tear, it doesn’t appear to be in need of significant renovation. The kitchen and bathroom seem relatively modern, but some areas could benefit from updating or a deep clean. The garden is visible in the photos and appears to be of average size for a semi-detached property in this area. Considering the list price of £299,999, the average price in the area of £378,541, and the average price per square foot of £437, the property seems reasonably priced. The property’s size of 1055 sqft is larger than the average of 866 sqft in the area. However, the lack of plot size information makes it difficult to make a definitive statement on value. The nearby comparable properties listed range from £80,000 to £325,000, indicating a significant price variation in the area. The absence of square footage data for the comparable properties makes direct comparison difficult. The property includes a shed and conservatory.
Therefore, we give this property 6 / 10. *Disclaimer: This is our option and does constitute a recommendation or financial advice. Do your own research. *
- Price
- 7
- Condition
- 6
- Location
- 8
- Land
- 5
- Bedrooms
- 3
- Bathrooms
- 1
- Sqft (est)
- 1,055.00
The heatmap indicates the level of crime in the area. The color of the heatmap indicates the crime severity and recency.
Metrics Year-on-Year
- Average area value
- 299,571.00 £Decreased by 28.06 %
- Est sale value
- 569,700.00 £Increased by 2.86 %
- Average area rental value
- 2,055.00 £/moIncreased by 21.17 %
- Est letting value
- 3,165.00 £/moIncreased by 50.00 %
- Est rental Yield
- 8.23 %Increased by 68.30 %
- Crime Rate
- 17.00 %Unchanged by 0.00 %
Agent Activity
Cooke & Co created the listing.
Nearby Schools
| Name | Type | Ofsted | Distance |
|---|---|---|---|
| Small Haven School | Other Independent Special School | Good | 0.20 KM |
| Ramsgate Arts Primary School | Free Schools | Good | 0.25 KM |
| Dame Janet Primary Academy | Academy Sponsor Led | Good | 0.31 KM |
| St Laurence In Thanet Church Of England Junior Academy | Academy Sponsor Led | Good | 0.84 KM |
| Newington Community Primary School | Community School | Outstanding | 0.92 KM |
Images
Nearby Streets
| Name | Average Price | Average Sqft | Distance |
|---|---|---|---|
| Lancaster Close | £ 77,667 | 0 | 0.00 KM |
| Surrey Close | £ 86,667 | 0 | 0.00 KM |
| Kingston Close | £ 165,333 | 0 | 0.00 KM |
| St. James Avenue | £ 308,767 | 0 | 0.00 KM |
| Conyngham Close | £ 240,000 | 0 | 0.00 KM |
Nearby Transport
| Name | NLC | TLC | Distance |
|---|---|---|---|
| Ramsgate | 5023 | RAM | 1.06 KM |
| Dumpton Park | 5034 | DMP | 2.95 KM |
| Broadstairs | 5006 | BSR | 4.10 KM |
| Margate | 5018 | MAR | 5.23 KM |
| Westgate-On-Sea | 5195 | WGA | 7.74 KM |
Nearby Listings
| Address | Price | Type | Score | Distance |
|---|---|---|---|---|
| Newington Road, Ramsgate | £ 299,999 | BUY | 6 / 10 | 0.00 KM |
| Granville Avenue, Ramsgate, CT12 | £ 279,995 | BUY | Unknown | 0.07 KM |
| Holbrook Drive, Ramsgate, Kent, CT12 | £ 200,000 | BUY | 5 / 10 | 0.07 KM |
| Lancaster Close, Ramsgate, Kent | £ 80,000 | BUY | 4 / 10 | 0.12 KM |
| Lancaster Close, Ramsgate, Kent | £ 79,750 | BUY | Unknown | 0.12 KM |
Nearby Properties
| Address | Price | Distance |
|---|---|---|
| 129 Newington Road | £ 215,000 | 0.03 KM |
| 164a Newington Road | £ 170,000 | 0.07 KM |
| 24 Holbrook Drive | £ 158,000 | 0.10 KM |
| 3a Holbrook Drive | £ 195,000 | 0.10 KM |
| 20 Holbrook Drive | £ 182,000 | 0.10 KM |