Wellington Gardens, Selsey, PO20
By Henry Adams
£ 425,000
Reviews
3 out of 5 stars
Henry Adams says ..
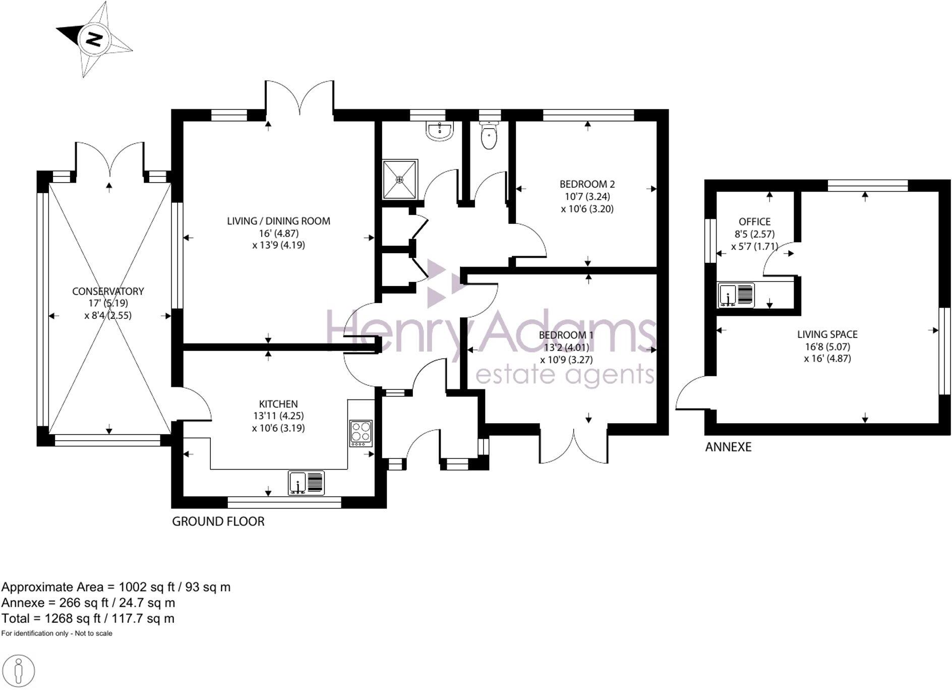
Detached bungalow offers 2 double bedrooms, a kitchen breakfast room leading to a conservatory. A detached studio with kitchenette and office, double driveway, gardens on 3 sides. Located near amenities and bus route. EPC-C, Council Tax-D
Property Oracle says ..
This is a detached bungalow in Selsey South, Chichester. The property has 2 bedrooms and 1 bathroom. It is located close to local schools. The property has a good sized garden. The property is listed for £425,000, which seems high compared to similar properties in the area. The property could do with some modernisation.
Therefore, we give this property 6 / 10. *Disclaimer: This is our option and does constitute a recommendation or financial advice. Do your own research. *
- Price
- 5
- Condition
- 6
- Location
- 7
- Land
- 7
- Bedrooms
- 2
- Bathrooms
- 1
- Sqft (est)
- 948.81
The heatmap indicates the level of crime in the area. The color of the heatmap indicates the crime severity and recency.
Metrics Year-on-Year
- Average area value
- 291,999.00 £Decreased by 21.52 %
- Est sale value
- 142,321.50 £Decreased by 56.65 %
- Average area rental value
- 1,050.00 £/moIncreased by 9.95 %
- Est letting value
- 0.00 £/mo
- Est rental Yield
- 4.32 %Increased by 40.26 %
- Crime Rate
- 5.00 %Unchanged by 0.00 %
Agent Activity
Henry Adams created the listing.
Nearby Schools
| Name | Type | Ofsted | Distance |
|---|---|---|---|
| Seal Primary Academy | Academy Sponsor Led | Good | 0.41 KM |
| Selsey Children & Family Centre | Children's Centre | 0.46 KM | |
| Medmerry Primary School | Academy Converter | Good | 0.49 KM |
| The Academy, Selsey | Academy Sponsor Led | Good | 0.55 KM |
| Sidlesham Primary School | Community School | Good | 4.54 KM |
Images
Nearby Streets
| Name | Average Price | Average Sqft | Distance |
|---|---|---|---|
| Langley Street | £ 0 | 0 | 0.00 KM |
| St. George's Close | £ 120,000 | 0 | 0.00 KM |
| Malden Way | £ 335,000 | 0 | 0.00 KM |
| Fishermans Walk | £ 0 | 0 | 0.00 KM |
| Croft Road | £ 375,000 | 0 | 0.00 KM |
Nearby Listings
| Address | Price | Type | Score | Distance |
|---|---|---|---|---|
| Wellington Gardens, Selsey, PO20 | £ 425,000 | BUY | 6 / 10 | 0.00 KM |
| Wellington Gardens, Selsey, PO20 | £ 290,000 | BUY | 6 / 10 | 0.08 KM |
| Wellington Gardens, Selsey, PO20 | £ 300,000 | BUY | 7 / 10 | 0.10 KM |
| Church Road, Selsey, Chichester PO20 | £ 210,000 | BUY | 6 / 10 | 0.12 KM |
| Wellington Gardens, Selsey, PO20 | £ 385,000 | BUY | 7 / 10 | 0.12 KM |
Nearby Properties
| Address | Price | Distance |
|---|---|---|
| 53 Wellington Gardens | £ 164,950 | 0.06 KM |
| 27 Wellington Gardens | £ 219,950 | 0.06 KM |
| 41 Wellington Gardens | £ 285,000 | 0.06 KM |
| 37 Wellington Gardens | £ 280,000 | 0.06 KM |
| 29 Wellington Gardens | £ 315,000 | 0.06 KM |