Whitcliffe Drive, Ripon
DA

Whitcliffe Drive, Ripon

By Davis & Lund

£ 375,000

Reviews

3 out of 5 stars

Davis & Lund says ..

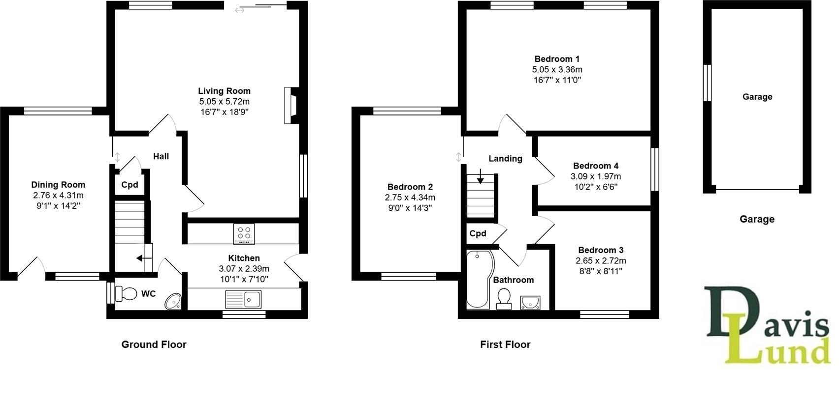
An extended and particularly spacious four bedroom detached house, revealing a flexible layout and a great size plot, with lovely mature gardens. The property has been much loved and well maintained, whilst it does now offer the opportunity to update to personal taste in areas. Located i...

Property Oracle says ..

This property is a 4-bedroom detached house located in Ripon, North Yorkshire. The property is situated on Whitcliffe Drive, within the Ripon Moorside locality. The area benefits from nearby primary and secondary schools, including Moorside Primary School & Nursery (0.40 KM), Outwood Primary Academy Greystone (1.07 KM), St Wilfrid’s Catholic Primary School (1.20 KM), Outwood Academy Ripon (1.31 KM), and Holy Trinity Cofe Junior School (1.32 KM). While specific transportation details are unavailable, the proximity to schools suggests reasonable access to local amenities. The house itself appears to be in fair condition but could benefit from some modernisation. The interior features dated decor and furnishings, suggesting a need for updating. The kitchen and bathroom are functional but also show their age. The property has a garden, though its size is not specified. The list price of £375,000 is notable given the average house price in the area is significantly higher at £712,586. However, comparing it to similar properties in the area, the price seems more reasonable. Nearby comparable properties range from £170,000 to £390,000, indicating that £375,000 is within the expected range for a 4-bedroom detached house in this location, especially considering the need for modernisation.

Therefore, we give this property 6 / 10. *Disclaimer: This is our option and does constitute a recommendation or financial advice. Do your own research. *

Price
7
Condition
6
Location
7
Land
7
Bedrooms
4
Bathrooms
1
Sqft (est)
1,476.81

The heatmap indicates the level of crime in the area. The color of the heatmap indicates the crime severity and recency.

Metrics Year-on-Year

Average area value
688,333.00 £
Decreased by 8.54 %
from 752,601.00 £
Est sale value
1,079,548.11 £
Increased by 26.03 %
from 856,549.80 £
Average area rental value
1,650.00 £/mo
Decreased by 35.09 %
from 2,542.00 £/mo
Est letting value
1,476.81 £/mo
Unchanged by 0.00 %
from 1,476.81 £/mo
Est rental Yield
2.88 %
Decreased by 28.89 %
from 4.05 %
Crime Rate
5.00 %
Unchanged by 0.00 %
from 5.00 %

Agent Activity

  • Davis & Lund created the listing.

Nearby Schools

NameTypeOfstedDistance
Moorside Primary School & NurseryCommunity SchoolGood0.40 KM
Outwood Primary Academy GreystoneAcademy Sponsor Led1.07 KM
St Wilfrid'S Catholic Primary SchoolVoluntary Aided SchoolOutstanding1.20 KM
Outwood Academy RiponAcademy ConverterOutstanding1.31 KM
Holy Trinity Cofe Junior SchoolVoluntary Controlled SchoolGood1.32 KM

Images

IMG_5440 copy.jpg IMG_5341.jpg IMG_5389.jpg IMG_5411 copy.jpg IMG_5342.jpg IMG_5349.jpg IMG_5400.jpg IMG_5405.jpg IMG_5434 copy.jpg IMG_5337.jpg IMG_5347.jpg IMG_5385.jpg IMG_5422 copy.jpg IMG_5430 copy.jpg IMG_5414 copy.jpg IMG_5346.jpg IMG_5388.jpg IMG_5417 copy.jpg IMG_5395.jpg IMG_5436 copy.jpg

Nearby Streets

NameAverage PriceAverage SqftDistance
Catherdral Mews £ 625,00000.00 KM
Sycamore Road £ 200,00000.00 KM
Harewood Road £ 000.00 KM
Grove Close £ 000.00 KM
King George Road £ 175,00000.00 KM

Nearby Listings

AddressPriceTypeScoreDistance
Whitcliffe Drive, Ripon £ 375,000BUY6 / 100.00 KM
Whitcliffe Drive, Ripon £ 339,950BUY7 / 100.06 KM
Carr Close, Ripon, HG4 2LU £ 369,950BUYUnknown0.10 KM
Carr Close, Ripon, North Yorkshire £ 299,950BUYUnknown0.13 KM
Lead Lane, Ripon, North Yorkshire, HG4 £ 125,000BUY6 / 100.14 KM

Nearby Properties

AddressPriceDistance
15 Whitcliffe Drive £ 235,0000.07 KM
55 Whitcliffe Drive £ 235,0000.07 KM
22 Whitcliffe Drive £ 250,0000.07 KM
11 Whitcliffe Drive £ 170,0000.07 KM
42 Whitcliffe Drive £ 269,0000.07 KM